请告诉我们您的知识需求以及对本站的评价与建议。
满意 不满意
Email:
福州泛船浦教堂神父楼整体旋转平移设计及施工
栏目最新
- 低碳节能建筑设计的相关问题及解决方法
- 江苏建筑职业技术学院图书馆设计文化理念
- 四川雅安名山县涌泉村抗震小学的设计理念
- 四川汶川5.12大地震的启示
- 汶川大地震震中纪念馆的创作思考
- 洛阳洛南新区雅安新城结构设计
- 绿色居住建筑的节地设计
- 广州珠江新城海心沙地下空间建筑设计方案
- 黔东南地区郎德苗寨民居的热适应性
- 西气东输工程中长输管道站场建筑模块化设计与应用
网站最新
内容提示:文物建筑整体移位保护技术是最有效的文物建筑整体搬迁保护技术,而建筑物的定点旋转目前在国内尚未见报道,本文结合省级文物保护单位福州泛船浦天主堂神父楼的整体搬迁保护工程,详细介绍了该文物建筑在进行整体旋转平移设计及施工过程中的关键技术措施,以及文物建筑整体移位保护工程设计施工的要点。
0 前 言
建筑物的整体移位技术是指保持原有建筑物整体性和可用性不变,结构安全可靠的原则下,将其从原址移到新址,它包括纵横向移动、转向或者移动加转向。我国正处于大力发展时期,城市建设进程飞速发展,旧城改造、道路拓宽等经常需要拆除部分老旧建筑物。当遇到文物古建筑等需要保护的建筑时,便产生了文物建筑保护与城市建设之间的矛盾,采用建筑物整体移位技术将需保护的文物建筑整体移位至异地进行保护无疑是解决这种矛盾的最优途径。关于建筑物的水平平动移位工程已多有报道,而建筑的定轴旋转目前在国内尚未有先例。本文结合国内首例建筑定轴旋转工程—福州泛船浦教堂神父楼整体旋转移位工程的实施,介绍文物建筑整体移位保护与普通建筑物整体移位的区别,以及该工程整体旋转移位的设计、施工的关键技术要点,以供后续同类工程参考。(参考《建筑中文网》)
1 工程概况
泛船浦天主堂是天主教福州教区的主教堂,建造于193年,是迄今为止福建最大的天主教堂。神父楼作为泛船浦天主堂之附属建筑,现为神父的办公与居住场所。该建筑为二层砖木结构(见图片1),属省级文物保护单位。

泛船浦教堂神父楼长33·1m,宽16·8m,高8·0m,建筑面积1200m2,结构形式为二层砖木结构,该楼窗户造型独特,外墙墙体厚500mm,内墙厚370mm,二层木楼板,屋顶木屋架、瓦屋面,平面规则,轴线墙体对齐,其建筑平面(参见图1)。该建筑的建筑风格与主堂一致,独具特色。由于教堂具有较好的文物保护意识,建筑物的主体结构保持较为完好。

由于福州市南江滨道路建设及南江滨洪涝灾害整治,规划道路需穿过天主教福州教区泛船浦教堂神父楼。南江滨道路同时作为南江滨防洪堤,受该处地形及河道所限道路线路经优化后仍无法避开该建筑物,因此只能将该文物建筑整体搬迁至异地进行保护。各方经过对拆除落架重建与整体移位两种方案进行反复论证及比选,最终选定对该历史文物建筑采取整体移位至新址的方案,并上报国家文物局获准实施,以使文物建筑的原真性、历史性得到完完整整的保留,文物价值也得以体现。
2 整体移位路线设计
拟移位建筑物原址位于主教堂西侧,为东西朝向,由于南江滨道路穿过该建筑物,神父楼拟移位至主教堂东侧,为适应福州地区气候特点及江滨地理位置的需要,教堂要求将建筑物逆时针旋转90°,变为南北朝向,平移总平面(如图2(a)所示)。根据平移总平面图,本工程整体平移路线设计为:神父楼向东整体平移85·6m→定轴整体旋转90°,使建筑物成为南北朝向→再向南平移35·7m,移位路线(如图2(b)所示)。


3 文物建筑整体移位技术难点
与普通建筑物的整体移位相比,本次文物建筑的整体移位有其独特技术要点,主要体现在以下几个方面:
(1)文物建筑建造年代较早,建筑材料性能老化,其建筑物的整体刚度差,应避免移位时外力的施加对建筑物的上部结构产生附加应力影响,导致建筑物产生变形。
(2)对于砌体结构建筑,为施工方便起见,一般将平移托换体系顶面标高定在窗台标高位置,这样建筑的底层下部墙体就要被托换而破坏,文物建筑保护的一个重要原则就是不改变建筑物原貌,因此文物建筑移位托换体系应设置在室外地面标高以下,以确保地面以上建筑外观保持原貌,但这样将导致下轨道梁与行走机构(槽钢、滚轴)处于原有建筑基础以下,给移位实施带来极大技术困难。
(3)文物建筑定轴旋转90°未有先例,无相关工程经验可供借鉴,目前国内文献资料是个空白,它需要解决三个方面的问题:
a·托换体系中旋转轨道体系的刚度保证;
b·直行轨道体系与旋转轨道体系的受力相互转换;
c·旋转外力偶的施加、以及建筑物旋转时的偏位控制;
4 建筑物整体旋转移位设计
建筑物整体平移前,一般都在建筑物靠近基础部位设置刚度较大的托换体系将房屋分割成上、下两部分。托换体系根据功能可分为上轨道梁、托换梁和水平联系梁三个部分,通过托换体系将上部结构的荷载全部传递至与平移方向平行的上轨道梁,实现竖向力传递途径的改变。在上轨道梁下沿移动方向修筑临时基础即下轨道梁,并在上轨道梁与下轨道梁之间置入滚动装置。平移时在托换体系上施加水平推力或牵引力。使房屋上部沿预设轨道移动到新址,就位后撤除滚动装置,将房屋上部与新址基础连成整体。
由此可见,托换体系实现了竖向力与水平力的传递,是建筑物整体移位中确保建筑物安全与实现移位的首要且关键的结构体系。
4·1 托换结构体系设计
4·1·1 文物建筑整体移位托换结构体系标高的确定泛船浦教堂神父楼属于文物建筑,整体搬迁要求不得改变文物原貌,如果在窗台标高位置设置托换结构体系势必破坏窗台下精美条石,破坏了建筑物的外观,这不符合文物保护不改变文物原貌的原则。
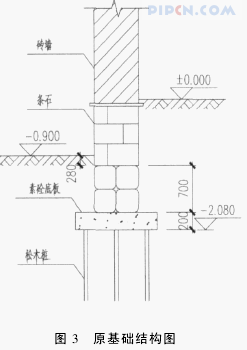
现场开挖检测基础表明,基础底面相对标高为-2·080,该建筑物下部条石高度为1180mm,之下的毛石高度为700mm,基础为素混凝土底板加松木桩(如图3所示)。根据结构计算,上轨道梁SGDL高度需800mm,下轨道基础高度450mm,加上槽钢与滚轴高度150mm,即托换体系总共需要1200mm高度,而条石之下至基础底标高仅有900mm高度,托换体系顶面相对标高定为-1·180(如图4所示),根据托换结构体系顶面标高推算得下轨道顶面标高位于原基础底面以下,且位于地下水位以下,给下轨道梁的托换施工造成极大困难。


因此上轨道梁标高往下降后,产生了许多技术难题,第一土方开挖量增大,第二下轨道落到原基础之下,第三下轨道梁施工在地下水位以下,降水困难。
本工程平移距离较长,如果按照图4所定标高进行施工需要对平移路线土方进行大量开挖,且沿线均在地下水位以下,施工难度极大。
受毛石700mm高度空间的限制,不够设置轨道平移体系,鉴于此,针对托换结构体系标高这一难题,在进行方案优化设计时拟定采取整体顶升技术,首先将建筑物在标高-1·18m处向上垂直移位1·2m,在顶升出来的空间设置上轨道梁与行走机构。从而解决了基础底面以下托换、水下施工及大量开挖土方等多项困难。
4·1·2 整体旋转平移托换结构体系
建筑物整体移位托换结构体系根据其作用及受力特点,一般包含以下构件:托换梁-THL、平移上轨道梁-PYSGDL和联系拉梁-LL。
托换梁起转换作用,主要用于承担上部墙或柱构件传来的荷载,并将上部构件传来的荷载传递至上轨道梁,一般与移位方向的上轨道梁垂直。
平移上轨道梁起集中转化上部荷载的作用,主要用于承担上轨道梁轴线上墙或柱构件传来的荷载及托换梁传来的集中荷载,并将上部荷载转化为线荷载通过行走机构再传递至下轨道基础。
联系拉梁主要用于提高托换结构体系的平面内刚度,传递平移过程中可能产生的不均匀水平力。本工程除进行水平整体平移外,尚需进行定轴整体旋转,与一般的整体平移工程相比,需要多设置一道用于旋转的上轨道梁-XZSGDL,其作用及受力特点与平移上轨道梁相同,本工程托换结构体系(如图5所示)。从图中可见,建筑中部的旋转上轨道梁与直行上轨道梁大部分重叠在一起,旋转上轨道梁的弧线均位于沿轴心不同半径的弧线上,其两端从支点外各延伸1·2m,受力形式为倒置悬臂梁结构。

PYSGDL-平移上轨道梁(阴影)XZSGDL-旋转上轨道梁(黑体)THL-托换梁(实线)LL-联系拉梁(虚线)

在平移过程中,XZSGDL没有参与受力,而在旋转过程中,由于荷载传递路径的变化,原PYSGDL将变为托换梁作用,将原承担的上部墙柱构件荷载传递至XZSGDL,受力状态也发生变化(如图6、图7所示)。由于平移过程可能出现竖向变形的不均匀性,PYSGDL还需调节由此产生的不均匀内力,所以本工程PYSGDL的受力状态较为复杂。考虑到本工程为文物保护工程,且建筑物上部结构整体性较差,对于受力状态较复杂的主要构件PYSGDL采取了加大截面提高构件刚度及提高构件重要性等级的概念设计,截面高度取为400×800,重要性提高系数取1·15,从而加强该构件的刚度和承载能力。
建筑物的整体移位技术是指保持原有建筑物整体性和可用性不变,结构安全可靠的原则下,将其从原址移到新址,它包括纵横向移动、转向或者移动加转向。我国正处于大力发展时期,城市建设进程飞速发展,旧城改造、道路拓宽等经常需要拆除部分老旧建筑物。当遇到文物古建筑等需要保护的建筑时,便产生了文物建筑保护与城市建设之间的矛盾,采用建筑物整体移位技术将需保护的文物建筑整体移位至异地进行保护无疑是解决这种矛盾的最优途径。关于建筑物的水平平动移位工程已多有报道,而建筑的定轴旋转目前在国内尚未有先例。本文结合国内首例建筑定轴旋转工程—福州泛船浦教堂神父楼整体旋转移位工程的实施,介绍文物建筑整体移位保护与普通建筑物整体移位的区别,以及该工程整体旋转移位的设计、施工的关键技术要点,以供后续同类工程参考。(参考《建筑中文网》)
1 工程概况
泛船浦天主堂是天主教福州教区的主教堂,建造于193年,是迄今为止福建最大的天主教堂。神父楼作为泛船浦天主堂之附属建筑,现为神父的办公与居住场所。该建筑为二层砖木结构(见图片1),属省级文物保护单位。

泛船浦教堂神父楼长33·1m,宽16·8m,高8·0m,建筑面积1200m2,结构形式为二层砖木结构,该楼窗户造型独特,外墙墙体厚500mm,内墙厚370mm,二层木楼板,屋顶木屋架、瓦屋面,平面规则,轴线墙体对齐,其建筑平面(参见图1)。该建筑的建筑风格与主堂一致,独具特色。由于教堂具有较好的文物保护意识,建筑物的主体结构保持较为完好。

由于福州市南江滨道路建设及南江滨洪涝灾害整治,规划道路需穿过天主教福州教区泛船浦教堂神父楼。南江滨道路同时作为南江滨防洪堤,受该处地形及河道所限道路线路经优化后仍无法避开该建筑物,因此只能将该文物建筑整体搬迁至异地进行保护。各方经过对拆除落架重建与整体移位两种方案进行反复论证及比选,最终选定对该历史文物建筑采取整体移位至新址的方案,并上报国家文物局获准实施,以使文物建筑的原真性、历史性得到完完整整的保留,文物价值也得以体现。
2 整体移位路线设计
拟移位建筑物原址位于主教堂西侧,为东西朝向,由于南江滨道路穿过该建筑物,神父楼拟移位至主教堂东侧,为适应福州地区气候特点及江滨地理位置的需要,教堂要求将建筑物逆时针旋转90°,变为南北朝向,平移总平面(如图2(a)所示)。根据平移总平面图,本工程整体平移路线设计为:神父楼向东整体平移85·6m→定轴整体旋转90°,使建筑物成为南北朝向→再向南平移35·7m,移位路线(如图2(b)所示)。


3 文物建筑整体移位技术难点
与普通建筑物的整体移位相比,本次文物建筑的整体移位有其独特技术要点,主要体现在以下几个方面:
(1)文物建筑建造年代较早,建筑材料性能老化,其建筑物的整体刚度差,应避免移位时外力的施加对建筑物的上部结构产生附加应力影响,导致建筑物产生变形。
(2)对于砌体结构建筑,为施工方便起见,一般将平移托换体系顶面标高定在窗台标高位置,这样建筑的底层下部墙体就要被托换而破坏,文物建筑保护的一个重要原则就是不改变建筑物原貌,因此文物建筑移位托换体系应设置在室外地面标高以下,以确保地面以上建筑外观保持原貌,但这样将导致下轨道梁与行走机构(槽钢、滚轴)处于原有建筑基础以下,给移位实施带来极大技术困难。
(3)文物建筑定轴旋转90°未有先例,无相关工程经验可供借鉴,目前国内文献资料是个空白,它需要解决三个方面的问题:
a·托换体系中旋转轨道体系的刚度保证;
b·直行轨道体系与旋转轨道体系的受力相互转换;
c·旋转外力偶的施加、以及建筑物旋转时的偏位控制;
4 建筑物整体旋转移位设计
建筑物整体平移前,一般都在建筑物靠近基础部位设置刚度较大的托换体系将房屋分割成上、下两部分。托换体系根据功能可分为上轨道梁、托换梁和水平联系梁三个部分,通过托换体系将上部结构的荷载全部传递至与平移方向平行的上轨道梁,实现竖向力传递途径的改变。在上轨道梁下沿移动方向修筑临时基础即下轨道梁,并在上轨道梁与下轨道梁之间置入滚动装置。平移时在托换体系上施加水平推力或牵引力。使房屋上部沿预设轨道移动到新址,就位后撤除滚动装置,将房屋上部与新址基础连成整体。
由此可见,托换体系实现了竖向力与水平力的传递,是建筑物整体移位中确保建筑物安全与实现移位的首要且关键的结构体系。
4·1 托换结构体系设计
4·1·1 文物建筑整体移位托换结构体系标高的确定泛船浦教堂神父楼属于文物建筑,整体搬迁要求不得改变文物原貌,如果在窗台标高位置设置托换结构体系势必破坏窗台下精美条石,破坏了建筑物的外观,这不符合文物保护不改变文物原貌的原则。
现场开挖检测基础表明,基础底面相对标高为-2·080,该建筑物下部条石高度为1180mm,之下的毛石高度为700mm,基础为素混凝土底板加松木桩(如图3所示)。根据结构计算,上轨道梁SGDL高度需800mm,下轨道基础高度450mm,加上槽钢与滚轴高度150mm,即托换体系总共需要1200mm高度,而条石之下至基础底标高仅有900mm高度,托换体系顶面相对标高定为-1·180(如图4所示),根据托换结构体系顶面标高推算得下轨道顶面标高位于原基础底面以下,且位于地下水位以下,给下轨道梁的托换施工造成极大困难。


因此上轨道梁标高往下降后,产生了许多技术难题,第一土方开挖量增大,第二下轨道落到原基础之下,第三下轨道梁施工在地下水位以下,降水困难。
本工程平移距离较长,如果按照图4所定标高进行施工需要对平移路线土方进行大量开挖,且沿线均在地下水位以下,施工难度极大。
受毛石700mm高度空间的限制,不够设置轨道平移体系,鉴于此,针对托换结构体系标高这一难题,在进行方案优化设计时拟定采取整体顶升技术,首先将建筑物在标高-1·18m处向上垂直移位1·2m,在顶升出来的空间设置上轨道梁与行走机构。从而解决了基础底面以下托换、水下施工及大量开挖土方等多项困难。
4·1·2 整体旋转平移托换结构体系
建筑物整体移位托换结构体系根据其作用及受力特点,一般包含以下构件:托换梁-THL、平移上轨道梁-PYSGDL和联系拉梁-LL。
托换梁起转换作用,主要用于承担上部墙或柱构件传来的荷载,并将上部构件传来的荷载传递至上轨道梁,一般与移位方向的上轨道梁垂直。
平移上轨道梁起集中转化上部荷载的作用,主要用于承担上轨道梁轴线上墙或柱构件传来的荷载及托换梁传来的集中荷载,并将上部荷载转化为线荷载通过行走机构再传递至下轨道基础。
联系拉梁主要用于提高托换结构体系的平面内刚度,传递平移过程中可能产生的不均匀水平力。本工程除进行水平整体平移外,尚需进行定轴整体旋转,与一般的整体平移工程相比,需要多设置一道用于旋转的上轨道梁-XZSGDL,其作用及受力特点与平移上轨道梁相同,本工程托换结构体系(如图5所示)。从图中可见,建筑中部的旋转上轨道梁与直行上轨道梁大部分重叠在一起,旋转上轨道梁的弧线均位于沿轴心不同半径的弧线上,其两端从支点外各延伸1·2m,受力形式为倒置悬臂梁结构。

PYSGDL-平移上轨道梁(阴影)XZSGDL-旋转上轨道梁(黑体)THL-托换梁(实线)LL-联系拉梁(虚线)

在平移过程中,XZSGDL没有参与受力,而在旋转过程中,由于荷载传递路径的变化,原PYSGDL将变为托换梁作用,将原承担的上部墙柱构件荷载传递至XZSGDL,受力状态也发生变化(如图6、图7所示)。由于平移过程可能出现竖向变形的不均匀性,PYSGDL还需调节由此产生的不均匀内力,所以本工程PYSGDL的受力状态较为复杂。考虑到本工程为文物保护工程,且建筑物上部结构整体性较差,对于受力状态较复杂的主要构件PYSGDL采取了加大截面提高构件刚度及提高构件重要性等级的概念设计,截面高度取为400×800,重要性提高系数取1·15,从而加强该构件的刚度和承载能力。
原文网址:http://www.pipcn.net/research/201101/14706.htm
也许您还喜欢阅读:
