轻轨站地下结构工程的防水施工
- 东莞至惠州城际铁路隧道安全风险评估与管理
- 高层建筑给排水系统安装施工技术
- 高层建筑施工质量的五个控制要点
- 房屋建筑工程质量问题、原因和防止措施
- 地下停车场防水工程施工质量预控措施
- 试析绿色施工技术在建筑工程中的应用
- 施工企业预算管理措施及案例分析
- 岩溶地区隧道施工综合预报技术案例分析
- 预制块镶面现浇混凝土隧道洞门施工方法
- 建筑施工模板应用技术简析
内容提示:某轻轨站设计一级防水,在施工中对地下结构防水混凝土、外防水层、特殊部位防水等认真施工,遵循“以防为主,多道设防、防排结合,因地制宜,综合治理”的原则,采用以提高结构自防水性能为主,附加防水层为辅,多道防线,层层设防,效果良好。详细介绍变形缝、施工缝、后浇带及穿墙管等细部的防水处理。
摘要:某轻轨站设计一级防水,在施工中对地下结构防水混凝土、外防水层、特殊部位防水等认真施工,遵循“以防为主,多道设防、防排结合,因地制宜,综合治理”的原则,采用以提高结构自防水性能为主,附加防水层为辅,多道防线,层层设防,效果良好。详细介绍变形缝、施工缝、后浇带及穿墙管等细部的防水处理。(参考《建筑中文网》)
关键词:轻轨站;地下结构;防水;施工;构造
1 工程概述
某轻轨站地下1层为站厅层,地下2层为站台层,横宽36~38m,纵长155m,深15.1m,建筑面积12645m2。车站有效站台长114m,宽9~14.5m,中心轨面高程为3.177m。底板、站台板、站厅板采用梁板结构形式,基础采用桩—筏基础,采用明挖法施工。基坑支护采用地下连续墙 钢结构内支撑支护结构,地下连续墙为板壁式,厚0.8m,深13.4~34.7m,幅宽一般为4.0m和5.0m,兼作地下室侧墙和上部结构的承重墙。
该工程场地土层自上而下主要为杂填土、耕土、(粉质)黏土、粗砂、砾砂、粉质黏土;下伏基层为石炭系灰岩。地下水量丰富,埋深于原地面下3.0~4.2m。整个场地属岩溶强烈发育地区,钻探资料显示最高的土洞为29m,最高的溶洞为22m。微风化石灰岩的埋深在原地面以下16.2~56.5m,岩面参差不齐,起伏很大。
该轻轨站设计一级防水,不容许有渗漏水,结构表面要求无湿渍。在施工中对地下结构防水混凝土、外防水层、特殊部位防水施工等认真操作、加强监督和管理,遵循“以防为主,多道设防、防排结合,因地制宜,综合治理”的原则,采用以提高结构本身自防水性能为主,附加防水层为辅,多道防线,层层设防。
经过多年的使用表明,其防水施工措施效果良好。
2 结构防水施工
防水混凝土结构内部设置的各种钢筋或绑扎铁丝,不得接触模板,固定模板用的螺栓必须穿过混凝土结构时,要有可靠的止水措施。防水混凝土拆模时,混凝土结构表面温度与周围温差不得超过15℃。在防水混凝土结构中有密集管群穿过处、预埋件或钢筋稠密处、预埋大管径的套管处、预埋面积较大的金属板处,应采取切实有效的措施,确保混凝土的浇筑质量。
混凝土材料应符合下列规定:使用生产质量比较稳定的回转窑粉煤灰硅酸盐水泥,含碱量(Na2O)不超过0.6%;无特殊要求时,一般不宜采用高标号及早强水泥;采用洁净饮用水;石子最大粒径不宜大于40mm,所含泥土不得呈块状或包裹石子表面,吸水率不大于1.5%;除含氯离子的外加剂外,可根据需要掺引气剂、减水剂、防水剂、膨胀剂等。混凝土必须采用机械搅拌,配合料混合均匀,颜色一致,称量准确,外加剂溶成较小浓度溶液加入搅拌机内。
混凝土灌注应控制其自然倾落高度,如因超高而使混凝土发生离析现象时,应采用串桶、溜槽或振动流管下落;混凝土必须采用振捣器振捣,振捣时间以10~30s为宜,并以混凝土开始泛浆和不冒气泡为准;插入式振捣器移距不宜大于作用半径1倍,插入下层混凝土深度不小于5cm,振捣时不得碰撞钢筋、模板、预埋件和水止带等;表面振捣器移距应与已振捣混凝土搭接宽度不小于10cm;混凝土应从低处向高处分层连续灌注,如必须间歇时,其间歇时间应尽量缩短,并应在前层混凝土凝结之前,将次层混凝土灌注完毕,间歇的最长时间应按水泥品种及混凝土结合条件确定,混凝土凝结不超过规定时间。
混凝土每层灌注厚度,当采用插入式振捣器时,不应超过其作用部分长的1.25倍;表面振捣器不超过200mm。结构预埋件(管)和预留孔洞、钢筋密集以及其它特殊部位,必须事先制定措施,施工中加强振捣,不得漏振。
底板混凝土应分层留台阶灌注,混凝土灌注至标高初凝前,应用表面振捣器振一遍后再作压实、收浆、抹面。墙体混凝土左右对称、水平、分层灌注,至顶板交界处间歇1~1.5h,然后再灌注顶板混凝土;顶板混凝土连续水平、分台阶由边墙、中墙分别向中线方向进行灌注。混凝土灌至标高初凝前,需用表面振动器振捣一遍后再作压实、收浆、抹面。柱子混凝土可单独施工,并应水平、分层灌注。如和墙、顶板结构同时施工而混凝土标号不同时,混凝土从搅拌、运输和灌注、振捣等方面必须采取措施,防止混用。混凝土灌注过程中应随时观测模板、支架、钢筋、预埋件和预留孔洞等情况,发现问题及时处理。
顶板是地下结构最容易出现裂缝的部位,在施工过程中应采取防范措施:跨度在8m以上的结构,必须在混凝土达到较高强度时才拆模;作好顶面混凝土在终凝前的压实、收浆、抹光以及养护工作;顶板混凝土强度未达设计强度前不得堆放设备、材料等。
混凝土终凝后应及时养护,结构混凝土养护期不少于14d。混凝土养护可采用湿麻袋、草袋、砂覆盖以及蓄水养护。
3 附加防水层施工
采用喷涂防水层:选用的材料、施工环境温度应符合设计和产品技术要求。喷涂防水层施工前,应按喷涂工艺进行试喷涂,合格后方可正式喷涂。地下室结构附加防水做法详见图1。

喷涂防水层基面应紧实平整、洁净、无浮浆、无凸角和凹坑及起砂现象,采用油溶性或非湿固性涂料时,基面必须保持干燥。每次配料在规定时间内用完,分层施工,并不得少于2层,后层喷涂料必须在前层喷涂料结膜后施工,且后层喷涂方向与前层喷涂方向相互垂直。可按结构段分片进行,边墙喷涂时宜由上向下分层进行,接茬严密、喷涂均匀。涂料防水保护层采用砂浆或混凝土时应及时养护,顶、底板保护层平整度允许误差为:底板5mm、顶板10mm。
4 细部防水施工
4.1 变形缝
变形缝止水带应无裂纹和气泡,接头斜面热接,不得叠接,接缝平整牢固,无裂口和脱胶现象。采用钢板止水带时,其材质、性能、规格须符合设计要求,接头采用搭接,搭接长度不小于10cm,搭接必须平整、粘结牢固。钢板止水带埋入先浇、后浇混凝土内各为1/2板宽,而且保证止水板安装平直。对于环向或竖向施工缝端头模板必须牢固可靠,不得跑模。先浇筑混凝土基面必须充分凿毛、清洗干净、排除杂物。
结构变形缝设置嵌入式止水带时,混凝土浇注前校正止水带位置,表面清理干净,止水带损坏处修补好;底板结构止水带的下侧混凝土振实,将止水带压紧其表面后,方可继续灌注混凝土。止水带必须固定牢固,内外侧混凝土均匀、水平灌注,保持止水带位置正确、平直、无卷曲现象。
施工缝一般采用遇水膨胀止水条,其止水条材质、性能、规格须符合设计要求。
结构施工缝应留置在受剪力或弯矩最小处,并符合规定;柱子施工缝留置在与顶、底板或梁的交界处约30cm处;板的施工缝留在柱跨1/3~1/4处;墙体水平施工缝留置在底板、中板及顶板交界处约30cm处,垂直施工缝同板施工缝距预留孔洞边缘不小于300mm。
施工缝处理工艺:(1)水平施工缝先浇筑混凝土,在初凝后、终凝前根据止水条的规格在混凝土基面中间压磨出一条平直、光滑槽。环向或竖向施工缝采用在端头模板中间固定木条或金属构件等,检验浇筑后形成凹槽;(2)止水条安放前,其浇筑混凝土基面必须充分凿毛、清洗干净、排除杂物;(3)水平施工缝在进行浇筑前先在基面上敷设25~30mm与浇筑混凝土同标号的水泥砂浆,环向或竖向施工缝应控制入模点与基面有一定的距离,经均匀、充分振捣后使基面与新浇筑混凝土有25~30mm水泥砂浆,新老混凝土结合良好;(4)止水条应尽量在混凝土浇筑前3~5h安装好,如有困难提前安装应采取缓膨措施,止水条应粘贴在基面预留的槽内,并用水泥钉固定牢靠。
施工缝处继续灌注混凝土时,应符合规定:按设计安置好止水带或膨胀止水条;已灌注混凝土粘接强度在水平施工缝处不低于1.2MPa,垂直施工缝处不低于2.5MPa;施工缝处混凝土必须认真振捣,新旧混凝土结合紧密。
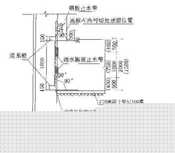
4.3 后浇带
后浇带设在应力和变形较小部位,宽度为1m。该工程后浇带采用平直缝,钢筋采用搭接,其防水构造见图2。
后浇带应在其两侧混凝土龄期达4d后再施工。施工前将接缝处的混凝土凿毛、清洗干净,保持湿润、并刷上水泥净浆。后浇带应采用补偿收缩混凝土浇筑,其强度等级应不低于两侧混凝土。后浇带混凝土的养护时间不得少于2d。
4.4 穿墙管
该工程管道多,穿过地下外墙时,设穿墙防水钢套管,该为适应现代市场发展需要,山东科技大学天盾防水建材厂自主开发研制生产的TS新型自粘防水卷材,由橡胶类聚合物经改性制成,是一种性能优良的冷自粘型高分子复合防水卷材。
1 生产工艺及原理
该新型自粘防水卷材采用线性低密度聚乙烯树脂(LLDPE)加入色母料、助剂(抗老化剂、稳定剂、助粘剂、光屏蔽剂等)经挤出制成的高分子聚合物为主防水层,一侧复合丙纶或涤纶纤维材料为结构增强层,另一侧复合压敏胶粘剂、隔离纸,通过高温热融(10~10℃)直压生产工艺一次挤压成型,其生产工艺流程见图1。从而使防水层与增强层达到了完全融合成型,粘结牢固,不易剥离,保证了防水材料本身的良好性能。新型自粘型高分子复合防水卷材产品结构见图2。
原文网址:http://www.pipcn.net/research/200810/9160.htm
也许您还喜欢阅读:
