大刘坡桥体外预应力的加固方案设计
- 改进的隧道监测系统(TMS)在隧道围岩变形监测中的应用
- 我国岩土工程在可持续发展中的新使命及其实现问题
- 矿山地质环境治理问题研究
- 岩土工程勘察中常见的技术问题及解决措施探讨
- RTK-GPS在广州新电视塔变形监测中的应用研究
- 既有建筑物加固修缮勘察与地基基础加固方案选择
- 现场测量建筑围护结构节能特性的问题分析
- 文物保护建筑勘察特点及工程实例分析
- 旁侧荷载对复合地基性状的影响
- 从工程实例分析谈顺层岩质边坡的勘察与参数选取
内容提示:大刘坡桥位于天津宝坻县境内九园公路的潮白河上。桥全长790.3米,桥面宽度9米(即1 7 1),上部结构为56孔、5片跨径14.1米的普通钢筋混凝土T型简支梁桥,横桥向有3道横隔板。桥面铺装为钢筋混凝土(7.5~11~7.5厘米)和3厘米沥青混凝土面层。每8孔为一道伸缩缝,其间为桥面连续铺装。
摘要:大刘坡桥位于天津宝坻县境内九园公路的潮白河上。桥全长790.3米,桥面宽度9米(即1 7 1),上部结构为56孔、5片跨径14.1米的普通钢筋混凝土T型简支梁桥,横桥向有3道横隔板。桥面铺装为钢筋混凝土(7.5~11~7.5厘米)和3厘米沥青混凝土面层。每8孔为一道伸缩缝,其间为桥面连续铺装。
关键词:体外预应力 加固 T梁桥
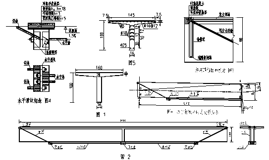
大刘坡桥位于天津宝坻县境内九园公路的潮白河上。桥全长790.3米,桥面宽度9米(即1 7 1),上部结构为56孔、5片跨径14.1米的普通钢筋混凝土T型简支梁桥,横桥向有3道横隔板。桥面铺装为钢筋混凝土(7.5~11~7.5厘米)和3厘米沥青混凝土面层。每8孔为一道伸缩缝,其间为桥面连续铺装。旧T型梁外形(如图1)。旧梁设计荷载等级:汽-13、拖-60。(参考《建筑中文网》)
下部结构墩柱及盖梁是在原桥位上游侧95年重新设计建造的,为单排双桩(柱)式,荷载等级:汽-20、挂-100。受公路发展公司委托,我院于4月12~13日对该桥进行了检查。由于原有公路的技术标准低(汽-13、拖-60),通行能力差,加之目前交通量的增加和汽车载重的增加,上述旧桥是不能满足承载力要求的。受资金和材料资源及断交时间的限制,也不可能全部拆除并新建,只能考虑投资较少,工期时间短且能增加承载力的各种桥梁加固技术予以改造。这其中采用体外预应力钢筋加工技术,确为一种简单易行且能与新建下部结构荷载(汽-20、挂-100)看齐的有效方法。
体外预应力加固方法的实质是以粗钢筋、钢绞线或高强型钢等钢材做为施力工具,对桥梁上部结构施加体外预应力,以其产生的反弯矩抵消部分外荷载产生的内力,从而达到改善旧桥使用其性能并提高其极限承载力的目的,本桥只涉及粗钢筋的体外预应力加固提高荷载方案。
1、水平筋与斜筋:由高强螺纹粗钢筋组成,构造见图2,其作用是施加预应力提高梁的承载能力。
2、梁端锚固:先将梁端部分混凝土桥面板凿掉,将梁端顶面上角凿成与斜筋倾斜方向相垂直的斜面(需剪断局部架立钢筋和箍筋),在端横隔板上开凿与斜筋方向相同的斜孔,然后,将用角钢或槽钢制作的支承垫座用环氧砂浆固定在已凿好的梁端斜面上。斜筋穿过横隔梁和支承垫座的斜孔,用千斤顶进行张拉并用螺母锚固在支承垫座上,最后用混凝土将锚头封闭,见图3。
3、水平滑块:由联接斜筋和水平筋的活动滑块支承座和固定在梁底的支承钢垫组成,其构造见图4,其主要功能是通过滑块的水平滑动,以调整斜筋与水平筋之间的内力分配比例,并使表面受力趋于均匀。
二、体外预应力提高荷载等级计算:已知的设计参数如下: 1.T梁混凝土设计标号25Mpa。水平筋极限应力计算时,取
,截面强度计算时取混凝土抗压设计强度
,取混凝土极限压应变
2.原T梁配筋参数:其T梁截面配筋见图5
跨中截面:
,

支点截面:
,
,
,
. 原梁斜截面内受拉纵向钢筋的配筋率
:





3. 体外索配筋参数:
经加固设计分析,体外索水平筋取为
,斜筋取为
,均为冷拉Ⅲ级钢(单控)。

两垫板中心之间的水平距离:
,上锚固点至垫板中心的水平距离:
, 
体外预应力筋至T梁底距离

体外预应力损失:
1)预应力钢筋与水平滑块之间的摩擦
:因是水平张拉
2)具变形引起的预应力损失
:
,因是水平张拉,故
,查规范按
计,

3)温差引起的损失
:
。
、
:分别为预应力钢筋与混凝土的线膨胀系数
,
,Δt:为年最高温度与施工时的温度差;15°
故:
4)分批张拉引起的混凝土弹性压缩损失
:因单片梁两根水平钢筋同时张拉,使单片梁间的
。
5)钢筋松弛引起的损失
:一次张拉
6)混凝土收缩与徐变引起的应力损失
因旧桥混凝土的收缩与徐变在长期使用过程中已基本完成。体外筋加固体系并不会使桥梁恒载增加许多,且使原梁受压区的应力明显减少。因此,即可近似取混凝土收缩、徐变损失
。于是,体外筋加固中预应力钢筋总的应力损失为:
预应力水平筋重心到截面上边缘的距离
无粘结预应力筋的有效预应力
,滑块与梁底之间的摩擦系数(属于滑动摩擦)
,反映斜筋与水平筋拉力之比的系数
,体外斜筋中的有效预应力
1、计算体外钢筋的极限应力:
由于水平筋和斜筋在材料及其截面面积方面的差别,其有效预应力是不同的,亦即两者的应变量也不同。若以水平筋的应变为准,将斜筋的应变状态换算为水平筋的应变状态,并在此情况下求出体外筋的总长度,即为体外筋的换算长度。式中
分别为体外预应力水平筋和斜筋中由有效预应力产生的应变。
,则
。令:
。梁跨中破坏 截面的刚度与极限状态下梁体各截面平均刚度的比值
,体外预应力钢筋换算长度与梁的计算跨径之
,与支承条件有关的挠度系数
对于按均布荷载考虑的简支梁由弹性变形理论可求出
,体外水平筋配筋率
,原梁受拉钢筋配筋率
,原梁受压钢筋配筋率
,参照现行公路桥规(JTJ023-85)中对钢筋混凝土和预应力混凝土受弯构件的强度计算方法,按矩形截面试算:体外水平筋的极限应力
,R ab’iχ=σ
Ay AgRg- A’gR’g
则
,令水平筋极限高度系数ξy为梁发生截面破坏时实际受压区高度χs与体外水平筋重心到梁顶面的距离
之比,即
,
∴
,再将
代入上式,可得
,将此式展开并经整理即得矩形截面体外水平筋极限高度系数
,
为体外水平筋的极限应力增量,其上式中

由图6中假定当最大弯矩截面发生破坏时,两个未破坏的梁段均发生刚性转动,即无挠曲变形的几何关系,三角形的相似比可建立如下几何方程:
;
:体外预应力钢筋的总伸长值。
:梁破坏时的极限挠曲值。
:梁发生截面破坏时实际受压区高度。由上式得:
,根据总伸长量
即可求出体外预应力钢筋的极限应变增量
;考虑体外筋中有效预应力的影响后,体外预应力筋的极限应变
其中εy为体外预应力水平筋中由有效预应力产生的应变。由于体外水平筋在梁达到极限状态时并不屈服,因此,将上式两端分别乘以预应力钢筋的弹性模量,则体外水平筋的极限应力可用下式表示:
此式第二项即为体外预应力水平筋的极限应力增量
,又由于
与加固梁跨中极限挠度
则可导出:
将其化简后可得一关于水平筋极限应力增量
的一元二次方程。即:
;式中系数


解方程:
:即:
;
解出::
;则水平筋极限应力为:

其体外斜筋极限应力公式为:
;由于体外斜筋与水平筋配筋面积不同,取大者,
;则
2。计算抗弯强度
由于
<
,说明中性轴在T梁的顶板内,即为第一类T形。因而按宽度为
的矩形截面计算抗弯强度。在此可忽略受压区钢筋的影响,则由规范公式计算中性轴位置:
受拉钢筋
合力作用点到体外索水平筋重心的距离为:

;

再由规范公式计算加固体系的抗弯强度:

该梁提高等级后由汽车荷载控制设计,跨中截面的最大计算弯距
;
因此经体外筋加固之后,梁的抗弯强度满足设计。
3.计算抗剪强度
该梁最大支点剪力由挂车-100控制,其值为
;作用在梁端部体外筋中的预加力应作为外力考虑,其竖向分量将抵消一部分外荷剪力。假定在极限状态下,体外斜筋中的应力为
,考虑材料安全系数后,则其预剪力的竖向分量为:
;
;
;计算表明,经体外筋加固后梁端不会出现斜压破坏。
由规范(4.1.10-2)及(4.1.10-3)式得:


经体外筋加固后,该梁抗剪强度满足要求。
来源: 《建筑中文网》.原文网址:http://www.pipcn.net/research/200603/8492.htm
也许您还喜欢阅读:
