高层建筑直接连接供暖系统减压循环装置的研究
- 低碳节能建筑设计的相关问题及解决方法
- 江苏建筑职业技术学院图书馆设计文化理念
- 四川雅安名山县涌泉村抗震小学的设计理念
- 四川汶川5.12大地震的启示
- 汶川大地震震中纪念馆的创作思考
- 洛阳洛南新区雅安新城结构设计
- 绿色居住建筑的节地设计
- 广州珠江新城海心沙地下空间建筑设计方案
- 黔东南地区郎德苗寨民居的热适应性
- 西气东输工程中长输管道站场建筑模块化设计与应用
一、现状及存在的问题
高层建筑在我国近二十年来迅速发展,与之相配套的供暖系统设计和设备技术也不断发展,面对高层建筑管网内静水压力大的问题,目前也有许多方案在应用之中,见参考文献[1]、[2]、[3]、[4]。普遍应用的是在热源处(锅炉房)专门设置换热器或锅炉的办法,使得建筑内高区原有建筑的低区在水力系统上彻底分开,从而使高区、低区的压力完全互不影响。但单独为高区设置锅炉的办法,特别是在原有多层建筑群中建设单幢高层建筑,有时由于于室外管网的增设困难较大,显然造价较高。单独为高区设置表面式换热器的办法,仅在有蒸汽或高温水热源时和能确实满足供水水温的要求,且也需要室外增加相应的高区系统输送管线。通常综合费用也比较高。供热工程设计手册中[1]、[2]推荐了"双水箱分层式系统",但其严重带气,压力波动较大,当室外回水阀门误关闭时有系统超压隐患,往往不能正常使用。其他通气立管直连方案也有与大气相通,依然有系统的氧腐蚀因素的缺陷。(参考《建筑中文网》)
二、对供暖系统连接问题的分析和解决方案
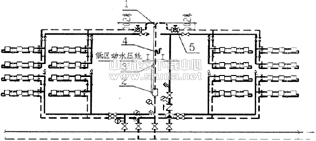
将双水箱系统的水箱去掉,同时将总回水管引到高于供水干管200mm,并在立管上安装减压循环装置,可得到附图1或附图2。采用水压图分析本文附图或附图2的供暖和空调水系统的循环特征可知,在低区循环水泵运转时,低区管网都有确定的动态水压线。由流体力学关于静压强和的测压管水头线的关系可知立管内水压线水头高度以下是充满水的。高区系统通过安装在总回水立管上的减压循环装置切断静压力后直接连接到低区的回水管上。就可以实现高低区供暖系统的直接连接。
由流体力学知识可知,在下流水立管中静压力的沿管传递的条件是管内的水流连续充满。如果能实现流态的转变,也就能实现压力传递效果的改变,这就可以在立管内低区水压线水头高度以上适当位置安装导流部件结合控制流量来重建立管中的水膜流动状态,再结合供暖系统比较干净且流量稳定的循环的特点,配置确保产管内流态稳定的水膜流动状态,再结合供暖系统比较干净且流量稳定的循环特点,配置确保立管内流态稳定的气体补偿装置就可以实现立管下流水静压力的切断和压力波动的消除。
基于对室内供暖系统内的水流态水压力和供热系统的运行状况的上述分析,1998年我提出了一个能够切断下流水静压力的立管结构方案(发明专利号98109099.0),于2000年2月20日获得发明专利证书。2000年1月我又提出了一个带气循环装置的立管结构方案(实用新型专利号01205626.1和发明专利申请号,01108338.7),在立管内将有静压水流转变为无静压水流,进而实现高低区供暖系统直接连接。
我提出的立管结构方案实质是(1)在立管内加装一个为水流提供流动边界条件的导流部件,所述导流部件与立管内管壁之间形成一轴向通道,所述轴向通道包括中空的螺旋式通道部分或直通道部分,用以导引有压流体管路的水流使立管内下流水流通过部件后能稳定地沿着立管内壁形成左旋水膜运动状态,使立管内的空气和向下流的水的边界处于有序状态,气水的分界面是一个等静压面。(2)该方案还包括有与立管的膜流状态形成部分相通的、用以维持稳定膜流状态的气体补偿装置。采用这个结构方案,强化了立管形成膜流条件,使立管内气芯动态有条件封闭,避免气体混入立管出口以后的工作水流,也有利于防止空气的其它有害影响,为基本消除管内水流所涉系统的氧腐蚀问题和供暖系统的气塞问题提供可能,并确保安全运行。本结构简单耐用,可与系统同寿命。
宜将高层建筑的六~十层(按低区系统的供回水压力可以满足系统直接连接的最高层数确定具体层数)及以下直接划为低区,七层及能上能下可以按散热器的承压能力和系统的热力及不力计算的要求划分高区系统。
这样就可以在高导建筑高区供暖系统需要时采用水泵加压供给高区供暖系统经过高区供暖系统散热后,在总回水产管上安装(减压循环装置)消除加压泵增加的静水压力后再接入低区的回水管网上,从而使高区、低区的压力完全互不影响,实现低区系统和高区系统合用一套室外管网和热源。就可以实现高低区供暖系统的直接连接。
三、带减压循环装置的立管布置要求和工作过程
立管下流水减压循环装置属非标管路流体技术装置,按高区系统的流量优化参数。一套装置由四个部件组成。静压切断装置(部件1)安装于立管顶端下部:气水循环装置(部件2)安装于低区动水压线以下2~25米之间(一般在4~7层):气水分离装置(部件3)安装于低区动水压线以下1~5米之间(一般在9~12层):压力限定装置(部件4)安装于低区最大允许工作压力限值(一般为40米左右高)位置上;及相应的循环管路控制了立管内动水压力线以上的水流为膜流状态,变有压水流为受控无压水流。系统布置示意见附图1和附图2。附图1采用的是立式气水循环装置。,附图3有用的卧式气水循环装置。
减压循环装置的工作过程是:工人时,供暖系统高区回水在进入立管下流水静压切断装置部件1后,在策略和导游装置引发的离心惯性力作用下,即可形成左旋水膜流态,沿下流过程旋转渐减弱至稳定,直至不压线高度处,变为满管流态。处于水膜流态的立管中便形成位于轴线的空气(柱)芯。下流到气水循环装置部件2内的工作水流,由于断面突然扩大,流速骤减,使得深含携带于工作水流中的空气随即得以浮升到气水循环装置部件2上部的环流状空间。在立管满流段即筒内水压力和气水循环管的综合作用下,该空间气体由集气管与集气管中的水一起上升到气水分离装置部分3内进行气水分离,分离出的水沿不循环管复回到气水循环装置部件2下部,形成了水的循环回路;在分离装置部分3中分离出来的气体经气循环管与静压切断装置1与立管中心气芯联能,形成了工作水流中所含气体的气循环回路。这便是本减压装置配入系统后的一般工作情况。
若系统内偶然的压力变化,超过U型水封管4的不封工作压力,其出口可排水卸压或吸入空气,否则水封管将保持封闭状
态。由于立管两端均与系统相联,使立管中的气体在U型水封密闭埋处于封闭状态,其中仅有部分溶含携带于水流中的气体参与自气水循环装置、气水分离器,再复回立管的气水循环装置之中。在此循环中,原溶解携带于系统工作水流中的气体也会被收集封闭于立管气芯之中,成为立管中气芯的一人动态组成部分。只要系统持续工作,这种立管内气芯的封闭状态就会被维持。显然,因系统工作水流携带气体导致的气塞现象困扰正常供暖工作的情况将会因此而消除。同时,由于气体长期被封闭,其氧气必然会被耗尽,立管中气芯便会呈现惰性组分状态,这将为配装本例立管的系统创造无氧蚀工作状况提供条件。
四、减压循环装置优点和技术参数
配置本专利技术装置的优点:
(1)直接使用低区(冷)热源热媒,充分利用热媒参数,不须设费用较高的高区换热器。通常造价可降低十多万元。
(2)不需为高区单独设置热源,使用动力源系统简化,使高压区和低压区可以共享热力储备,降低可观投资,提高了运行可靠性。
(3)系统与大气实现了有条件封闭,确保无气体混入工作水流,本装置不会带来系统的"气塞"及"氧腐蚀"问题,减小了维护工作量。
(4)比"双水箱"系统节省了建筑面积和水箱,也没有了水箱的维护工作量。高区总回水立管管戏至少也小一号,通水能力得到合理利用。
(5)高区系统的总回水立管最高点为高区的定压点。通常高区可用普通铸铁散热器,高区循环泵运行时对原有低区系统压力无影响,原有低区管网的老旧设施均可使用。
减压循环装置按高区加压泵的流量不大于下表推荐流量选定型号
减压循环装置技术参数表
| 推荐流量 (m3/H) | 立管管径 | 部件1 外形尺寸 | 部件2 外形尺寸 | 部件3 外形尺寸 | 部件4 外形尺寸 | |
| JYXH-DN40 | 1.2 | DN 40 | DN 40×2000 | Φ200×1000 | Φ100×400 | 200×1500 |
| JYXH-DN50 | 2.4 | DN 50 | DN 50×2500 | Φ250×1000 | Φ100×400 | 200×1500 |
| JYXH-DN70 | 5.2 | DN 70 | DN 70×2500 | Φ300×1000 | Φ100×400 | 200×1500 |
| JYXH-DN80 | 8.5 | DN 80 | DN 80×2800 | Φ325×1000 | Φ100×400 | 200×1500 |
| JYXH-DN100 | <20.0 | DN 100 | DN 100×3000 | Φ400×1000 | Φ100×400 | 200×1500 |
| JYXH-DN125 | <42.0 | DN 125 | DN 125×3000 | Φ450×1000 | Φ100×400 | 200×1500 |
| JYXH-DN150 | <70.0 | DN 150 | DN 150×3000 | Φ520×1000 | Φ100×400 | 200×1500 |
| JYXH-DN200 | <140.0 | DN 200 | DN 200×3000 | Φ660×1000 | Φ100×400 | 200×1500 |
注:参数优选不另行告知。
五、高区增压泵的选型
高区增压泵的选型适宜,全为系统节能经济运行创造条件,应注意要用热水型水泵,并且按下述方法选下扬程和流量参
数。
高区增压泵的扬程:Hb= Hj+ Hw+V.2/2g- Hg
式中:Hb--高压增压泵的扬程
Hj--泵与部件(系统)的最高点的标高差(M)。
Hw--高区供暖管道系统的阻力(M)一般为2米左右。
V.2/2g--进入部件1时的动压头(M)。
Hg--热网供水在增压泵进口处的压力水头(M)
高区产压泵的流量:V=kl0.86Q/ρ(t1-t2) (M3/H)
式中:K--附加系数,可取1.1~1.2
Q--高区供暖系统热负荷(W)
t1--供水温度℃。
t2--回水温度℃。
ρ--供水密度kg /m3(通常取965..Kg /M3)
加压水泵的控制宜采用变频设备,以达到节能目的。在低区采膨胀水箱定压时,其动水压线较稳定,在参数匹配时可采用工频调和,效果也很好。
另外,如采用一台(组)水泵带多个高区系统时,可在每人高区系统的回水或供水干管上安装自力式流量控制阀5,如附图所示,效果也很可靠,且也可采有工频设备。
减压循环装置技术经推本溯源的研究和太原市工商银行桃园四巷高层住宅(14层);太原佳地花园华苑大厦(18层);山西省建筑设计研究办公楼(8层)等工程的实际运行表明本技术产品性能稳定可靠,对降低工程费用,效果显著。
本技术已获国家知识产权局颁发的实用新新型专利证书和发明专利证书,是管路流体技术在供暖系统应用的创新技术。该技术方案已经多次成功应用,逐步得到市场的认可,欢迎各位同行给予推荐使用。我公司将提供必要的咨询和服务,承诺对装置的可靠性负技术经济责任,将信守合同,确保服务,追求完美,以优质的产品和服务贡献社会。

图1 高区为下供上回系统使用减压循环装置示意

图2 高区为上供下回系统使用减压循环装置示意

图3 采用分户计量的水平串联系统使用减压循环装置的示意
六、参考文献
[1]陆耀庆,《供暖通风设计手册》;北京,中国建筑工业出版社,1987年12月;第335页。
[2]陆耀庆,《实用供热空调设计手册》;北京,中国建筑工业出版社,1993年6月;第137页。
[3]刘梦真;高层建筑无水箱直连供暖系统在工程上的应用;《暖通空调》;1998年6期,第53-56页
[4]李善化;康慧等;《集中供热设计手册》;北京。中国电力出版社,1996年月;第310-315页。
原文网址:http://www.pipcn.net/research/200512/8349.htm
也许您还喜欢阅读:
