请告诉我们您的知识需求以及对本站的评价与建议。
满意 不满意
Email:
试述顶升式建筑法在高层建筑中的应用
栏目最新
- 东莞至惠州城际铁路隧道安全风险评估与管理
- 高层建筑给排水系统安装施工技术
- 高层建筑施工质量的五个控制要点
- 房屋建筑工程质量问题、原因和防止措施
- 地下停车场防水工程施工质量预控措施
- 试析绿色施工技术在建筑工程中的应用
- 施工企业预算管理措施及案例分析
- 岩溶地区隧道施工综合预报技术案例分析
- 预制块镶面现浇混凝土隧道洞门施工方法
- 建筑施工模板应用技术简析
网站最新
内容提示:本文提出了一个全新的建筑方法,即“顶升式建筑法”——一种从上至下建造建筑物的方法,它与传统建筑法“由下至上”的建造程度完全相反本文结合高层建筑的建造程序对其进行简要、全面、清晰的论述;同时也将它与传统建筑法作了基本的比较。
摘 要:本文提出了一个全新的建筑方法,即“顶升式建筑法”——一种从上至下建造建筑物的方法,它与传统建筑法“由下至上”的建造程度完全相反:本文结合高层建筑的建造程序对其进行简要、全面、清晰的论述;同时也将它与传统建筑法作了基本的比较。
关键词:顶升式建筑法;高层建筑
对于单层、多层、高层建筑来说,现有的建筑方法基本沿袭了祖宗几千年来的模式,即由下往上添砖加瓦、逐层建筑;以难度相对较大的高层建筑为例,先是打桩、挖坑、浇灌基础,之后逐层安装脚手架,在塔吊(中、低层有用卷扬机、汽车吊的)的现场运输辅助下,一层一层往上建,直至封项;主体完成后,逐层进行外墙、内室的装修以及水、电、气、通讯等管线的预置、铺设……这种建筑方式古老又普及,好处是无以伦比的通用性:所有的建筑材料、建筑工具、设备及对应的生产企业群体、设计群体、监管群体及至标准化体系,在世界的各个角落都趋于一致;伴着这种传统建筑方式的各层次从业人员数量也十分庞大。
但平心而说,这种传统的建筑方法还是无奈地存在着如下现阶段难以克服或无法杜绝的弊端:建造周期长、施工费用高、主体越高施工难度越大,间或发生惨烈的人身安全事故。另外从材料到设备再到主体构造,标准化范围杂而乱、工厂化生产程度不高。对此,建筑业相关的工程技术人员前仆后继地进行了大量技术攻关,不断地获得成果,取得进步;如改进建材,设计制造出新型建筑工装设备,改良施工方法,加强安全防护措施等,但并未获得根本性的,彻底的解决。
于是,近几十年来(或更早一些,但未见报道)有人构想一种全新的,跳出由下往上建造这个圈圈,改而从上往下的建筑方法:比较典型的是:日本人1996年采用吊装法,由上往下建,完成了一栋中层(我们称之为小高层)建筑,具体为:将顶层在地面完全建好(含内外装饰和管线),用塔吊将建好的楼层提升,再在其下建倒数第二层,再用塔吊整体提升,周而复始,直至完成全栋的建筑。此法部分解决了传统建筑法的不足,如:它施工进度较快(几近装配式)、施工费用减少(报道中有对比,不赘述),施工人员安全性提高,墙体等可实现工厂化生产,有利于标准化的实施和简化。但它也存在一个绕不过的大弯:因这种方法采用的运输辅助设备是塔吊,只可应用于楼层不太高,建筑占地面积较小的建筑物,无法进行高层或超高层,占地面积较大的建筑:主要受到的限制是:1、随建筑主体的加高,受倾角影响,塔吊需不断加大自身吨位和高度,达到一定程度后,塔吊本身的制造和安装变得艰难和不现实;2、随着建筑主体的加大,塔吊与建筑物之间的工作距离也得扩大(即施工现场占地面积得加大),这在为节约土地才建高楼的城市来说同样受到局限。
那么还有不有比上面两种方法更好的建筑方式呢?这正是本文要探讨的课题;我们经多年思考、计算,并受到“用顶升法整体平行移动建筑物”(近几年多有报道)的启发和鼓舞,“不知深浅”地说:由上往下建造大型建筑物的顶升式建筑法就是目前的答案。这里先简言其显见的优点:1、该建筑方式不用传统的塔吊、汽车吊、卷扬机等现场运输辅助设备,更无需钢、木制脚手架;2、该方式用依据简单帕斯卡定律在工厂生产,施工现场装接安装的液压顶升设备(形象点说,似按需将多个千斤顶搬到现场串接安装),在主体建筑外不占用任何土地面积:3、由于建造过程是由上至下,每层建筑物可在“地面”完成(含室内外所有装修、管线布置),因此省掉了大量的现场运输及其设备,施工人员可从容施展,施工速度和安全性均大为提高;顶升设备只须做它的“主业”——顶升即可;4、建筑墙体、内装材料易于实行工厂标准化生产,现场施工可象拼积木般进行装配;5、该方式采用的顶升设备结构、原理简单,制造方便(是否应了前辈哲人说过的“简简单单其实最不简单”,还需实践检验),但应用广泛;除高楼建造外,还可用于大型室内无柱建筑(如室内足球场、游泳馆等)及大跨度桥梁的建造。由于其“应用广泛性”的论述需数倍于本文的篇幅,而其原理相近,故本文不赘述。
本文结合附图将顶升式建筑法在高层建筑中的应用作较详介绍,供广大建筑业同仁共同探讨。
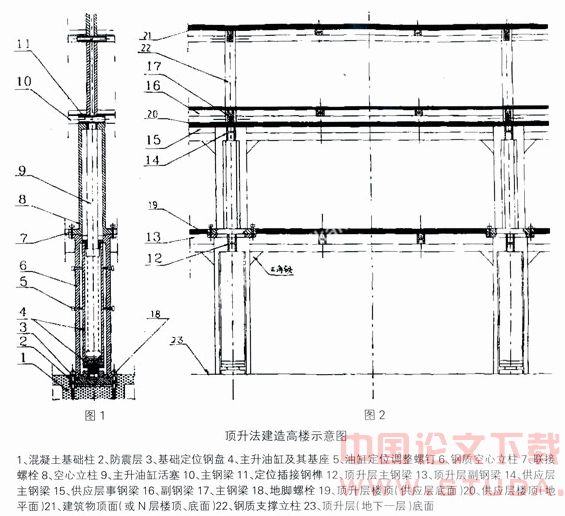
采用本建筑法建造高楼时,基础桩部分与传统建筑法的主要同异点为:相同的是通过计算,用同样方法做实能承重相应高楼,但确保其防倾倒、防震性能的基础桩:不同的是采用本法时,不再需按传统方法在基础桩上预浇灌上一层建筑物的钢筋水泥承重支柱。采用本法时,基础桩做好后,在基础桩以上,地面以下分別建好顶升、施工两层(比大多传统建筑多一层地下室),下面一层(图二,19~23)空间用作顶升设备安装、控制层,上一层空间(图二,19~20)用作建筑立柱供应、安装施工层。
众所周知,每个建筑物都有若干基础桩,这里以单个基础桩为例对本文主题进行论述。
一、首先在底层(顶升安装、控制层)进行顶升设备的安装:1、将水平基础定位钢盘(图一,3)穿过预埋在基础桩(图一,1)里的地脚螺栓(图一,18)装于基础桩上,它与基础桩之间铺有一层通过计算而确定厚度和材质的抗震材枓(图一,2);2、将可调钢质顶升油缸及其基座(又称法琅盘)(图一,4)卡位安装在定位钢盘上,如图一,油缸及基座、定位钢盘之间为过渡配合安装,均是同心圆体:3、将钢质空心主柱(图一,6)(注:空心立柱侧面开口,可容顶升油缸置入)如同前述方法一样,卡位安装于定位钢盘上,并进行垂直度调校;完毕,就将地脚螺栓的螺帽戴上并逐一拧紧,依次将水平基础定位钢盘、空心立柱、顶升油缸及其基座牢固地与基础桩连在一起,并用调整固定螺栓(图一,5)将顶升油缸从侧面垂直固定好:4、将顶升层空间中已安装好的所有空心立柱与钢梁(图二,12),副钢梁(图二,13)固定联接为一个牢固的钢结构架,联接方式可通过计算分别采用螺栓联接、铆接或焊接:垂直交叉处用三角钢板、牛腿钢板或圆弧钢板支撑;5、在上述钢架上铺设钢板或浇铸混凝土建成顶升安装控制层的顶面(亦即施工层底面)(图二,19),其对应各空心立柱处均开有圆孔,直径略大子顶升油缸活塞(图一,9)圆截面;6、将顶升油缸的活塞(图一,9)从预建好的第二层底面吊入置于第一层空间的顶升油缸中,活塞上部定位于空心立柱及顶升油缸的上部内圆盖中(常用密封件非本文主论点,此处略),以备顶升。7、将主升油缸注入液压油,用相应的油管连通顶升油缸及液压驱动源(如油泵等,不赘述);至此,顶升设备安装完毕,准备顶升。
二、进入施工层的建造:1、将本施工层专用的钢质空心立柱(图一,8)[注:空心立柱 侧面开口,可容楼层支撑立柱(图二,22)置入]与上述已装于顶升安装、控制层的空心立柱(图一,6)用螺栓(图一,7)联接;2、将本层专用主钢梁(图二,14)、副钢梁(图二,15)与空心立柱按前述方法牢固联接成本层钢结构架,它须能承受通过计算确定的整个建筑物的压力:3、按一、5、同样的方法建成本层顶面(图二,20),本层顶面与建筑物外地平面处同一水平面。至此,顶升施工准备工作就绪,可进入建筑物的建造阶段了。
三、建筑物顶层的建造:1、将支撑钢立柱(图二,22)垂直放入空心立柱(图一,8),下部与主升油缸活塞(图一,9)活动相联,本工序在施工层完成(不论建筑主体为N层,本工序都在施工层完成),此时的活塞处于底部,液体压力为零;2、钢立柱上、下部预先开有四通的四方圆角孔,以备插接相应的钢榫(图一,11);3、用适合的钢材在支撑立柱上方(此时实际是在建筑物第一层地面上)连接成楼顶框架,在框架上按传统建筑物的顶部需求做防水、隔热、避雷、太阳能供热、水箱等施工,并预留向下的管线接口;并将框架用钢榫与支撑立柱牢固联接;4、楼顶建造确认完工后。启动顶升设备,将所有支撑立柱同步顶升,此时的楼顶缓缓同步上升;由于支撑立柱的长度事先设定,并与建筑物层高一致,所以当立柱下部的四通四方圆角孔在施工层上方的楼面(图二,20)露出时,表明建筑物顶层空间展现,此时将钢榫(图一,11)插入立柱(图二,22)上、下方;顶升装置卸压,让主升油缸活塞复位;5、将支撑立柱与插入的钢榫焊接牢固,并将本楼层底面主钢梁(图一,10)、副钢梁(图二,16)采用合适的联接方式(如螺栓联接、铆接、焊接等),牢固地与支撑立柱(图二,22)下部联接,完成建筑物倒数第一层(顶层)底面框架;6、在本层楼底面进行铺装(钢板或混凝土),并进行本楼层的内外六面装修施工;用本建筑法,很方便推广工厂化生产的轻质墙体。在进行六面装修时,将本楼层的管线与楼顶管线驳接,并再次向下预留管线接口;至此,本建筑物的顶层完全建好。
关键词:顶升式建筑法;高层建筑
对于单层、多层、高层建筑来说,现有的建筑方法基本沿袭了祖宗几千年来的模式,即由下往上添砖加瓦、逐层建筑;以难度相对较大的高层建筑为例,先是打桩、挖坑、浇灌基础,之后逐层安装脚手架,在塔吊(中、低层有用卷扬机、汽车吊的)的现场运输辅助下,一层一层往上建,直至封项;主体完成后,逐层进行外墙、内室的装修以及水、电、气、通讯等管线的预置、铺设……这种建筑方式古老又普及,好处是无以伦比的通用性:所有的建筑材料、建筑工具、设备及对应的生产企业群体、设计群体、监管群体及至标准化体系,在世界的各个角落都趋于一致;伴着这种传统建筑方式的各层次从业人员数量也十分庞大。
但平心而说,这种传统的建筑方法还是无奈地存在着如下现阶段难以克服或无法杜绝的弊端:建造周期长、施工费用高、主体越高施工难度越大,间或发生惨烈的人身安全事故。另外从材料到设备再到主体构造,标准化范围杂而乱、工厂化生产程度不高。对此,建筑业相关的工程技术人员前仆后继地进行了大量技术攻关,不断地获得成果,取得进步;如改进建材,设计制造出新型建筑工装设备,改良施工方法,加强安全防护措施等,但并未获得根本性的,彻底的解决。
于是,近几十年来(或更早一些,但未见报道)有人构想一种全新的,跳出由下往上建造这个圈圈,改而从上往下的建筑方法:比较典型的是:日本人1996年采用吊装法,由上往下建,完成了一栋中层(我们称之为小高层)建筑,具体为:将顶层在地面完全建好(含内外装饰和管线),用塔吊将建好的楼层提升,再在其下建倒数第二层,再用塔吊整体提升,周而复始,直至完成全栋的建筑。此法部分解决了传统建筑法的不足,如:它施工进度较快(几近装配式)、施工费用减少(报道中有对比,不赘述),施工人员安全性提高,墙体等可实现工厂化生产,有利于标准化的实施和简化。但它也存在一个绕不过的大弯:因这种方法采用的运输辅助设备是塔吊,只可应用于楼层不太高,建筑占地面积较小的建筑物,无法进行高层或超高层,占地面积较大的建筑:主要受到的限制是:1、随建筑主体的加高,受倾角影响,塔吊需不断加大自身吨位和高度,达到一定程度后,塔吊本身的制造和安装变得艰难和不现实;2、随着建筑主体的加大,塔吊与建筑物之间的工作距离也得扩大(即施工现场占地面积得加大),这在为节约土地才建高楼的城市来说同样受到局限。
那么还有不有比上面两种方法更好的建筑方式呢?这正是本文要探讨的课题;我们经多年思考、计算,并受到“用顶升法整体平行移动建筑物”(近几年多有报道)的启发和鼓舞,“不知深浅”地说:由上往下建造大型建筑物的顶升式建筑法就是目前的答案。这里先简言其显见的优点:1、该建筑方式不用传统的塔吊、汽车吊、卷扬机等现场运输辅助设备,更无需钢、木制脚手架;2、该方式用依据简单帕斯卡定律在工厂生产,施工现场装接安装的液压顶升设备(形象点说,似按需将多个千斤顶搬到现场串接安装),在主体建筑外不占用任何土地面积:3、由于建造过程是由上至下,每层建筑物可在“地面”完成(含室内外所有装修、管线布置),因此省掉了大量的现场运输及其设备,施工人员可从容施展,施工速度和安全性均大为提高;顶升设备只须做它的“主业”——顶升即可;4、建筑墙体、内装材料易于实行工厂标准化生产,现场施工可象拼积木般进行装配;5、该方式采用的顶升设备结构、原理简单,制造方便(是否应了前辈哲人说过的“简简单单其实最不简单”,还需实践检验),但应用广泛;除高楼建造外,还可用于大型室内无柱建筑(如室内足球场、游泳馆等)及大跨度桥梁的建造。由于其“应用广泛性”的论述需数倍于本文的篇幅,而其原理相近,故本文不赘述。
本文结合附图将顶升式建筑法在高层建筑中的应用作较详介绍,供广大建筑业同仁共同探讨。
采用本建筑法建造高楼时,基础桩部分与传统建筑法的主要同异点为:相同的是通过计算,用同样方法做实能承重相应高楼,但确保其防倾倒、防震性能的基础桩:不同的是采用本法时,不再需按传统方法在基础桩上预浇灌上一层建筑物的钢筋水泥承重支柱。采用本法时,基础桩做好后,在基础桩以上,地面以下分別建好顶升、施工两层(比大多传统建筑多一层地下室),下面一层(图二,19~23)空间用作顶升设备安装、控制层,上一层空间(图二,19~20)用作建筑立柱供应、安装施工层。
众所周知,每个建筑物都有若干基础桩,这里以单个基础桩为例对本文主题进行论述。
一、首先在底层(顶升安装、控制层)进行顶升设备的安装:1、将水平基础定位钢盘(图一,3)穿过预埋在基础桩(图一,1)里的地脚螺栓(图一,18)装于基础桩上,它与基础桩之间铺有一层通过计算而确定厚度和材质的抗震材枓(图一,2);2、将可调钢质顶升油缸及其基座(又称法琅盘)(图一,4)卡位安装在定位钢盘上,如图一,油缸及基座、定位钢盘之间为过渡配合安装,均是同心圆体:3、将钢质空心主柱(图一,6)(注:空心立柱侧面开口,可容顶升油缸置入)如同前述方法一样,卡位安装于定位钢盘上,并进行垂直度调校;完毕,就将地脚螺栓的螺帽戴上并逐一拧紧,依次将水平基础定位钢盘、空心立柱、顶升油缸及其基座牢固地与基础桩连在一起,并用调整固定螺栓(图一,5)将顶升油缸从侧面垂直固定好:4、将顶升层空间中已安装好的所有空心立柱与钢梁(图二,12),副钢梁(图二,13)固定联接为一个牢固的钢结构架,联接方式可通过计算分别采用螺栓联接、铆接或焊接:垂直交叉处用三角钢板、牛腿钢板或圆弧钢板支撑;5、在上述钢架上铺设钢板或浇铸混凝土建成顶升安装控制层的顶面(亦即施工层底面)(图二,19),其对应各空心立柱处均开有圆孔,直径略大子顶升油缸活塞(图一,9)圆截面;6、将顶升油缸的活塞(图一,9)从预建好的第二层底面吊入置于第一层空间的顶升油缸中,活塞上部定位于空心立柱及顶升油缸的上部内圆盖中(常用密封件非本文主论点,此处略),以备顶升。7、将主升油缸注入液压油,用相应的油管连通顶升油缸及液压驱动源(如油泵等,不赘述);至此,顶升设备安装完毕,准备顶升。
二、进入施工层的建造:1、将本施工层专用的钢质空心立柱(图一,8)[注:空心立柱 侧面开口,可容楼层支撑立柱(图二,22)置入]与上述已装于顶升安装、控制层的空心立柱(图一,6)用螺栓(图一,7)联接;2、将本层专用主钢梁(图二,14)、副钢梁(图二,15)与空心立柱按前述方法牢固联接成本层钢结构架,它须能承受通过计算确定的整个建筑物的压力:3、按一、5、同样的方法建成本层顶面(图二,20),本层顶面与建筑物外地平面处同一水平面。至此,顶升施工准备工作就绪,可进入建筑物的建造阶段了。
三、建筑物顶层的建造:1、将支撑钢立柱(图二,22)垂直放入空心立柱(图一,8),下部与主升油缸活塞(图一,9)活动相联,本工序在施工层完成(不论建筑主体为N层,本工序都在施工层完成),此时的活塞处于底部,液体压力为零;2、钢立柱上、下部预先开有四通的四方圆角孔,以备插接相应的钢榫(图一,11);3、用适合的钢材在支撑立柱上方(此时实际是在建筑物第一层地面上)连接成楼顶框架,在框架上按传统建筑物的顶部需求做防水、隔热、避雷、太阳能供热、水箱等施工,并预留向下的管线接口;并将框架用钢榫与支撑立柱牢固联接;4、楼顶建造确认完工后。启动顶升设备,将所有支撑立柱同步顶升,此时的楼顶缓缓同步上升;由于支撑立柱的长度事先设定,并与建筑物层高一致,所以当立柱下部的四通四方圆角孔在施工层上方的楼面(图二,20)露出时,表明建筑物顶层空间展现,此时将钢榫(图一,11)插入立柱(图二,22)上、下方;顶升装置卸压,让主升油缸活塞复位;5、将支撑立柱与插入的钢榫焊接牢固,并将本楼层底面主钢梁(图一,10)、副钢梁(图二,16)采用合适的联接方式(如螺栓联接、铆接、焊接等),牢固地与支撑立柱(图二,22)下部联接,完成建筑物倒数第一层(顶层)底面框架;6、在本层楼底面进行铺装(钢板或混凝土),并进行本楼层的内外六面装修施工;用本建筑法,很方便推广工厂化生产的轻质墙体。在进行六面装修时,将本楼层的管线与楼顶管线驳接,并再次向下预留管线接口;至此,本建筑物的顶层完全建好。
原文网址:http://www.pipcn.net/research/200812/13763.htm
也许您还喜欢阅读:
