关于医院手术部净化空调系统节能设计的几点建议
- 低碳节能建筑设计的相关问题及解决方法
- 江苏建筑职业技术学院图书馆设计文化理念
- 四川雅安名山县涌泉村抗震小学的设计理念
- 四川汶川5.12大地震的启示
- 汶川大地震震中纪念馆的创作思考
- 洛阳洛南新区雅安新城结构设计
- 绿色居住建筑的节地设计
- 广州珠江新城海心沙地下空间建筑设计方案
- 黔东南地区郎德苗寨民居的热适应性
- 西气东输工程中长输管道站场建筑模块化设计与应用
内容提示:本文结合工程实例,介绍了一些医院洁净手术部净化空调系统设计中的节能方法,包括优化手术部建筑平面布局、合理划分净化空调系统、采用二次回风处理过程、在送风主管道安装定风量阀、新风机组和净化循环机组都采用变频风机以及设定手术室过渡季和非工作状态的运行模式等。
摘要: 摘要:本文结合工程实例,介绍了一些医院洁净手术部净化空调系统设计中的节能方法,包括优化手术部建筑平面布局、合理划分净化空调系统、采用二次回风处理过程、在送风主管道安装定风量阀、新风机组和净化循环机组都采用变频风机以及设定手术室过渡季和非工作状态的运行模式等。(参考《建筑中文网》)
关键词: 手术室 空调设计 节能
随着医院建筑现代化程度的提高,医院洁净室正在从洁净手术室向洁净手术部方向发展。由国家建设部颁发的《医院洁净手术部建筑技术规范》GB50333-2002明确规定了我国洁净手术部用房的洁净度、温湿度、送风量和新风量等主要技术指标,这对我们进行医院手术部净化空调系统的设计提出了严格的要求。并且建设部颁发的《公共建筑节能设计标准》GB50189-2005已经从2005年7月1日开始实施,对全国新建、扩建和改建的公共建筑,提出了节能要求,目的是提高暖通空调系统的能源利用效率实现国家的可持续发展的战略。因此,针对医院手术部空调净化系统能耗特别高的特点,设计既满足医院洁净手术部建筑技术规范要求又节约能源的净化空调系统具有非常重要的意义。关于洁净手术室净化空调系统的节能措施有很多,包括选择二次回风空气处理过程、洁净手术室的正压控制、采用热回收装置和净化空调系统的节能运行等,具体内容见参考文献1。本文主要以天津市某医院洁净手术部的净化空调系统设计为例,介绍了一些节能措施的具体应用。
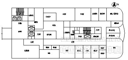
2 手术室概况与平面布局该医院的新建洁净手术部主要服务于“器官移植”手术,位于医院建筑的13层东、西两侧和12层东侧(建筑平面分为东、西两侧,中间由空中走廊连接),其中13层东、西两侧主要由16间洁净手术室、洁净走廊、清洁走廊及手术室洁净辅助用房组成,并且16间洁净手术室包括6间I级手术室,4间II级手术室, 6间III级手术室(包括一间正负压转换手术室),另外13层西侧包括一部分ICU及其辅房,但是ICU的净化空调系统与医院手术部相互独立。12层东侧主要由家属等候室、病梯厅、客梯厅及手术部办公辅助用房组成。该医院洁净手术部12层和13层的建筑平面布局见图1和图2。
Fig.1 Plan of Hospital operation department on the east and west 13th floor of the building

图1 医院建筑13层东、西两侧的医院手术部平面图
Fig.2 Plan of Hospital operation department on the east 12th floor of the building

图2 医院建筑12层东侧的医院手术部平面图
3.1 优化手术部建筑平面布局
如图1所示,该医院手术部由于手术室数量较多采取了环形布置方案,手术室洁净辅房位于建筑平面中间,这样的布置方案具有流程短捷,效率高的特点。手术部的通道布置采用双通道方式,中间通道设为洁净走廊,外廊设为清洁走廊,这种方式便于做到洁污分明、疏散方便。同时根据《医院洁净手术部建筑技术规范》GB50333-2002中的有关定义:手术部是由若干间手术室及为手术室服务的辅助房间组成的辅助区组建而成。辅助区内的用房又可分为直接或间接为手术室服务。直接为手术室服务的功能用房可设置净化空调系统,为洁净辅助用房,而且应设置在洁净区内;非洁净辅助用房应设置在洁净手术部的非洁净区域。因此,在此医院手术部的建筑平面布置中,把直接为手术室服务的功能用房(包括一次性物品、无菌敷料及器械与精密仪器的存放室、麻醉准备室、刷手间、治疗室和检验室等)与洁净手术室一同设置在13层;把间接为手术室服务的功能用房(包括办公室、会议室、教学观摩室、值班室等)设置在12层。
在此医院手术部净化空调设计方案中根据《医院洁净手术部建筑技术规范》GB50333-2002所规定的洁净手术室与主要洁净辅助用房分级标准合理设定一些功能用房的洁净等级,比如把手术部洁净辅房和洁净走廊设计为10万级洁净区域;把恢复室、更衣室、手术部办公辅房和清洁走廊等区域设计为30万级洁净区域,把卫生间、病梯厅、客梯厅以及家属等候等区域设计为非洁净区域(舒适性空调区域)。
因此,优化手术部建筑平面布局的目的不仅是使手术部流程更加合理,而且便于在医院手术部的净化空调设计阶段划分不同功能用房的洁净等级,并将一部分不必划入洁净区域的功能用房设计为舒适性空调,从而根据净化空调和舒适性空调的设计标准的差异通过降低这些功能用房的送风量和/或新风量,达到减少送风能耗的效果。
3.2 合理划分净化空调系统
在此医院手术部净化空调系统设计方案中,考虑到手术室及其辅房位于建筑平面内部只有室内热负荷需要常年供冷;清洁走廊及手术部办公辅房位于建筑平面外围存在通过外围护结构的传热,夏季需要供冷、冬季需要供热,因此根据不同功能用房的冷热负荷的特点,需要对此医院手术部的净化空调系统进行内外划分。并且,手术部的16间I级、II级和III级手术室和10万级手术室辅房全部采用二次回风方式的全空气净化系统,30万级手术室辅房以及非净化区域设计为舒适性空调全部采用风机盘管加新风系统,所不同的是30万级净化区域的送风末端采用亚高效空气过滤器,非净化区域内的送风口采用散流器。
根据《医院洁净手术部建筑技术规范》GB50333-2002的有关规定:1)洁净手术室应与其辅房分开设置净化空调系统;2)Ⅰ、Ⅱ级洁净手术室应每间采用独立净化空调系统,Ⅲ、Ⅳ级洁净手术室可2~3间合用一个系统;3)新风可采用集中系统;4)各手术室应设置独立排风系统。因此该医院手术部的净化空调系统划分情况如下:
(1)6间I级手术室和4间II级手术室采用一拖一形式,设置10台净化循环空调机组,空气处理过程采用二次回风方式。10套系统设置1台新风机组集中处理新风,各手术室独立设置排风系统。做到用哪间手术室,开那间的室内循环机组,以节约能源。
(2)1间正负压切换III级手术室采用1套净化循环空调机组,其他5间III级手术室分别采用一拖二和一拖三的形式,设置3台净化空调机组,空气处理过程采用二次回风方式。3套系统设置1台新风机组集中处理新风,各手术室独立设置排风系统。
(3)手术部的十三层西侧洁净走廊、10万级手术室辅房和空中连廊(洁净走廊)设置1台净化循环空调机组;十三层东侧洁净走廊、10万级手术室辅房设置1台净化循环空调机组,空气处理过程采用二次回风方式。2套系统设置1台新风机组集中处理新风,该新风机组同时负担十三层东侧手术部办公辅房的新风。此外,13层手术部东侧洁净走廊和10万级手术室辅房设置1套排风系统,13层手术部东侧清洁走廊和30万级手术室辅房设置1套排风系统;13层手术部西侧洁净走廊和10万级手术室辅房设置1套排风系统,13层手术部西侧清洁走廊和30万级手术室辅房设置1套排风系统。
综上所述,根据医院手术部不同区域的冷热负荷的特点,按内外分区方式划分成15个净化空调系统,共设置净化循环空调机组15台,新风处理机组3台。这种内外分区方式不仅便于管理,而且避免了在同一净化空调系统内出现外区需要供热、内区需要供冷,即同时供热和供冷的现象,从空气处理过程的角度出发避免了冷热抵消的现象,从而达到节能的效果。
3.3 净化空调系统全部采用二次回风处理过程
医院净化空调系统与一般舒适性空调相比,在空调的热湿处理过程中具有送风量大、相对冷热负荷小及送风温差小的特点,传统净化空调系统夏季采用一次回风处理过程如下:

本净化空调方案夏季所采用的二次回风空气处理过程如下:

对比一次回风和二次回风的空气处理过程可以发现采用传统一次回风处理过程容易造成手术室净化空调系统设备体积大,冷却、加热盘管冷热抵消的现象,而使用二次回风处理过程来代替再热过程可以有效解决这些问题。下面以一间I级洁净手术室(夏季室内温度:23℃,相对湿度:50%,面积:38.10㎡,层高:3.0m,人数:10,室内热负荷:4.5Kw)为例进行能耗计算以证明二次回风处理过程的节能效果。此间I级手术室的一次回风和二次回风的处理过程见图1和图2,两种方案的能耗对比见表1。

图3 I级洁净手术室一次回风处理过程图
Fig .3 The once return air process of I level clean operating room

图4 I级洁净手术室二次回风处理过程图
Fig.4 The secondary return air process of I level clean operating room
表1 I级洁净手术室一次回风和二次回风处理过程的能耗对比
原文网址:http://www.pipcn.net/research/200601/8379.htm
也许您还喜欢阅读:
