请告诉我们您的知识需求以及对本站的评价与建议。
满意 不满意
Email:
天津地铁3号线和平路站超大基坑中间桩柱施工技术
栏目最新
- 东莞至惠州城际铁路隧道安全风险评估与管理
- 高层建筑给排水系统安装施工技术
- 高层建筑施工质量的五个控制要点
- 房屋建筑工程质量问题、原因和防止措施
- 地下停车场防水工程施工质量预控措施
- 试析绿色施工技术在建筑工程中的应用
- 施工企业预算管理措施及案例分析
- 岩溶地区隧道施工综合预报技术案例分析
- 预制块镶面现浇混凝土隧道洞门施工方法
- 建筑施工模板应用技术简析
网站最新
内容提示:中间桩柱施工技术是地下结构逆作法的关键,尤其是在超大深基坑盖挖逆作施工中,中间桩柱施工对结构的安全稳定性至关重要。结合天津地铁3号线和平路站工程实例,介绍了盖挖逆作法中间桩柱的施工方法及控制要点。通过方案比选,采用先插钢构柱的方法进行施工,详细阐述了钢构柱的加工与定位安装、成孔精度与泥浆控制及混凝土浇筑。工程实践证明,该施工方法定位简便、施工时间短、工程造价较低。
1工程概况

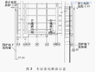
天津地铁3号线和平路站地下3层,物业开发部分地下4层,主体为多跨矩形框架结构。基坑长约150m,宽约140m,开挖深度21.46m,盾构井处深度22.61m。围护结构为地下连续墙,墙厚1m,墙深40.05m。车站的主体呈东北—西南走向,与规划的地铁4号线和平路站实现通道换乘。车站平面如图1所示。基坑采用盖挖逆作法施工,各层结构板采用以钻孔桩为基础的永临结合的钢构柱为支撑系统,施工结构顶板前施工钻孔桩和钢构柱,结构层板施工完成后,临时柱兼作永久柱的一部分,在钢构柱周边按照结构柱尺寸绑扎钢筋、立模、灌注混凝土,形成永久柱。车站基坑横断面如图2所示。(参考《建筑中文网》)

2工程与水文地质条件
站区地层主要为第四系全新统人工填土层,第Ⅰ陆相层、第Ⅰ海相层、第Ⅱ陆相层、第Ⅲ陆相层、第Ⅱ海相层、第Ⅳ陆相层。
地下水为第四系孔隙潜水,赋存于人工填土层①层、第Ⅰ陆相层③层及第Ⅰ海相层④层中,以第Ⅱ陆相层⑤1粉质黏土、⑥1粉质黏土为隔水底板。潜水地下水位埋藏较浅,勘测期间约为1.03~1.93m(高程0.68~1.52m),具有明显的丰、枯水期变化。微承压水以第Ⅱ陆相层⑤1粉质黏土、⑥1粉质黏土为隔水顶板。⑥2粉土、⑥4粉砂、⑦2粉土、⑦4粉砂为主要含水地层,厚度较大,分布相对稳定。各含水层局部夹透镜体状粉质黏土。微承压水水位受季节影响不大,水位变化幅度小。
3中间桩柱施工方案确定
中间桩柱是逆作法施工中在底板未封底受力之前,与地下连续墙共同承受地下结构、上部结构自重和施工荷载的承重构件,也是逆作法的关键步骤。立柱的做法很多,常用的是底端插入灌注桩的钢构柱和钢管混凝土中间支撑柱。经过研究比选,拟采用先插钢构柱的方法施工。
4施工方法及控制要点
4.1技术要求
本工程桩基分为1 400mm和1 000mm两种,1 400mm桩最深钻孔深度83.65m,1 000mm钻孔深度36.85m,要求成桩垂直度<0.3%。桩上钢构柱有650mm×650mm,800mm×600mm和800mm×800mm 3种截面尺寸,采用4根└200×24 加缀板连接焊接而成,格构柱插入桩混凝土中2m,定位偏差≤2cm。施工关键在于如何保证格构柱的定位精度,从而保证支撑系统稳固、基坑开挖安全。
4.2施工工艺
根据桩柱的技术要求和场地内的工程地质状况,钻孔桩采用正循环回转钻机成孔。钻孔桩及钢构柱施工流程如图3所示。

4.3施工控制要点
4.3.1确保成孔的垂直度
要保证钢构柱安装精度,应首先保证钻孔的垂直度,尤其在开孔至30m深度这一段。从以下方面控制:①护筒统一加工,厚度≥6mm,确保多次使用不变形;②桩心定位采用十字法,并把桩中心延伸到周围地面固定点位上,以便随时检查和校验;③钻进过程中,每钻进一根钻杆检查一次钻机水平度和钻杆垂直度,同时密切监视测斜仪,随时调整;④偏差严重时,回填砂黏土到偏孔处0.5m以上,待沉积密实后,再重新钻进。
4.3.2泥浆性能控制
在施工中,无论是对于成孔质量,还是最终对桩承载能力的发挥,泥浆质量都是相当重要的因素。泥浆性能控制指标及测试方法如表1所示。

4.3.3钢筋笼加工
由于桩基承载力要求较高,设计配筋为4028,分内外2层布置,使桩内净空减小,增加了钢筋笼加工和钢构柱定位的难度。所以钢筋笼加工要求分节制作、整体拼装,分节吊装入孔;主筋采用机械套管连接,方便在孔口对接;主筋与箍筋采用点焊,保证吊装时的刚度和安全。
4.3.4钢构柱的加工
钢构柱在专门制作的平台上进行加工,首先把2根角钢接长后紧贴扣放在加工平台的内模上,用缀板把2根角钢焊接成型为钢构柱的一个侧面,再把2片焊接成型为一个钢构柱。钢构柱焊接除按钢结构加工规范标准进行外,必须按点焊→间隔段焊(1~2cm)→满焊的步骤施工。在加工过程中,若出现格构柱局部变形,可采用油顶或手拉葫芦等工具调整成型。具体精度要求:①钢构柱采用Q345B号钢;②钢构柱接长采用单面坡口焊,焊缝二级;③加工柱身弯曲矢高≤H/12(H为柱长),且≤12mm;④柱身扭曲≤h/250(h为截面较长边),且≤5mm;⑤柱截面尺寸对角线误差控制在±4mm。
4.3.5钢构柱的安装及定位
1)定位架利用钻机塔架上现有滑道,在其顶端和下部(钻机平台井口)分别制作一个井字形定位架。定位架上部为固定式,下部水平两个方向可用螺栓调节,同时加工1根3m长的固定式钢构柱为导向柱,和入孔后的钢构柱连接,通过定位架螺栓调节柱的定位精度。
2)吊放钢筋笼分节吊放入孔,整体连接后,用根钢丝绳固定在孔口机架上,汽车式起重机吊起钢构柱上端,使自然下垂,将其下端对准孔位中心和钢筋笼中心,利用其自重慢慢下放到孔口,和定位架上导向钢构柱螺栓连接后,再将钢筋笼继续下放到设计高度,固定。
3)定位先将定位架下部井字架螺栓松开,使导向柱和钢构柱自然下垂,再利用水平仪和调节螺栓配合,将钢构柱准确定位。格构柱安装定位完毕后,利用护筒中心线检查格构柱的中心与桩位中心位置重合后,再把格构柱固定在井口台架上,拆除导向柱,为混凝土浇筑提供位置(见图4)。

4.3.6混凝土浇筑
清孔下放钢筋笼、钢构柱并准确定位后,开始下放导管,浇筑水下混凝土,由于导管安设在钢构柱内,空间较小,应从几个方面控制,保证桩柱的定位:①选择连接抱箍外壁光滑的导管,连接后轴线在一条直线上;②下放和拔管时小心谨慎,必须竖直上下,钢构柱的4根角钢底端切割成楔形,防止管箍刮蹭钢构柱,使其偏斜;③首批混凝土灌注量应保证导管底口埋入混凝土中≥1.0m,灌注过程中混凝土面应高于导管下口2.0m,每次拆除导管前其下端被埋入深度≤6.0m;灌注必须连续,防止断桩;④随孔内混凝土的上升,需逐节快速拆除导管,时间不宜超过15min;⑤在灌注过程中,当导管内混凝土不满,含有空气时,后续的混凝土应徐徐灌入漏斗和导管,不得将混凝土整斗从上而下倾入管内,以免在管内形成高压气囊,挤出管节的橡胶密封垫。
4.3.7上部回填
水下混凝土终凝12h后,上部钢构柱与桩孔间排除泥浆,做回填砂处理,防止移位变形,再解除孔口定位台架对钢构柱上端的约束。
5结语
从基坑开挖情况看,钢构柱方式的中间桩柱满足基坑施工安全,定位精度也能满足永久结构柱施工,仅有2根需要割除部分角钢,总体上看是可行的。
参考文献:
[1]王旭生,马文雄,王健.天津站交通枢纽轨道换乘中心工程中间支撑桩柱施工工艺[J].天津建设科技,2007(1):27-30.
[2]徐至钧,赵锡宏.逆作法设计与施工[M].北京:机械工业出版社,2002.
[3]董朝文.盖挖逆作地下结构中间桩柱施工技术[J].岩土工程界,2006(4):59-63.
[4]郑骐.盖挖逆作法地铁车站的中间桩施工技术[J].市政技术,2009(5):498-500.
[5]中国建筑科学研究院.JGJ94—2008建筑桩基技术规范[S].北京:中国建筑工业出版社,2008.
[6]建筑施工手册(4版)[M].北京:中国建筑工业出版社,2003. 来源: 《建筑中文网》.

天津地铁3号线和平路站地下3层,物业开发部分地下4层,主体为多跨矩形框架结构。基坑长约150m,宽约140m,开挖深度21.46m,盾构井处深度22.61m。围护结构为地下连续墙,墙厚1m,墙深40.05m。车站的主体呈东北—西南走向,与规划的地铁4号线和平路站实现通道换乘。车站平面如图1所示。基坑采用盖挖逆作法施工,各层结构板采用以钻孔桩为基础的永临结合的钢构柱为支撑系统,施工结构顶板前施工钻孔桩和钢构柱,结构层板施工完成后,临时柱兼作永久柱的一部分,在钢构柱周边按照结构柱尺寸绑扎钢筋、立模、灌注混凝土,形成永久柱。车站基坑横断面如图2所示。(参考《建筑中文网》)

2工程与水文地质条件
站区地层主要为第四系全新统人工填土层,第Ⅰ陆相层、第Ⅰ海相层、第Ⅱ陆相层、第Ⅲ陆相层、第Ⅱ海相层、第Ⅳ陆相层。
地下水为第四系孔隙潜水,赋存于人工填土层①层、第Ⅰ陆相层③层及第Ⅰ海相层④层中,以第Ⅱ陆相层⑤1粉质黏土、⑥1粉质黏土为隔水底板。潜水地下水位埋藏较浅,勘测期间约为1.03~1.93m(高程0.68~1.52m),具有明显的丰、枯水期变化。微承压水以第Ⅱ陆相层⑤1粉质黏土、⑥1粉质黏土为隔水顶板。⑥2粉土、⑥4粉砂、⑦2粉土、⑦4粉砂为主要含水地层,厚度较大,分布相对稳定。各含水层局部夹透镜体状粉质黏土。微承压水水位受季节影响不大,水位变化幅度小。
3中间桩柱施工方案确定
中间桩柱是逆作法施工中在底板未封底受力之前,与地下连续墙共同承受地下结构、上部结构自重和施工荷载的承重构件,也是逆作法的关键步骤。立柱的做法很多,常用的是底端插入灌注桩的钢构柱和钢管混凝土中间支撑柱。经过研究比选,拟采用先插钢构柱的方法施工。
4施工方法及控制要点
4.1技术要求
本工程桩基分为1 400mm和1 000mm两种,1 400mm桩最深钻孔深度83.65m,1 000mm钻孔深度36.85m,要求成桩垂直度<0.3%。桩上钢构柱有650mm×650mm,800mm×600mm和800mm×800mm 3种截面尺寸,采用4根└200×24 加缀板连接焊接而成,格构柱插入桩混凝土中2m,定位偏差≤2cm。施工关键在于如何保证格构柱的定位精度,从而保证支撑系统稳固、基坑开挖安全。
4.2施工工艺
根据桩柱的技术要求和场地内的工程地质状况,钻孔桩采用正循环回转钻机成孔。钻孔桩及钢构柱施工流程如图3所示。

4.3施工控制要点
4.3.1确保成孔的垂直度
要保证钢构柱安装精度,应首先保证钻孔的垂直度,尤其在开孔至30m深度这一段。从以下方面控制:①护筒统一加工,厚度≥6mm,确保多次使用不变形;②桩心定位采用十字法,并把桩中心延伸到周围地面固定点位上,以便随时检查和校验;③钻进过程中,每钻进一根钻杆检查一次钻机水平度和钻杆垂直度,同时密切监视测斜仪,随时调整;④偏差严重时,回填砂黏土到偏孔处0.5m以上,待沉积密实后,再重新钻进。
4.3.2泥浆性能控制
在施工中,无论是对于成孔质量,还是最终对桩承载能力的发挥,泥浆质量都是相当重要的因素。泥浆性能控制指标及测试方法如表1所示。

4.3.3钢筋笼加工
由于桩基承载力要求较高,设计配筋为4028,分内外2层布置,使桩内净空减小,增加了钢筋笼加工和钢构柱定位的难度。所以钢筋笼加工要求分节制作、整体拼装,分节吊装入孔;主筋采用机械套管连接,方便在孔口对接;主筋与箍筋采用点焊,保证吊装时的刚度和安全。
4.3.4钢构柱的加工
钢构柱在专门制作的平台上进行加工,首先把2根角钢接长后紧贴扣放在加工平台的内模上,用缀板把2根角钢焊接成型为钢构柱的一个侧面,再把2片焊接成型为一个钢构柱。钢构柱焊接除按钢结构加工规范标准进行外,必须按点焊→间隔段焊(1~2cm)→满焊的步骤施工。在加工过程中,若出现格构柱局部变形,可采用油顶或手拉葫芦等工具调整成型。具体精度要求:①钢构柱采用Q345B号钢;②钢构柱接长采用单面坡口焊,焊缝二级;③加工柱身弯曲矢高≤H/12(H为柱长),且≤12mm;④柱身扭曲≤h/250(h为截面较长边),且≤5mm;⑤柱截面尺寸对角线误差控制在±4mm。
4.3.5钢构柱的安装及定位
1)定位架利用钻机塔架上现有滑道,在其顶端和下部(钻机平台井口)分别制作一个井字形定位架。定位架上部为固定式,下部水平两个方向可用螺栓调节,同时加工1根3m长的固定式钢构柱为导向柱,和入孔后的钢构柱连接,通过定位架螺栓调节柱的定位精度。
2)吊放钢筋笼分节吊放入孔,整体连接后,用根钢丝绳固定在孔口机架上,汽车式起重机吊起钢构柱上端,使自然下垂,将其下端对准孔位中心和钢筋笼中心,利用其自重慢慢下放到孔口,和定位架上导向钢构柱螺栓连接后,再将钢筋笼继续下放到设计高度,固定。
3)定位先将定位架下部井字架螺栓松开,使导向柱和钢构柱自然下垂,再利用水平仪和调节螺栓配合,将钢构柱准确定位。格构柱安装定位完毕后,利用护筒中心线检查格构柱的中心与桩位中心位置重合后,再把格构柱固定在井口台架上,拆除导向柱,为混凝土浇筑提供位置(见图4)。

4.3.6混凝土浇筑
清孔下放钢筋笼、钢构柱并准确定位后,开始下放导管,浇筑水下混凝土,由于导管安设在钢构柱内,空间较小,应从几个方面控制,保证桩柱的定位:①选择连接抱箍外壁光滑的导管,连接后轴线在一条直线上;②下放和拔管时小心谨慎,必须竖直上下,钢构柱的4根角钢底端切割成楔形,防止管箍刮蹭钢构柱,使其偏斜;③首批混凝土灌注量应保证导管底口埋入混凝土中≥1.0m,灌注过程中混凝土面应高于导管下口2.0m,每次拆除导管前其下端被埋入深度≤6.0m;灌注必须连续,防止断桩;④随孔内混凝土的上升,需逐节快速拆除导管,时间不宜超过15min;⑤在灌注过程中,当导管内混凝土不满,含有空气时,后续的混凝土应徐徐灌入漏斗和导管,不得将混凝土整斗从上而下倾入管内,以免在管内形成高压气囊,挤出管节的橡胶密封垫。
4.3.7上部回填
水下混凝土终凝12h后,上部钢构柱与桩孔间排除泥浆,做回填砂处理,防止移位变形,再解除孔口定位台架对钢构柱上端的约束。
5结语
从基坑开挖情况看,钢构柱方式的中间桩柱满足基坑施工安全,定位精度也能满足永久结构柱施工,仅有2根需要割除部分角钢,总体上看是可行的。
参考文献:
[1]王旭生,马文雄,王健.天津站交通枢纽轨道换乘中心工程中间支撑桩柱施工工艺[J].天津建设科技,2007(1):27-30.
[2]徐至钧,赵锡宏.逆作法设计与施工[M].北京:机械工业出版社,2002.
[3]董朝文.盖挖逆作地下结构中间桩柱施工技术[J].岩土工程界,2006(4):59-63.
[4]郑骐.盖挖逆作法地铁车站的中间桩施工技术[J].市政技术,2009(5):498-500.
[5]中国建筑科学研究院.JGJ94—2008建筑桩基技术规范[S].北京:中国建筑工业出版社,2008.
[6]建筑施工手册(4版)[M].北京:中国建筑工业出版社,2003. 来源: 《建筑中文网》.
原文网址:http://www.pipcn.net/research/201110/15068.htm
也许您还喜欢阅读:
