请告诉我们您的知识需求以及对本站的评价与建议。
满意 不满意
Email:
季节性涌水隧道施工技术探讨
栏目最新
- 东莞至惠州城际铁路隧道安全风险评估与管理
- 高层建筑给排水系统安装施工技术
- 高层建筑施工质量的五个控制要点
- 房屋建筑工程质量问题、原因和防止措施
- 地下停车场防水工程施工质量预控措施
- 试析绿色施工技术在建筑工程中的应用
- 施工企业预算管理措施及案例分析
- 岩溶地区隧道施工综合预报技术案例分析
- 预制块镶面现浇混凝土隧道洞门施工方法
- 建筑施工模板应用技术简析
网站最新
内容提示:根据施家梁隧道中溶洞的特征和溶洞段二次衬砌施作后暴雨期间溶洞内的涌水情况,采用洞内排水的方法对隧道涌水进行了处理,取得了良好的效果,为同类工程的设计施工积累了经验。
1 工程概况
施家梁隧道位于重庆市北碚区境内,为三线大跨隧道。隧道左线长4 303 m (LK43+107~LK47+410),右线长4 267. 5 m(K43+103~K47+370. 5),属特长隧道,且为全线控制性工程。公路设计等级为高速公路(六车道),设计荷载为公路—Ⅰ级,计算行车速度:100 km/h;路基宽度:分离式16.75 m,整体式33. 5 m;隧道建筑限界:宽14. 5 m,高5. 0 m。隧址区岩溶水主要赋存于三叠系中统雷口坡组、下统嘉陵江组合飞仙关组,以嘉陵江组为主要含水岩组,多形成带状的溶蚀槽谷,岩溶较发育,岩溶水较为丰富。隧道丰水期涌水量推荐为12 000 m3/d。(参考《建筑中文网》)
2 溶洞概况
原设计隧道洞身K44+050~K44+100段穿越地层为三叠系中统雷口坡组(T2L)及三叠系下统嘉陵江组四段(T1J4)白云岩、白云质灰岩、泥质灰岩夹盐溶角砾岩及灰岩,灰岩为微晶结构,中厚层状构造。岩层产状为134°∠43°,主要发育两组构造裂隙,其产状为:①232°∠68°,②315°∠47°,呈闭合~微张状,局部泥质充填。地下水较贫乏。灰岩单轴饱和抗压强度Rc=31MPa,完整性系数Kv=0.66,K1=0.2,K2=0.2, [BQ]=308。2007年2月10日,隧道右线上断面开挖至K44+063,围岩为灰岩夹泥岩,隧道左侧出现一较大溶洞,溶洞沿隧道前进方向长7 m,高7 m,深6 m,自隧道底部倾斜向上。上部逐渐变为直径0. 8 m的小溶洞向隧道顶部延伸,高度不可测,下部逐渐变为直径为1 m的小溶洞向隧道左线方向倾斜向下,深度不可测,溶洞内无水,但有水流痕迹。延伸至K44+070处溶洞消失(见图1)。开挖至K44+090,隧道右侧拱腰处又出现一个溶洞,直径1 m,溶洞沿隧道顶部倾斜向上,高度不可测。溶洞内无水也无流水痕迹(见图2)。


当时K44+063~K44+070处溶洞处理方案为: 1)溶洞内虚渣清除干净,留足1 m的保证溶洞内水流畅通;2)对溶腔壁进行锚杆加固,防止溶腔壁垮塌堵塞排水通道; 3)加强隧道的衬砌支护,由原设计的初期支护为钢格栅拱架调整为18工字钢拱架, 50 cm钢筋混凝土衬砌调整为60 cm的钢筋混凝土; 4)为防止雨季上部溶洞水流压力影响隧道安全,采用C20混凝土做1 m厚的护拱做保护。
K44+090处溶洞无水也无水流痕迹,故只在隧道初期支护时埋设了5根116的波纹管,以用做排水措施。在K44+063处衬砌左上部和K44+090处衬砌右上部及右下部各预留出一个观察孔,以便观察溶洞后期的涌水量。
3 溶洞突水情况
至2007年6月上旬,重庆市降雨比较少,溶洞内水量较小。2007年7月,重庆市连降暴雨,K44+063~K44+090衬砌施工缝处开始出现大量渗水,且水压非常大。经分析,原因是K44+090溶洞处有大量涌水,由于开口较小,涌水不能及时流出,在隧道顶部形成大面积的承压水,隧道衬砌无法承受巨大水压力,造成大量涌水从K44+090附近衬砌施工缝中流出。为缓解衬砌压力在此处钻孔引水,开孔后在溶洞处出现射程在14 m的股状压力水,最终拆除K44+090处2 m的二次衬砌,经观察及检测后测得此溶洞在暴雨后涌水峰值达到8 700 m3/h(208 800 m3/d),已完全超过地勘预测的涌水量,也远超过原设计排水系统的过水能力(60 770 m3/d)。由前期溶洞揭露出的干枯情况以及后期涌水观测记录,可以推断出此溶洞涌水属于季节性溶洞涌水。
4 溶洞排水处理
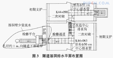
由于原设计洞内排水系统的最大排水能力为60 770 m3/d,无法满足208 800 m3/d最大用水量的要求,所以必须改造原有的洞内排水系统或另外新建一个泄水洞来满足最大涌水量。新建泄水洞能彻底的解决涌水问题,但泄水洞进口地段处于坡积层中,主洞施工时曾产生轻微表层滑动,泄水洞施工存在安全风险。且K44+090溶洞位置距离隧道进口K43+103直线距离就有近1 000 m,泄水洞断面又小,独头掘进施工困难,工期长,投资较大。改造洞内排水系统即将隧道截断的原有的岩溶管道,通过修建仰拱下横向暗沟和改造加宽原有的纵向50 cm的中心排水管连接起来,将K44+090涌水点岩溶水引至K44+063溶洞,再通过K44+063溶洞底部约1 m的岩溶管道将水引入既有的岩溶排水系统。横向暗沟采用1. 4 m×1 m(1. 75%流水坡)断面尺寸,其最大的排水能力为47 000 m3/d,纵向排水沟改造为1. 4 m×1. 4 m的排水沟,满足百年一遇的最大涌水量21 000 m3/d的要求。此方案施工难度小,投资小,工期较短,故选为溶洞处理的实施性方案。溶洞排水平面布置图见图3。

引入溶洞的施工难度主要是要保持K44+063处溶洞管道的通畅。为对溶腔壁进行加固和加宽溶洞内的过水断面,拆除了K44+063和K44+090处衬砌各2 m和3 m。拆除二次衬砌前,先凿槽嵌入托梁,同时注意不破坏两侧防水层,在恢复衬砌时,将两侧的防水层连接好。托梁与二次衬砌处设置橡胶止水带。溶腔壁加固采用长2. 5 m的22砂浆锚杆,呈梅花形布置,间距为1. 0 m×1. 0 m。拆除原有中心排水管后,为减小对原隧道衬砌结构的影响,在扩挖和仰拱填充拆除时采用静态破碎剂处理。排水暗沟立模后,原C15片石混凝土填充回填采用C20混凝土。暗沟盖板采用1. 4 m×1 m的C25混凝土盖板。恢复二次衬砌时,在既有的未拆除衬砌中插入长1 m的22钢筋,间距25 cm,双层布置。插入未拆除衬砌50 cm,预留50 cm的钢筋,保证新老衬砌混凝土的紧密连接。在K44+090岩溶水出水点设置一个排水廊道,同时为缓解岩溶水下泄时的巨大冲力,在排水廊道顶部设置一预留4个过水孔的顶板,每个过水孔的直径为60 cm。同时分别在K44+063和K44+090处衬砌设置一检修洞门,以便后期对溶洞水进行观测。
5 结语
对岩溶水的处理通常原则是以“排”为主,截、堵、排、防相结合的综合处理措施。“截”是指截断原有地下水通道,改走其他通道;“堵”是封死相交的地下水通道;“排”是特指引入隧洞,通过排水沟排走;“防”是指防止地下水进入隧道即可。
在隧道溶洞段衬砌施工过后溶洞才出现的大量岩溶水,本文认为岩溶水的处理应该是以“通”为主要,即是尽量保持原有过水通道,让岩溶水通过自然的、原有的岩溶管道排出。这样既可以保证岩溶水能全部排走,不会形成承压水,造成新的突水点,在施工上难度也不大,对原有的隧道结构不会产生很大的影响,工程投资也不会很大。
参考文献:
[1] 罗 琼.岩溶隧道施工技术[J].隧道建设, 2004, 24(5): 57-61.
[2] JTJ 042-94,公路隧道施工技术规范[S].
[3] 孙海洲.富水黄土隧道施工技术[ J].山西建筑, 2010, 36(11): 338-339. 来源: 《建筑中文网》.
施家梁隧道位于重庆市北碚区境内,为三线大跨隧道。隧道左线长4 303 m (LK43+107~LK47+410),右线长4 267. 5 m(K43+103~K47+370. 5),属特长隧道,且为全线控制性工程。公路设计等级为高速公路(六车道),设计荷载为公路—Ⅰ级,计算行车速度:100 km/h;路基宽度:分离式16.75 m,整体式33. 5 m;隧道建筑限界:宽14. 5 m,高5. 0 m。隧址区岩溶水主要赋存于三叠系中统雷口坡组、下统嘉陵江组合飞仙关组,以嘉陵江组为主要含水岩组,多形成带状的溶蚀槽谷,岩溶较发育,岩溶水较为丰富。隧道丰水期涌水量推荐为12 000 m3/d。(参考《建筑中文网》)
2 溶洞概况
原设计隧道洞身K44+050~K44+100段穿越地层为三叠系中统雷口坡组(T2L)及三叠系下统嘉陵江组四段(T1J4)白云岩、白云质灰岩、泥质灰岩夹盐溶角砾岩及灰岩,灰岩为微晶结构,中厚层状构造。岩层产状为134°∠43°,主要发育两组构造裂隙,其产状为:①232°∠68°,②315°∠47°,呈闭合~微张状,局部泥质充填。地下水较贫乏。灰岩单轴饱和抗压强度Rc=31MPa,完整性系数Kv=0.66,K1=0.2,K2=0.2, [BQ]=308。2007年2月10日,隧道右线上断面开挖至K44+063,围岩为灰岩夹泥岩,隧道左侧出现一较大溶洞,溶洞沿隧道前进方向长7 m,高7 m,深6 m,自隧道底部倾斜向上。上部逐渐变为直径0. 8 m的小溶洞向隧道顶部延伸,高度不可测,下部逐渐变为直径为1 m的小溶洞向隧道左线方向倾斜向下,深度不可测,溶洞内无水,但有水流痕迹。延伸至K44+070处溶洞消失(见图1)。开挖至K44+090,隧道右侧拱腰处又出现一个溶洞,直径1 m,溶洞沿隧道顶部倾斜向上,高度不可测。溶洞内无水也无流水痕迹(见图2)。


当时K44+063~K44+070处溶洞处理方案为: 1)溶洞内虚渣清除干净,留足1 m的保证溶洞内水流畅通;2)对溶腔壁进行锚杆加固,防止溶腔壁垮塌堵塞排水通道; 3)加强隧道的衬砌支护,由原设计的初期支护为钢格栅拱架调整为18工字钢拱架, 50 cm钢筋混凝土衬砌调整为60 cm的钢筋混凝土; 4)为防止雨季上部溶洞水流压力影响隧道安全,采用C20混凝土做1 m厚的护拱做保护。
K44+090处溶洞无水也无水流痕迹,故只在隧道初期支护时埋设了5根116的波纹管,以用做排水措施。在K44+063处衬砌左上部和K44+090处衬砌右上部及右下部各预留出一个观察孔,以便观察溶洞后期的涌水量。
3 溶洞突水情况
至2007年6月上旬,重庆市降雨比较少,溶洞内水量较小。2007年7月,重庆市连降暴雨,K44+063~K44+090衬砌施工缝处开始出现大量渗水,且水压非常大。经分析,原因是K44+090溶洞处有大量涌水,由于开口较小,涌水不能及时流出,在隧道顶部形成大面积的承压水,隧道衬砌无法承受巨大水压力,造成大量涌水从K44+090附近衬砌施工缝中流出。为缓解衬砌压力在此处钻孔引水,开孔后在溶洞处出现射程在14 m的股状压力水,最终拆除K44+090处2 m的二次衬砌,经观察及检测后测得此溶洞在暴雨后涌水峰值达到8 700 m3/h(208 800 m3/d),已完全超过地勘预测的涌水量,也远超过原设计排水系统的过水能力(60 770 m3/d)。由前期溶洞揭露出的干枯情况以及后期涌水观测记录,可以推断出此溶洞涌水属于季节性溶洞涌水。
4 溶洞排水处理
由于原设计洞内排水系统的最大排水能力为60 770 m3/d,无法满足208 800 m3/d最大用水量的要求,所以必须改造原有的洞内排水系统或另外新建一个泄水洞来满足最大涌水量。新建泄水洞能彻底的解决涌水问题,但泄水洞进口地段处于坡积层中,主洞施工时曾产生轻微表层滑动,泄水洞施工存在安全风险。且K44+090溶洞位置距离隧道进口K43+103直线距离就有近1 000 m,泄水洞断面又小,独头掘进施工困难,工期长,投资较大。改造洞内排水系统即将隧道截断的原有的岩溶管道,通过修建仰拱下横向暗沟和改造加宽原有的纵向50 cm的中心排水管连接起来,将K44+090涌水点岩溶水引至K44+063溶洞,再通过K44+063溶洞底部约1 m的岩溶管道将水引入既有的岩溶排水系统。横向暗沟采用1. 4 m×1 m(1. 75%流水坡)断面尺寸,其最大的排水能力为47 000 m3/d,纵向排水沟改造为1. 4 m×1. 4 m的排水沟,满足百年一遇的最大涌水量21 000 m3/d的要求。此方案施工难度小,投资小,工期较短,故选为溶洞处理的实施性方案。溶洞排水平面布置图见图3。

引入溶洞的施工难度主要是要保持K44+063处溶洞管道的通畅。为对溶腔壁进行加固和加宽溶洞内的过水断面,拆除了K44+063和K44+090处衬砌各2 m和3 m。拆除二次衬砌前,先凿槽嵌入托梁,同时注意不破坏两侧防水层,在恢复衬砌时,将两侧的防水层连接好。托梁与二次衬砌处设置橡胶止水带。溶腔壁加固采用长2. 5 m的22砂浆锚杆,呈梅花形布置,间距为1. 0 m×1. 0 m。拆除原有中心排水管后,为减小对原隧道衬砌结构的影响,在扩挖和仰拱填充拆除时采用静态破碎剂处理。排水暗沟立模后,原C15片石混凝土填充回填采用C20混凝土。暗沟盖板采用1. 4 m×1 m的C25混凝土盖板。恢复二次衬砌时,在既有的未拆除衬砌中插入长1 m的22钢筋,间距25 cm,双层布置。插入未拆除衬砌50 cm,预留50 cm的钢筋,保证新老衬砌混凝土的紧密连接。在K44+090岩溶水出水点设置一个排水廊道,同时为缓解岩溶水下泄时的巨大冲力,在排水廊道顶部设置一预留4个过水孔的顶板,每个过水孔的直径为60 cm。同时分别在K44+063和K44+090处衬砌设置一检修洞门,以便后期对溶洞水进行观测。
5 结语
对岩溶水的处理通常原则是以“排”为主,截、堵、排、防相结合的综合处理措施。“截”是指截断原有地下水通道,改走其他通道;“堵”是封死相交的地下水通道;“排”是特指引入隧洞,通过排水沟排走;“防”是指防止地下水进入隧道即可。
在隧道溶洞段衬砌施工过后溶洞才出现的大量岩溶水,本文认为岩溶水的处理应该是以“通”为主要,即是尽量保持原有过水通道,让岩溶水通过自然的、原有的岩溶管道排出。这样既可以保证岩溶水能全部排走,不会形成承压水,造成新的突水点,在施工上难度也不大,对原有的隧道结构不会产生很大的影响,工程投资也不会很大。
参考文献:
[1] 罗 琼.岩溶隧道施工技术[J].隧道建设, 2004, 24(5): 57-61.
[2] JTJ 042-94,公路隧道施工技术规范[S].
[3] 孙海洲.富水黄土隧道施工技术[ J].山西建筑, 2010, 36(11): 338-339. 来源: 《建筑中文网》.
原文网址:http://www.pipcn.net/research/201108/15014.htm
也许您还喜欢阅读:
