请告诉我们您的知识需求以及对本站的评价与建议。
满意 不满意
Email:
浅谈建筑装饰深化设计
栏目最新
- 低碳节能建筑设计的相关问题及解决方法
- 江苏建筑职业技术学院图书馆设计文化理念
- 四川雅安名山县涌泉村抗震小学的设计理念
- 四川汶川5.12大地震的启示
- 汶川大地震震中纪念馆的创作思考
- 洛阳洛南新区雅安新城结构设计
- 绿色居住建筑的节地设计
- 广州珠江新城海心沙地下空间建筑设计方案
- 黔东南地区郎德苗寨民居的热适应性
- 西气东输工程中长输管道站场建筑模块化设计与应用
网站最新
前 言
目前,国内建筑装饰行业对深化设计环节还没有足够重视。通常做法是:方案设计单位进行施工图设计,施工单位直接按施工图现场施工。由于方案设计单位一般只负责本专业设计范围内的设计,而且对具体施工工艺经验不足,对现场实际情况又缺乏必要的了解,因此方案设计单位交付的施工图普遍存在和现场其它专业交叉,又或无法按图施工的情况。同时,在较大规模的工程施工过程中,工程项目管理体制和程序都很复杂,方案设计单位结合施工现场实际情况及时修改完善施工图比较困难,方案设计单位往往疲于应付各类的施工现场及加工工艺问题,或者完全交给施工单位去自由发挥。结果总是导致工程不断返工,各方都付出很高的成本和很大的代价,但最后竣工的建筑装饰效果却还是大打折扣。(参考《建筑中文网》)
1 深化设计概念
“深化设计”是指在业主或设计顾问提供的条件图或原理图的基础上,结合施工现场实际情况,对图纸进行细化、补充和完善。深化设计后的图纸满足业主或设计顾问的技术要求,符合相关地域的设计规范和施工规范,并通过审查,图形合一,能直接指导现场施工。建筑装饰深化设计根据不同设计深度可分为三个层面:
(1)在方案设计单位完成方案设计的情况下,由施工单位完成施工图设计。
(2)已有施工图但不完备,如结点大样只给出所用材料而未给出具体做法等,由施工单位完成补充设计。
(3)设计图纸已达施工图要求,但具体实施过程中仍需继续施工细化,主要体现在精装施工方面,如建筑装饰材料排版方案,家具工艺设计,水电空调等安装专业末端定位设计等。
2 项目概况
上海陆家嘴国际金融金中心(以下简称国金中心)综合发展项目总面积约 60 万 m2,是目前上海陆家嘴最大的综合发展项目,拥有写字楼、商场和酒店等设施。其中南塔楼及北塔楼标段核心筒公共部分的建筑装饰,主要空间有标准层电梯大堂及卫生间合共约 14500m2。南塔楼从 2008 年 10 月开始施工,2009 年5 月竣工;北塔楼预计从 2009 年 10 月开始施工,预计于 2010 年4 月竣工。本次建筑装饰深化设计范围为南塔楼一区至四区办公层(5~38 层)共 30 层的电梯大堂、卫生间走道及公共卫生间。
3 深化设计目标
建筑装饰工程作为国金中心写字楼公共部分装饰项目的施工界面,是整个项目建设的关键环节。对主体设计单位的施工招标图纸进一步深化,可以对项目实施过程中可能会出现的问题作前瞻式的预见及解决,是使设计方案具备可实施性及施工进度保证的必要条件。
(1)通过对施工招标图的继续深化,对具体的构造方式、工艺做法和工序安排进行优化调整,使深化设计后的施工图完全具备可实施性,满足装饰工程精确按图施工的严格要求。
(2)通过深化设计对施工招标图中未能表达详尽的工艺性节点、剖面进行优化补充,对工程量清单中未能详尽包括的施工内容进行补漏拾遗,准确调整施工预算。
(3)通过深化设计对施工图纸的补充、完善及优化,进一步明确装饰与土建、幕墙等其它专业的施工界面,明确彼此可能交叉施工的内容,为各专业顺利配合施工创造有利条件。
4 深化设计作用
建筑装饰深化设计作为设计与施工之间的介质,立足于协调配合其他专业,保证本专业施工的可实施,同时保障设计创意的最终实现。深化设计工作强调发现问题,反映问题,并提出有建设性的解决方法。通过对施工图的深化设计,协助主体设计单位发现方案中存在的问题,发现各专业间可能存在的交叉;同时,协助施工单位理解设计意图,把可实施性的问题及相关专业交叉施工的问题及时向主体设计单位反映;在发现问题及反映问题的过程中,深化设计提出合理的建议,提交主体设计单位参考,协助主体设计单位迅速有效地解决问题,加快推进项目的进度。
5 深化设计管理流程
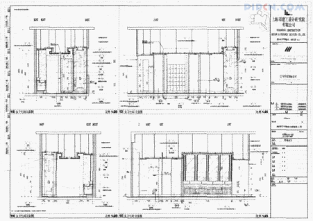
国金中心建筑装饰设计由 WILSON 新加坡公司设计。业主对深化设计图纸的要求很高,称深化设计图纸为车间图(SHOPDRAWING),SHOP DRAWING DESIGN 主要是用于需要进行加工的部分,比如安装构件或辅材用法。一般的施工人员拿着该深化设计图纸也能直接按图施工(如图所示)。


本项目工程图纸的审批流程因此比较繁复:施工工艺、材料要求(含详细型号、尺寸、规格)、现场数据等均要求详细反应到深化图纸上;再通过 WILSON 对装饰美观效果及柏诚顾问公司对机电末端定位审核并通过后;再由巴马丹拿顾问公司审核并通过,由巴马丹拿再发给总包;由总包再发给相关施工单位,如果前面其中任何一个顾问公司不通过就要重新修改并重新提交审核。以下是这次深化设计流程表:

6 深化设计过程协调
深化设计的出图依据为施工招标图纸(WILSON 的设计图纸)、设计规范及相关法律法规。本项目工期紧,如何减少深化设计由出图至确认过程中的反复,对于缩短深化设计时间来说至关重要。所以设计协调工作在深化设计过程中十分重要,协调工作分为对内协调与对外协调。
6.1 内部协调
(1)项目材料员应根据合同要求进行材料送样报审,材料报审通过后,再提供给设计进行深化。根据业主要求,已审批的材料数据都要在深化设计节点大样中详细标注,对深化设计的精细度要求很高,因此深化设计的工作量很大。
(2)在深化设计图纸完成后的加工订货阶段,厂家加工是精装饰施工二次创造的重要手段,是深化设计过程中最容易忽视的一个环节。厂家承担的工作主要是配合完善二次深化施工图纸,使厂家的产品符合现场的安装要求。但就目前现况来看,国内厂家的设计力量都还比较薄弱,仅局限于把设计图纸简单复制,仅满足于低水平、低技术含量的加工制造;而国外厂家所承担的工作是具有一定技术难度的,能按设计特殊要求进行开发、加工及安装,并且能绘制满足深化设计要求的图纸。
6.2 外部协调
本项目具有规模大,复杂程度高,工期短的特点,各专业的施工图纸存在许多不完善的地方。特别是机电安装专业,更是不可避免存在多专业交叉施工的情况。装饰深化设计将着重于与机电安装专业配合协调末端定位,安装方式及收口大样等工作;同时也对应向各专业设计单位提出配合定位要求。本次装饰深化设计专门针对上述重点、难点部位,全力配合机电专业与装饰设计之间的协调工作。
除了主体设计单位提供的施工图纸外,深化设计进程中的设计协调会议记录也应该作为深化设计的重要依据。积极参与各相关专业设计的设计协调会,尽量做到在会议现场解决问题。同时,协调会议的纪录应作为重要出图依据反映于之后的深化设计图纸中,这样才能够保证深化设计的出图及确认有效率地进行,使深化设计的时间减至最短。深化设计将综合各专业提出的合理建议,借鉴各方的工程经验,在材料使用、构造做法及装饰效果上,保证设计意图与技术实施性。
7 深化设计技术支持
国金中心项目工程规模大,在确保室内空间各项功能和装饰效果均满足业主要求的前提下,实现项目工程建设可控、按期、保质完成是本项目的首要难点。深化设计深度要求比以前所做过的项目要求都要高(如螺丝型号、间距,龙骨的排布距离等都要精细反映到图纸上)。为了在最短的时间内使图纸达到尽可能的完善及可实施性,现场施工技术人员有针对地、有重点地为深化设计做好技术性支持。通过深化设计,有效避免各专业之间的相互冲突,在保证技术性要求的前提下从装饰效果出发统筹各专业的末端定位,形式及界面要求,最终使各专业分包有机的整体性的融合于装饰界面。
8 深化设计团队
市场竞争也是智慧的竞争,今后谁的深化设计水平走在前列,谁就能在深化设计市场中获得最大的市场效益。为了搞好市场经营,要做以下两方面的工作:
(1)强力推行深化设计人才储备,选择具有一定的设计基础和一定业务综合技能,还要有一个以上完整工程施工经验和统筹思想,能熟练掌握 AUTO-CAD 的使用,工作踏实能干,吃苦耐劳的人才,具有较大的可塑性和发展空间。
目前,国内建筑装饰行业对深化设计环节还没有足够重视。通常做法是:方案设计单位进行施工图设计,施工单位直接按施工图现场施工。由于方案设计单位一般只负责本专业设计范围内的设计,而且对具体施工工艺经验不足,对现场实际情况又缺乏必要的了解,因此方案设计单位交付的施工图普遍存在和现场其它专业交叉,又或无法按图施工的情况。同时,在较大规模的工程施工过程中,工程项目管理体制和程序都很复杂,方案设计单位结合施工现场实际情况及时修改完善施工图比较困难,方案设计单位往往疲于应付各类的施工现场及加工工艺问题,或者完全交给施工单位去自由发挥。结果总是导致工程不断返工,各方都付出很高的成本和很大的代价,但最后竣工的建筑装饰效果却还是大打折扣。(参考《建筑中文网》)
1 深化设计概念
“深化设计”是指在业主或设计顾问提供的条件图或原理图的基础上,结合施工现场实际情况,对图纸进行细化、补充和完善。深化设计后的图纸满足业主或设计顾问的技术要求,符合相关地域的设计规范和施工规范,并通过审查,图形合一,能直接指导现场施工。建筑装饰深化设计根据不同设计深度可分为三个层面:
(1)在方案设计单位完成方案设计的情况下,由施工单位完成施工图设计。
(2)已有施工图但不完备,如结点大样只给出所用材料而未给出具体做法等,由施工单位完成补充设计。
(3)设计图纸已达施工图要求,但具体实施过程中仍需继续施工细化,主要体现在精装施工方面,如建筑装饰材料排版方案,家具工艺设计,水电空调等安装专业末端定位设计等。
2 项目概况
上海陆家嘴国际金融金中心(以下简称国金中心)综合发展项目总面积约 60 万 m2,是目前上海陆家嘴最大的综合发展项目,拥有写字楼、商场和酒店等设施。其中南塔楼及北塔楼标段核心筒公共部分的建筑装饰,主要空间有标准层电梯大堂及卫生间合共约 14500m2。南塔楼从 2008 年 10 月开始施工,2009 年5 月竣工;北塔楼预计从 2009 年 10 月开始施工,预计于 2010 年4 月竣工。本次建筑装饰深化设计范围为南塔楼一区至四区办公层(5~38 层)共 30 层的电梯大堂、卫生间走道及公共卫生间。
3 深化设计目标
建筑装饰工程作为国金中心写字楼公共部分装饰项目的施工界面,是整个项目建设的关键环节。对主体设计单位的施工招标图纸进一步深化,可以对项目实施过程中可能会出现的问题作前瞻式的预见及解决,是使设计方案具备可实施性及施工进度保证的必要条件。
(1)通过对施工招标图的继续深化,对具体的构造方式、工艺做法和工序安排进行优化调整,使深化设计后的施工图完全具备可实施性,满足装饰工程精确按图施工的严格要求。
(2)通过深化设计对施工招标图中未能表达详尽的工艺性节点、剖面进行优化补充,对工程量清单中未能详尽包括的施工内容进行补漏拾遗,准确调整施工预算。
(3)通过深化设计对施工图纸的补充、完善及优化,进一步明确装饰与土建、幕墙等其它专业的施工界面,明确彼此可能交叉施工的内容,为各专业顺利配合施工创造有利条件。
4 深化设计作用
建筑装饰深化设计作为设计与施工之间的介质,立足于协调配合其他专业,保证本专业施工的可实施,同时保障设计创意的最终实现。深化设计工作强调发现问题,反映问题,并提出有建设性的解决方法。通过对施工图的深化设计,协助主体设计单位发现方案中存在的问题,发现各专业间可能存在的交叉;同时,协助施工单位理解设计意图,把可实施性的问题及相关专业交叉施工的问题及时向主体设计单位反映;在发现问题及反映问题的过程中,深化设计提出合理的建议,提交主体设计单位参考,协助主体设计单位迅速有效地解决问题,加快推进项目的进度。
5 深化设计管理流程
国金中心建筑装饰设计由 WILSON 新加坡公司设计。业主对深化设计图纸的要求很高,称深化设计图纸为车间图(SHOPDRAWING),SHOP DRAWING DESIGN 主要是用于需要进行加工的部分,比如安装构件或辅材用法。一般的施工人员拿着该深化设计图纸也能直接按图施工(如图所示)。


本项目工程图纸的审批流程因此比较繁复:施工工艺、材料要求(含详细型号、尺寸、规格)、现场数据等均要求详细反应到深化图纸上;再通过 WILSON 对装饰美观效果及柏诚顾问公司对机电末端定位审核并通过后;再由巴马丹拿顾问公司审核并通过,由巴马丹拿再发给总包;由总包再发给相关施工单位,如果前面其中任何一个顾问公司不通过就要重新修改并重新提交审核。以下是这次深化设计流程表:

6 深化设计过程协调
深化设计的出图依据为施工招标图纸(WILSON 的设计图纸)、设计规范及相关法律法规。本项目工期紧,如何减少深化设计由出图至确认过程中的反复,对于缩短深化设计时间来说至关重要。所以设计协调工作在深化设计过程中十分重要,协调工作分为对内协调与对外协调。
6.1 内部协调
(1)项目材料员应根据合同要求进行材料送样报审,材料报审通过后,再提供给设计进行深化。根据业主要求,已审批的材料数据都要在深化设计节点大样中详细标注,对深化设计的精细度要求很高,因此深化设计的工作量很大。
(2)在深化设计图纸完成后的加工订货阶段,厂家加工是精装饰施工二次创造的重要手段,是深化设计过程中最容易忽视的一个环节。厂家承担的工作主要是配合完善二次深化施工图纸,使厂家的产品符合现场的安装要求。但就目前现况来看,国内厂家的设计力量都还比较薄弱,仅局限于把设计图纸简单复制,仅满足于低水平、低技术含量的加工制造;而国外厂家所承担的工作是具有一定技术难度的,能按设计特殊要求进行开发、加工及安装,并且能绘制满足深化设计要求的图纸。
6.2 外部协调
本项目具有规模大,复杂程度高,工期短的特点,各专业的施工图纸存在许多不完善的地方。特别是机电安装专业,更是不可避免存在多专业交叉施工的情况。装饰深化设计将着重于与机电安装专业配合协调末端定位,安装方式及收口大样等工作;同时也对应向各专业设计单位提出配合定位要求。本次装饰深化设计专门针对上述重点、难点部位,全力配合机电专业与装饰设计之间的协调工作。
除了主体设计单位提供的施工图纸外,深化设计进程中的设计协调会议记录也应该作为深化设计的重要依据。积极参与各相关专业设计的设计协调会,尽量做到在会议现场解决问题。同时,协调会议的纪录应作为重要出图依据反映于之后的深化设计图纸中,这样才能够保证深化设计的出图及确认有效率地进行,使深化设计的时间减至最短。深化设计将综合各专业提出的合理建议,借鉴各方的工程经验,在材料使用、构造做法及装饰效果上,保证设计意图与技术实施性。
7 深化设计技术支持
国金中心项目工程规模大,在确保室内空间各项功能和装饰效果均满足业主要求的前提下,实现项目工程建设可控、按期、保质完成是本项目的首要难点。深化设计深度要求比以前所做过的项目要求都要高(如螺丝型号、间距,龙骨的排布距离等都要精细反映到图纸上)。为了在最短的时间内使图纸达到尽可能的完善及可实施性,现场施工技术人员有针对地、有重点地为深化设计做好技术性支持。通过深化设计,有效避免各专业之间的相互冲突,在保证技术性要求的前提下从装饰效果出发统筹各专业的末端定位,形式及界面要求,最终使各专业分包有机的整体性的融合于装饰界面。
8 深化设计团队
市场竞争也是智慧的竞争,今后谁的深化设计水平走在前列,谁就能在深化设计市场中获得最大的市场效益。为了搞好市场经营,要做以下两方面的工作:
(1)强力推行深化设计人才储备,选择具有一定的设计基础和一定业务综合技能,还要有一个以上完整工程施工经验和统筹思想,能熟练掌握 AUTO-CAD 的使用,工作踏实能干,吃苦耐劳的人才,具有较大的可塑性和发展空间。
原文网址:http://www.pipcn.net/research/201102/14771.htm
也许您还喜欢阅读:
