请告诉我们您的知识需求以及对本站的评价与建议。
满意 不满意
Email:
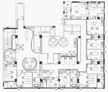
柏莉雅女子会所设计方案
栏目最新
- 低碳节能建筑设计的相关问题及解决方法
- 江苏建筑职业技术学院图书馆设计文化理念
- 四川雅安名山县涌泉村抗震小学的设计理念
- 四川汶川5.12大地震的启示
- 汶川大地震震中纪念馆的创作思考
- 洛阳洛南新区雅安新城结构设计
- 绿色居住建筑的节地设计
- 广州珠江新城海心沙地下空间建筑设计方案
- 黔东南地区郎德苗寨民居的热适应性
- 西气东输工程中长输管道站场建筑模块化设计与应用
网站最新
内容提示:本案以SPA所赋予女子皮肤的细滑、柔、嫩、弹性等特点作为SPA设计的出发思路。空间里大量采用米白色软膜、皮质软包、纱缦等材料,并通过LED的变幻照明,尽显女性的健康与时尚。
本案以SPA所赋予女子皮肤的细滑、柔、嫩、弹性等特点作为SPA设计的出发思路。空间里大量采用米白色软膜、皮质软包、纱缦等材料,并通过LED的变幻照明,尽显女性的健康与时尚。比如半开放的顾问间,精巧设计为半包球式软膜结构,极具梦幻气息,好似一滴滴水珠一般的灯具,以及为空间精心挑选了极富女性线条形体美的座椅。(参考《建筑中文网》)

为了更为充分地考虑到空间的商业用途及本土大众的审美情趣,设计上选取了深得人心的欧式元素加以填充,使得空间仿佛一枚饱满果实,剥开后更别有一番天地。且看温润的软包墙面、色彩基调统一的空间、低调却不减华美的化妆台,所有的一切都在彰显着欧式简洁明亮的生活态度,以其柔软舒适,更体现空间的服务功能。在这个空间中,既能够体会到国际先锋的柔性改良,同时,亦享受着符合自己审美理念的深层内核。这便是设计的独到之处,在引进其理念的同时,亦考虑空间的商业赢利与功能,顺从大众审美,将二者完美地融为一体。

工程名称:柏莉雅女子会所
坐落地点:福州
设计公司:福州林开新室内设计有限公司
设计时间:2008.12
竣工时间:2009.04



设计师:林开新 LINKAI-XIN
福州林开新室内设计有限公司创始人
2006 年在 APIDA 亚太区室内设计大赛中获学院社团公共空间类别金奖
2006 年 荣获 美 国 杂志《INTERIOR DESIGN》
2006~2007中国室内设计师年度封面人物
2007 年在 CIID 中国室内设计大奖赛中获“办公工程类”一等奖
2007 年在中国(上海)国际建筑及室内设计节获“金外滩”最佳公共空间奖
2009 年在中国(上海)国际建筑及室内设计节获“金外滩”办公空间优秀奖 来源: 《建筑中文网》.

为了更为充分地考虑到空间的商业用途及本土大众的审美情趣,设计上选取了深得人心的欧式元素加以填充,使得空间仿佛一枚饱满果实,剥开后更别有一番天地。且看温润的软包墙面、色彩基调统一的空间、低调却不减华美的化妆台,所有的一切都在彰显着欧式简洁明亮的生活态度,以其柔软舒适,更体现空间的服务功能。在这个空间中,既能够体会到国际先锋的柔性改良,同时,亦享受着符合自己审美理念的深层内核。这便是设计的独到之处,在引进其理念的同时,亦考虑空间的商业赢利与功能,顺从大众审美,将二者完美地融为一体。

工程名称:柏莉雅女子会所
坐落地点:福州
设计公司:福州林开新室内设计有限公司
设计时间:2008.12
竣工时间:2009.04



设计师:林开新 LINKAI-XIN
福州林开新室内设计有限公司创始人
2006 年在 APIDA 亚太区室内设计大赛中获学院社团公共空间类别金奖
2006 年 荣获 美 国 杂志《INTERIOR DESIGN》
2006~2007中国室内设计师年度封面人物
2007 年在 CIID 中国室内设计大奖赛中获“办公工程类”一等奖
2007 年在中国(上海)国际建筑及室内设计节获“金外滩”最佳公共空间奖
2009 年在中国(上海)国际建筑及室内设计节获“金外滩”办公空间优秀奖 来源: 《建筑中文网》.
原文网址:http://www.pipcn.net/research/201011/14446.htm
也许您还喜欢阅读:
