请告诉我们您的知识需求以及对本站的评价与建议。
满意 不满意
Email:
尊重环境,和谐共生——湖南省委蓉园宾馆8号楼改扩建工程设计
栏目最新
- 低碳节能建筑设计的相关问题及解决方法
- 江苏建筑职业技术学院图书馆设计文化理念
- 四川雅安名山县涌泉村抗震小学的设计理念
- 四川汶川5.12大地震的启示
- 汶川大地震震中纪念馆的创作思考
- 洛阳洛南新区雅安新城结构设计
- 绿色居住建筑的节地设计
- 广州珠江新城海心沙地下空间建筑设计方案
- 黔东南地区郎德苗寨民居的热适应性
- 西气东输工程中长输管道站场建筑模块化设计与应用
网站最新
内容提示:本文通过对湖南蓉园宾馆8号楼改扩建工程设计的总结,从项目场地环境的解读入手,重点对其总体设计、建筑体型,空间设计,生态节能技术应用等方面进行了阐述,并在空间环境的营造上,运用中国传统设计元素以及低技生态的传统设计手法等方面进行了有益的探索。

图1 - 蓉园总平面图

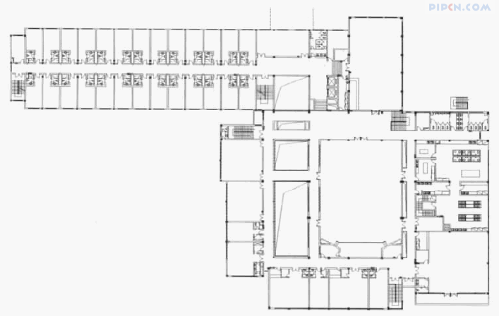
图 2 -2 层平面图

图 3 - 剖面图

图 4 - 中心主庭院

图 5 - 邻主庭院内

图 6 - 内廊采光天井

图 7 - 远观建筑整体环境

图 8 - 建筑东北角局部环境

图 9 - 建筑与周边环境和谐共生

图 10 - 南向建筑细部
湖南蓉园宾馆位于长沙市蓉园路 1 号,西侧紧邻省委大院,东侧为车站北路,隶属湖南省委接待工作办公室。主要负责省委重要会议的接待服务工作,承担重要外宾、党和国家领导人及省委重要客人的接待任务。蓉园占地 230 亩,总建筑面积 30000 多平方米,其周边三面环水,园内林木繁茂,十余栋典雅别致的低层酒店建筑掩映在绿色丛中,一派静谧清雅,素有湖南“钓鱼台”之美誉。(参考《建筑中文网》)
上世纪初曾是湖南省政要之私家花园,自五十年代始成为湖南省接待党和国家领导人及外国元首的下榻之地。2006 年,为扩展宾馆的功能和规模、提升服务档次,根据建设方要求,我院承担了蓉园宾馆若干改扩建工程,其中 8 号楼的改扩建要求,按照四星级宾馆标准配套设计,保留 8号楼客房主体结构,配套完善会议和餐饮设施等。改扩建设计后,8 号楼总建筑面积扩大至10000 余平方米,新建部分结构型式为钢筋混凝土框架结构,抗震等级按 6 度设防,建筑耐火等级为一级。
1 设计理念
蓉园宾馆 8 号楼地处蓉园内中部,周边有 1号楼、7 号楼、体育综合楼等建筑相邻,原有地段东侧有假山、池塘、10 余棵大的香樟环绕左右,环境得天独厚。方案设计理念:首先是充分尊重蓉园现有的环境特征,以蓉园的优雅环境为背景,建筑的体量大小空间尺度等处理均从尊重环境入手,环境是主角,建筑是配角,是从属的位置.同时, 使新建筑部分同现存环境产生富有意义的对话,注意新建筑的色彩,型式,元素,空间等方面与相邻建筑及环境产生和谐的关系。其二,充分利用现代设计手法和现代科技手段,以人为本进行规划设计,力求建筑人性化,环境生态化,建筑与环境和谐,体现园林式国宾馆的高雅与宁静。因地制宜合理地采用建筑生态节能设计方法,在自然、通风、采光,营造良好的室内环境及舒适度方面,规划设计在方案阶段做好基础铺垫工作并创造良好的条件。
2 总体设计
蓉园 8 号楼新建部分依托现有保留的客房楼,向南向东两向扩展,在最大限度地保护现有生态环境的前提下,使新建筑有机地穿插和布局,并与南侧新建的体育综合楼保持了适宜的外部距离和空间关系,重点保留了东、南两向一些有保留价值的树木,在总体设计中,建筑物亦作了相应的避让,使改扩建后的建筑整体与环境十分融洽,总体生态环境得到了保护和利用,取得了良好的效果。扩建建筑与客房楼共用大堂主入口设在北侧,工作人员入口设在建筑南侧。交通流线分明,互不干扰,建筑物东、南与北向均有 7米宽通道,与主入口、次入口相连。东向、北向均结合园路设有两个专用停车场,约可停小车 100多辆,满足了相关配套的要求。
3 单体设计
3.1 功能设计:蓉园 8 号楼建筑以原有 3 层客房为设计基础,与扩建部分进行了功能上的整合,由公共大堂为交通枢纽分别连接客房和扩建的会议,餐饮等功能配套用房。拟保留的客房楼和大堂在原有基础上,设计将现有功能进一步完善,增加服务配套用房和设施,如布草间、行李间、开水间、消毒室、员工休息室、电梯等。扩建部分分为地上二层和半地下层,其主要功能分布,一层中心部位设有宴会厅前厅和可容纳 400 人的宴会厅 1 个,周边环廊临近大堂位置设有贵宾接待室,另外10 余间VIP 包厢分别依西、南两向环绕内庭院布置。主厨房设在宴会厅东侧,并通过内环廊与宴会厅相连。大堂吧(茶座、咖啡厅)紧邻大堂布置,同时亦与餐饮部分有方便的联系。半地下层为宾馆服务人员配套用房和厨房部分的粗加工及库房。二层中心部位设有多功能厅前厅及 300 座多功能厅 1 个,沿周边环廊设有中心会议室 2间,中餐厅(兼自助餐厅)1 个和若干 VIP 包厢。扩建部分一、二层均利用两个矩形的宴会厅前厅和多功能厅前厅,与大堂和客房部分紧密联系,实现了各功能的有机联系和整合。
3.2 建筑空间与外部造型
建筑空间采用中国传统的设计元素和手法,将庭院和采光天井、回廊、廊桥等空间的元素与使用功能空间之间进行了巧妙的组合和营造。如紧邻宴会厅的主庭院呈矩形布局上下回廊环绕,设计以水景为主题,底层临水通过之字形木栈道,植物,台灯、座椅等小品的元素有机组合,加上庭院上空廊桥飞渡跨越二层东西两端,似构成了一幅长桥卧波,廊腰缦回,天光云影,庭院深深的东方元素画卷。另外环绕主庭院的内廊上下二层均以通高中空玻璃点式幕墙来形成通透的围合,使观者漫步廊中形成了步移景异的空间感受。除内廊之外还有结合主要功能用房如贵宾厅的外廊设计,更是拉近了建筑与自然的距离。这种以传统元素内外廊、天井、庭院、廊桥、栈道等与外部景观空间的相互渗透、交融,在这里产生了生动、诗意的空间效果。又如内廊设计从竖向高度上穿插了若干采光天井,使上下层廊道沐浴在光与影的韵律变化之中,水平纵深利用转折的廊道尽端,框景式的把自然景色作为廊道空间的底景、对景,也使得廊道空间凭添了几分活力和情趣。而沿廊道环绕布置的 VIP 包间的每一扇落地外窗也都是一幅幅自然的山水图画,当观者打开窗帘,周边的森林、水景一时间都扑面而来之时,那将是一种多么惬意的感受。
建筑造型从整体上讲求建筑体量适宜、比例尺度和既有环境的和谐。遵循整体环境第一,建筑服从大环境背景尺度的原则,外部造型设计兼顾保留客房的原有建筑风格,同时与周边现有建筑也能有所呼应与对话,设计采用了坡屋顶,檐柱廊、角窗、点窗、楼台等元素,力求体现一种水平舒展,错落有致,光影变化,富有韵律,清新典雅,简洁明快的现代国宾馆形象。
3.3 交通流线
蓉园 8 号楼改扩建工程的交通流线设计,以功能分区为基础,划分了明确的交通流线,旅客流线:一层门廊车道边———大堂———大堂西侧至各层客房(亦可从大堂内电梯上至楼层客房),大堂南侧经过宴会厅前厅可到达 400 人宴会厅,或经过主庭院西侧、南侧回廊到达各 VIP 包厢。在宴会厅前厅东西两端各设有一部楼梯供上下层垂直交通联系,然后通过二层多功能厅前厅和内回廊到达 300 人多功能厅、中会议室,若干 VIP包厢等。
工作人员流线:客房部分员工从原有客房楼西入口进入,通过西端楼梯到达客房各层的工作用房。餐饮、会议部分员工从扩建新楼的东南侧员工入口,通过专用楼梯至半地下层,进入员工更衣、休息区,然后经过专用通道连接东西两部专用楼梯,到达服务区域和厨房等位置。该改扩建工程的交通流线设计,实现了旅客和工作人员流线的完全分流和互不干扰,明显提升了蓉园 8号楼的整体服务档次。
3.4 建筑生态与节能
蓉园 8 号楼改扩建工程设计秉承绿色生态、节能的原则,首先在原有环境的基础上保留并整合了有价值的乔木植物、池塘水面,疏林草地等景观资源,最大限度地维护了既有环境的原生态性。建筑设计融入了庭院天井,廊道、坡屋顶、天窗、高侧窗等元素,不仅丰富了建筑的内外空间环境,而且在构造技术措施上采用了传统低技生态的手段和现代新技术方面均取得了实质的效果。如利用建筑周边的树木、植被、池塘以及结合建筑内部空间的水景庭院主题 -- 为建筑营造了适合地域气候的遮阳、通风透气,开敞宜人的外部生态环境。该设计也为维护和进一步优化蓉园得天独厚的小气候环境创造了条件。
另外,改扩建设计中建筑空间的庭院,回廊、天井、天窗,大空间高侧窗、半地下室采光高窗等元素的应用极大地改善了建筑内部的自然采光,节约了大量的人工照明能耗,同时也优化了建筑内部的光环境。
在自然通风设计上,利用穿堂风的原理组织了北向大堂———中心庭院——中空玻璃点幕通风格栅——南向各功能用房之间有效的自然通风。二层多功能厅上空的电动遮阳帘和高侧窗设计则利用了热压的原理,在夏季夜晚打开遮阳窗帘和高侧窗,由于热空气上浮使底层凉爽的新鲜空气迅速形成对流,以改善大空间的通风换气和有效地降温。冬季则打开遮阳帘关闭高侧窗,使阳光能照对到室内,提高了多功能大空间的室内温度,从而达到节能的目的。
原文网址:http://www.pipcn.net/research/201002/14283.htm
也许您还喜欢阅读:
