请告诉我们您的知识需求以及对本站的评价与建议。
满意 不满意
Email:
天津津塔结构设计
栏目最新
- 低碳节能建筑设计的相关问题及解决方法
- 江苏建筑职业技术学院图书馆设计文化理念
- 四川雅安名山县涌泉村抗震小学的设计理念
- 四川汶川5.12大地震的启示
- 汶川大地震震中纪念馆的创作思考
- 洛阳洛南新区雅安新城结构设计
- 绿色居住建筑的节地设计
- 广州珠江新城海心沙地下空间建筑设计方案
- 黔东南地区郎德苗寨民居的热适应性
- 西气东输工程中长输管道站场建筑模块化设计与应用
网站最新
内容提示:天津津塔是一栋高336.9m的钢结构超高层建筑,主要抗侧力体系采用"钢管混凝土柱框架+核心钢板剪力墙体系+外伸刚臂抗侧力体系"组成。薄钢板剪力墙结构作为一种新的结构体系,充分利用薄钢板的拉力场效应,具有较大的弹性初始刚度、大变形能力和良好的塑性性能、稳定的滞回特性等优点。国内还没有类似工程的先例。基于大量的理论研究和试验研究相结合的研究成果,津塔结构设计解决了不同施工工况下钢板剪力墙设计,根据大震下柱脚拉压力设计双底板柱脚、钢管混凝土柱设计规范选择比较和弹塑性分析等技术难点。
0 工程概况
天津津塔位于天津市兴安路北侧,海河岸边,其中办公楼共75层,高度为336·9m,建成后将成为天津最高的建筑(图1),也将成为世界上高度最高的钢板剪力墙结构。津塔项目由金融街控股股份有限公司投资开发,设计单位为美国SOM公司和华东建筑设计研究院有限公司[1]。(参考《建筑中文网》)

图1 工程效果图
Fig.1 Perspectivedrawing
天津津塔项目基地面积22257·9m2,由一幢75层的塔楼和一幢30层的公寓楼组成,所有单体下部均设4层地下室,并共享同一基础层。
1 结构体系
天津津塔主楼房屋高度为336·9m(室外地面到主要屋面),属超高层建筑,且采用“钢管混凝土柱框架+核心钢板剪力墙体系+外伸刚臂抗侧力体系”的结构体系标准层,设备结构平面图及钢板剪力墙局部立面图见图2~图5,其中钢板剪力墙(steelplateshearwall)作为抗侧力体系的重要组成部分,在中国高层建筑中应用较少,中国规范未规定此体系的高度限制值;最大高宽比为值为7·88,超出规范要求6较多;楼板局部不连续;在第15、30、45、60层设置了伸臂桁架和腰桁架加强层,上下楼层间侧向刚度、楼层承载力存在突变。

图2 主楼结构体系示意图
Fig.2 Sketchofmainstrcuturesystem

图3 标准层结构平面图
Fig.3 Structuralstandardfloorplan

图4 设备层结构平面图
Fig.4 Structuralplanoffacilityfloor

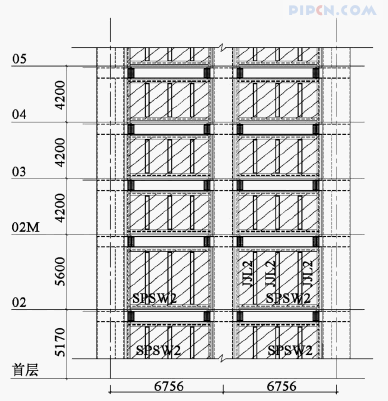
图5 钢板剪力墙局部立面图
Fig.5 SPSWpartialelevationview
塔楼的外框部分由钢管混凝土柱和宽翼缘钢梁组成,周边典型柱距约为6·5m,外框柱刚接。钢板剪力墙核心筒由钢管混凝土柱和内填结构钢板的宽翼缘钢梁组成,钢板剪力墙位于结构的核芯筒区域,在载客与服务电梯以及楼梯和设备室的周围。第15、30、45、60层设置伸臂桁架加强层,在钢板剪力墙核心筒与外框之间布置大型钢桁架,在外框内布置腰桁架。根据分析结果,不同位置的钢板剪力墙单元在不同高度变成钢框架+钢支撑体系。
塔楼的基础体系由4m厚的常规钢筋混凝土筏式基础组成,并由钻孔灌注桩支撑。钻孔桩直径为1000mm,桩长60m,桩尖持力层为11层,基础混凝土为C40。基础体系上将覆盖400mm厚的砾石层和150mm厚的钢筋混凝土顶板。
塔楼的重力系统由传统的宽翼缘钢框架和组合楼板组成。典型的组合楼板为65mm闭口型压型钢板,加55mm混凝土面层,总板厚为120mm。大部分宽翼缘组合钢梁为450mm高,从核心筒钢板剪力墙一直到周边延性抗弯框架。典型梁跨中板跨3·25m。钢板剪力墙和周边延性抗弯框架处的钢管混凝土柱也用于抗重力荷载。
上部结构的侧力和重力系统一般向下沿伸到基础结构。钢管混凝土柱最大直径为1700mm。框架结构将由传统的结构宽翼缘钢框架及组合楼板组成。宽翼缘钢组合梁一般450mm高,从钢板剪力墙核心筒一直到周边延性抗弯框架,梁一般置于中央3·25m处。
2 结构计算分析
2·1 结构设计依据及基本设计参数
结构设计中不仅要满足国内规范、规程和标准,同
时参考了加拿大《钢结构极限状态设计》(CANCSAS16-01),美国《新建建筑与其他结构的推荐做法》2003
NEHRP(FEMA450),美国《钢结构建筑的抗震做法》
(AISC-3412005)进行钢板剪力墙设计。
津塔结构安全等级为二级,抗震设防烈度7度,设计基本地震加速度0·15g,设计地震分组第一组,多遇地震下阻尼比0·035,建筑场地类别III类,罕遇地震下阻尼比0·050,场地特征周期Tg=0·5s。津塔主体结构的风荷载确定,按照“强度控制按100年规范风速风洞试验荷载;位移控制按50年规范风速风洞试验荷载”原则进行。
2·2 结构分析主要结果计算分析采用了多种软件和自编程序,整体结构的
弹性分析主要依靠ETABS为主,MIDAS为辅完成,包括恒活载的施工模拟分析,反应谱分析和风荷载分析等;采用ABAQUS和SAP2000进行弹塑性时程分析,用以验证结构在中震和大震下的性能。
主要弹性分析结果见表1~表3。两种软件的分析结果均表明,ETABS和MIDAS不仅分析结果基本吻合,而且所有均能够满足规范的要求,结构是安全可靠的。
表1 结构基本自振周期对比
Table1 Comparison of structural natural period of vibration

表2 层间位移角对比
Table2 Comparison of interstory drift ratio

表3 基底剪力对比
Table3 Comparison of base shear

2·3 钢板剪力墙设计
钢板剪力墙(简称“SPSW”)结构是20世纪70年代发展起来的一种新型抗侧力结构体系[2]。钢板剪力墙单元由内嵌钢板和竖向边缘构件(柱或竖向加劲肋)、水平边缘构件(梁或水平加劲肋)构成。当钢板沿结构某跨自上而下连续布置时,即形成钢板剪力墙体系。钢板剪力墙作为新型抗侧力构件,具有较大的弹性初始刚度、大变形能力和良好的塑性性能、稳定的滞回特性等。到目前为止,采用钢板剪力墙作为抗侧力结构的建筑已达数十幢,主要分布于北美和日本等高烈度地震区。我国《高层民用建筑钢结构技术规程》(JGJ99—98)附录四明确了钢板剪力墙的计算准则和方法,其设计角度是从避免钢板发生屈曲破坏切入的,即以弹性屈曲强度作为钢板剪力墙的设计极限状态,没有利用钢板弹性局部屈曲后强度,通常称之为厚钢板剪力墙。而厚钢板剪力墙用钢量大成本较高,发展则受到一定限制。津塔办公楼核心筒开间较大,钢板剪力墙的宽厚比也较大,采用厚钢板剪力墙理念进行设计,成本将大幅度上升。津塔办公楼采用的是目前国际上比较流行的
钢板剪力墙设计理念,即允许钢板在水平力作用下发生局部屈曲并利用钢板屈曲后强度产生的张力场效应继续抵抗水平力作用,总结起来有以下5点特征:
(1)原则上钢板剪力墙不承担竖向荷载,但在实际情况下,不可避免地要承受竖向荷载作用(如楼面活荷载等)的影响,产生竖向压应力;
(2)在常遇地震作用及风荷载组合设计值作用下,钢板剪力墙设计满足规范(JGJ99—98)附录四的要求,即只发生弹性变形而不会发生屈曲(图6a),同时钢板屈曲验算应该满足薄板的三向应力稳定验算公式;

图6 地震作用下的钢板墙
Fig.6 SPSW under earthquake action
(3)在中震和罕遇地震中,允许钢板发生局部屈曲,并且钢板屈曲后产生的张力场效应成为结构抵抗侧向力的主要机制(图6b);
(4)在中震和罕遇地震作用下,水平向边界单元(梁)端部可以出现塑性铰,但不得出现破坏或丧失强度;
(5)在中震作用下,竖向边界单元(柱)端部不能出现塑性铰。在罕遇地震作用下,除16层以下竖向边界单元不能屈服外,其它柱端部可以出现塑性铰,但不得出现破坏或丧失强度。
通过以上的设计理念及方法,津塔办公楼钢板剪力墙可以满足承载力极限状态和正常使用状态要求。
2·4 施工模拟分析

图7 施工模拟工况简图
Fig.7 Construction simulation sketch
津塔作为具有伸臂桁架、钢板剪力墙的超高层复杂建筑结构体系其结构力学特征具有高度的施工相关性。不同的施工工况时钢管柱和钢板墙等构件的内力有非常大的差异,并且由于钢板墙施工进度不同,在施工过程中钢板会产生不同程度的压应力,这对钢板的屈曲分析影响也是十分重要的,因此津塔设计过程中必须进行施工模拟分析,如图7。在分析过程中主要考虑了以下几个方面的因素:
(1)钢板剪力墙的安装顺序:钢板剪力墙较早安装,有利于保证施工过程中不同阶段的结构整体刚度,有利于施工进度,但容易导致钢板剪力墙本身承担较大的竖向荷载,核芯筒内外柱竖向力差别较大;较晚安装则情况相反。
(2)伸臂桁架安装顺序:伸臂桁架较早安装,有利于提高施工过程中不同阶段的结构刚度及整体性,有利于施工进度,同时能够将更多的内部荷载通过伸臂桁架卸载到外筒柱,减小内筒柱在恒载下的压力值,但不利于内筒柱大震下抗拉设计。
施工模拟分析采用ETABS软件,对全部安装过程划分为21个阶段,对每个阶段具有不同的结构状态及荷载状态,施工过程中考虑P-Δ效应。施工模拟完成后的状态作为恒载对结构作用状态的反映,在后续设计中与活、风、地震组合(小震设计阶段),或作为中、大震弹塑性分析的起始状态。
设计过程中对上述各因素进行了对比分析,最终确定了“钢板剪力墙系统及伸臂桁架滞后15层安装”的施工方案,具体如下:
(1)钢板剪力墙滞后主体结构(柱、梁、楼板混凝土)15层安装;
(2)钢板剪力墙上方内筒支撑,作用类似钢板剪力墙,同样滞后主体结构15层安装;
(3)伸臂桁架:斜杆滞后主体结构(柱、梁、楼板混凝土)15层安装,水平杆顺序安装。
上述施工过程起到的作用为
(1)钢板剪力墙滞后一定楼层安装,在施工进度、结构整体刚度及钢板剪力墙自身竖向应力之间取得平衡,即钢板剪力墙设计为在满足承担一定竖向恒荷载的前提下,满足“小震不屈曲”,同时对结构整体刚度及施工进度较为有利;
(2)伸臂桁架滞后一定楼层安装,在内外筒柱压力之间获得平衡,使得大震下内筒柱脚拉力设计较为合理。
原文网址:http://www.pipcn.net/research/201001/14203.htm
也许您还喜欢阅读:
