重庆大剧院舞台桁架高空滑移安装施工技术探讨
- 东莞至惠州城际铁路隧道安全风险评估与管理
- 高层建筑给排水系统安装施工技术
- 高层建筑施工质量的五个控制要点
- 房屋建筑工程质量问题、原因和防止措施
- 地下停车场防水工程施工质量预控措施
- 试析绿色施工技术在建筑工程中的应用
- 施工企业预算管理措施及案例分析
- 岩溶地区隧道施工综合预报技术案例分析
- 预制块镶面现浇混凝土隧道洞门施工方法
- 建筑施工模板应用技术简析
内容提示:作者衰俊杰 黄瑞华 熊宜莽 叶芳芳 重庆大剧院舞台桁架综合工期、安全、经济和技术可行性采用半榀吊装、高空拼装、整榀滑移方案。即在另处楼地面拼装半榀桁架,施工三个方向剪力墙时完成滑轨埋件、桁架支座埋件工作,进行滑轨、拼装平台、滑移小车安装,竖向组立整榀桁架,利用葫芦滑移,利用门架将桁架就位。
作者:衰俊杰 黄瑞华 熊宜莽 叶芳芳
摘 要:重庆大剧院舞台桁架综合工期、安全、经济和技术可行性采用半榀吊装、高空拼装、整榀滑移方案。即在另处楼地面拼装半榀桁架,施工三个方向剪力墙时完成滑轨埋件、桁架支座埋件工作,进行滑轨、拼装平台、滑移小车安装,竖向组立整榀桁架,利用葫芦滑移,利用门架将桁架就位。
关键词:舞台桁架;高空:滑移;安装
1 工程概况
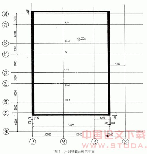
重庆大剧院工程项目总建筑面积103317m2,建筑高度64m,地上7层,地下2层,该工程结构复杂,为筒体、框架、剪力墙加钢结构组成。该工程内设大、中两个剧场,大中剧场舞台均为砼筒体结构。屋顶均为钢桁架,钢桁架搁置底标高分别为46m、37m。大剧场舞台桁架(GHJ-1)每榀长25.05m、高4.6m、自重20.3t,整体重量193t;中剧场舞台桁架(GHJ-2)每榀长22.55m、高4.1m,自重17.1t,整体重量133t。桁架由工厂标准化制作,预拼后将中间腹杆切断,上下弦杆各分两段,再运输到现场安装。下面仅对大剧场予以介绍,桁架布置如图1、2所示。
2 方案的选择
由于舞台桁架具有重量重,标高高,最近一榀位置远离塔吊位置就达30m,虽然布置了400tm重型塔吊也无法满足单榀整体吊装的需要,为此项目部就现有施工条件进行方案的对比选择。
2.1 桁架地面拼装,整体吊装
利用现场塔吊在地面对每榀桁架进行组拼,然后进行整体吊装就位,最后安装桁架联系杆件,每榀桁架重量均超过了塔吊单吊和抬吊的起重能力,无法满足要求;若采用集群千斤顶6榀整体吊装,需另添设备,费用很高。
2.2 桁架地面分段拼装,分段吊装
现场地面对桁架分段拼装,分两段吊装,高空对拼焊接,最后安装桁架间系杆,需在舞台下方搭设高空对接支撑平台,支撑平台要从-8.20m至 46.00m标高,架体的强度、刚度和稳定性都要求较高,操作危险系数较高。
2.3 桁架高空散拼,焊接安装
在舞台桁架下方地面搭设54m高44800m3高空散拼满堂脚手架平台,进行桁架高空散拼,脚手架搭设量大,费用高,工期也较长,拖延舞台机械安装队伍进场。
2.4 桁架高空滑移法
首先在地面将桁架散件组拼成半榀,利用塔吊将半榀桁架吊至(27)轴处 46.00m标高三角架悬挑平台进行整体拼焊连接,再逐步将每两榀相连由(27)轴向(21)轴滑移安装就位。
根据塔吊布置情况和结构实际情况,经分析钢桁架结构采用滑移技术较为有利。首先构件是平面型的且构件在整个滑移过程中不会对滑道产生侧向水平推力;其次舞台简体能提供滑道设置的最好条件,筒体几何尺寸方正、桁架支撑端剪力墙支撑条件好。第三塔吊的布局和吊重完全满足滑移各工序的要求。综合工期、安全、经济和技术可行性等方面考虑,第四种方案要优于前三种方案,即采用半榀吊装、高空拼装、整榀滑移方案。
3 滑移基本思路
3.1 桁架在另处楼地面拼焊接成半榀,待整体拼装。
3.2 根据桁架橡胶支座的标高将(27)、(P)、R~S轴三向砼剪力墙施工至 45.358m,在P、R~S轴墙顶预埋滑道支脚埋件-10×300×300mm@500,27轴墙预留三脚架孔,见图3。

3.3 将p、R~S轴桁架12个支墩砼浇至 46.158m,安装预埋件和橡胶支座( 46.128m),砼墩高约800mm,满足墙体钢筋错开搭接长度设计要求,见图3、图4。

3.4 在P、R-S轴桁架支墩之间安装滑道和滑移小车。
3.5 在(27)轴搭设桁架对接三脚架悬挑拼装平台,进行桁架竖立拼装,并同时在桁架两端安装八字斜撑,见图5、6。

4 施工工况计算分析
4.1 抗倾覆计算
大剧场桁架长25m,高4.6m,宽0.35m,进行竖立滑行,桁架的倾覆应是施工中关注的重点。进行工况受力模型如图7。
外力作用点位置h2选取原则是使①、②杆件不受力。考虑滑车摩擦系数为μ=0.1,则f=Gμ=10.15KN拟采用3.5T葫芦,最大输出力Fmax=35KN,牵引时候由于存在倾覆力矩,滑车对桁架的支承力N'作用点会自动偏离重力作用线。考虑桁架下翼缘的刚度及桁架宽度350mm,N'与G的最大力偶臂诹a1=130mm。
开始牵引瞬间,取F=35KN,要使①杆件不受力,则Fh2×0.13 fh0所以h2≤1.0585m。
当桁架进入勻速滑行时,F=f,支承力N'自动左移,要使②杆件不受力,则Fh2 N×013≥fh0,h2≥1.05n,故取h2=1.05m。
考虑滑移小车绝大部分时间是匀速前进,应以h2≥1.05m来控制。
4.2 滑移工况下滑道的刚度和变形验算
将滑移过程中产生的支承反力以移动荷载形式作用于轨道上,对轨道槽钢及支撑轨道的槽钢运用影响线原理进行结构最不利内力及变形的验算。本工程简化计算如图8:

梁端最大弯矩:
Mmax=0.841M0=6.3075KN·m
5 施工方法
5.1 滑道安装
滑道采用125a槽钢。槽钢的槽口向上,利用槽钢的两侧翼缘作为滑车横向限位。滑道施工时其中心线与桁架端定位轴线重合,以保证钢结构滑移到位后能顺利进行桁架的就位安装。
为方便桁架就位,滑道上表面标高与支座预埋件上表面相平。故滑道槽钢在桁架支座处应断开。采用门式架对桁架就位,为平衡水平推力,利用预埋螺栓设置限位挡块。
为固定及支撑滑道槽钢,每隔0.5m将槽钢与混凝土墙上的预埋铁件焊接连接。将滑道槽钢放好,调整滑道槽钢的顶面标高,最后焊接牢固。
5.2 桁架地面拼装
桁架在制作时为便于运输将中间腹杆切断,上下弦杆各分两段,散件拼装,故需搭设拼装平台。拼装平台采用枕木和钢梁搭设,拼装完成后形成半榀桁架。
5.3 半榀吊装及高空组装
(27)轴剪力墙内侧双排外架分别搭设至
在拼装平台以上两侧外架之间均应拉结,并设置钢桁架支撑。拼装平台上沿桁架中间3根立腹杆位置放置3个5t机械式千斤顶,用于调节桁架起拱和下弦平直度,千斤顶与桁架下弦采用顶托连接支撑。上弦及立腹杆采用脚手架管与操作平台进行固定,拼装时将桁架两端直接放置于滑行小车上进行拼装。桁架吊装就位前将滑行小车固定于拼装平台内的滑道上,两侧用斜铁固定住滑行小车的承压轮上方与槽钢翼缘接触部位;
将半榀桁架吊放至平台上,并将千斤顶调至最初始状态,顶托与桁架套好。用脚手架管和扣件将该半榀桁架与平台固定,固定点选择立腹杆中部和上弦杆节点中部:将另一半榀桁架吊放就位,固定。
将拼装接点螺栓安装完但不初拧;调整整榀桁架的平直度与起拱度;再将螺栓终拧并焊接节点,24h后进行焊缝超声波检测合格:将拼装点临时连接板割除,并打磨平整;用斜支撑槽钢将小车与桁架上弦用螺栓连接并拧紧。
5.4 桁架滑移
桁架在小车上固定完后将拼装平台靠筒体内侧架管拆除,并用手拉葫芦和钢丝绳将桁架与对面墙埋件上的耳板连拼拉平成直线状但不受力,去除制动斜铁,滑移步骤如下:
将(21)轴桁架两个半榀在楼面拼装完后用3#塔吊至滑行小车和拼装平台上,分别进行拼装固定,并安装临时斜撑杆件与小车连接,在校正后焊接;将此榀桁架滑移至(26)轴6m处停止;用同样方法拼装(22)轴桁架并校正焊接;安装两榀桁架之间的系杆梁并将高强螺栓终拧:分别在两端往中间第三根直腹杆边安装临时剪刀撑;用手拉葫芦和钢丝绳将桁架两端两根直腹杆中部与对面(20)轴上的埋件连接;两条滑轨上方各设2名工人拉葫芦,每次拉100mm,由王长统一吹哨指挥;滑行至(21)轴和(22)轴位置时停止。
5.5 桁架的就位
安装门式架并焊接完成,割去桁架与小车的固定钢板:在桁架两端各加一个剪刀撑;利用门架、12t手拉葫芦和两钢丝绳同时提升两端桁架上弦,提高高度为100mm,以避免水平推力而使门架产生弯距和剪力:将滑行小车移去,并割除桁架底部的滑轨;将桁架与橡胶支座连接就位,并焊接桁架间除剪刀撑外的梁和支撑杆件。
6 结论
6.1 滑移作为钢结构安装的一种基本形式不断推广。滑移方式随结构形式不断调整。
6.2 牵引方式既可采用技术含量高的机电一体化的智能操作方式,也可采用简单的人工操作方式,可以在滑移同步控制有保证的前提下根据现场施工需要选择。
原文网址:http://www.pipcn.net/research/200904/13981.htm
也许您还喜欢阅读:
