住宅楼的电气设计(二)
- 低碳节能建筑设计的相关问题及解决方法
- 江苏建筑职业技术学院图书馆设计文化理念
- 四川雅安名山县涌泉村抗震小学的设计理念
- 四川汶川5.12大地震的启示
- 汶川大地震震中纪念馆的创作思考
- 洛阳洛南新区雅安新城结构设计
- 绿色居住建筑的节地设计
- 广州珠江新城海心沙地下空间建筑设计方案
- 黔东南地区郎德苗寨民居的热适应性
- 西气东输工程中长输管道站场建筑模块化设计与应用
内容提示:应急照明是在正常照明系统因电源发生故障,不再提供正常照明的情况下,供人员疏散、保障安全或继续工作的照明。其按用途可分为疏散照明、备用照明、安全照明。
表 3.1 住宅建筑照明的照度标准值[2,136]
| 房间及场所 | 参考平面及高度 | 照度标准值/lx | 显色指数(Ra) | |
| 起居室 | 一般活动 | 0.75m水平面 | 100 | 80 |
| 书写、阅读 | 300* | |||
| 卧室 | 一般活动 | 75 | ||
| 床头、阅读 | 150* | |||
| 餐厅 | 150 | 80 | ||
| 卫生间 | 100 | 80 | ||
| 厨房 | 一般活动 | 100 | 80 | |
| 操作台 | 台面 | 150* | ||
注:带*号的宜用混合照明。(参考《建筑中文网》)
3.5.2 应急照明设计
应急照明是在正常照明系统因电源发生故障,不再提供正常照明的情况下,供人员疏散、保障安全或继续工作的照明。其按用途可分为:疏散照明、备用照明、安全照明。
1.疏散照明:是在正常照明因故障熄灭后,为了避免发生意外事故,而需要对人员进行安全疏散时,在出口和通道设置的指示出口位置及方向的疏散标志灯和照亮疏散通道而设置的照明。在疏散通道地面上提供的照度应达到1lx,最低不得小于0.5lx,且疏散照明的转换时间不应大于15s。在人员密集的公共建筑、餐厅、宾馆、商场、地铁站、厂房等,应设置疏散照明。
2.备用照明:是在当正常照明因故障熄灭后,可能会造成爆炸、火灾和人身伤亡等严重事故的场所,或停止工作将造成很大影响或经济损失的场所而设的继续工作用的照明,或在发生火灾时为了保证消防能正常进行而设置的照明。备用照明往往由一部分或全部由正常照明灯具提供,其应急电源主要应来自两个级别的电源:电网电源和自备电源(发电机或集中蓄电池),照度一般为正常照度的10%,备用照明的转换时间不应大于15s。
3.安全照明:在正常照明发生故障时,为确保处于潜在危险之中的人员安全的照明。如:使用刀具裸露而无保护措施的圆盘锯的场所、医院手术室等。安全照明在工作面上提供的照度不应小于正常照明系统提供照度的5%,并且应在正常照明电源消失后0.5s以内提供安全照明电源[5]。
此外,应急照明也可作为正常一般照明的一部分,经常点燃,在发生故障时应能保证继续点燃。消防控制室、消防水泵房、防烟排烟机房、配电室和自备发电机房、电话总机房以及发生火灾时仍需坚持工作的其它房间的应急照明,仍应保证正常照明的照度。疏散应急照明灯宜设在墙面上或顶棚上。安全出口标志宜设在出口的顶部;疏散走道的指示标志宜设在疏散走道及其转角处距地面1m以下的墙面上。走道疏散标志灯的间距不应大于20m。应急照明和疏散指示标志,可采用蓄电池作备用电源,且连续供电时间不应少于20min;高度超过100 m的高层建筑连续供电时间不应少于30min。
应急照明电源是当正常电源不再提供正常照明需要的最低亮度的状态,即正常照明电源电压降为额定电压60%以下时,转换到应急照明电源供电。应急照明电源大致可以分为以下几种类型:
1.来自电力网有效地与正常电源分开的馈电线路。
2.柴油发电机组。
3.蓄电池组。又分为灯内自带蓄电池、集中设置的蓄电池组、分区集中设置的蓄电池组。
4.组合电源:即由以上任意两种以至三种电源组合供电方式。
从上面的介绍可知,应急照明必须选用能瞬时启动的光源,只有应急照明作为正常照明的一部分,并且应急照明和正常照明不出现同时断电时,应急照明才可选用其它光源,因为若选用不能瞬时启动的光源(如气体放电灯)时,当其不在正常照明运作中一同使用,一旦发生事故,因其启动时间长而不能起到事故照明的作用。
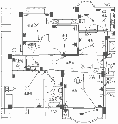
综上所述,本建筑为普通高层住宅,只需要在走道、楼梯设置疏散照明,可选用自带蓄电池组作为应急照明的电源,其连续供电时间不应小与30min。如图3.1所示即为应急疏散照明安装平面示意图。

图3.1 楼梯疏散照明安装示意图
3.6 照度计算
照度计算的目的是按照已规定的照度及其他已知的条件来计算灯泡的功率,确定其光源和灯具的数量。照度的计算方法主要有三种,即利用系数法、单位容量法和逐点计算法。任何一种方式也只能做到基本上合理,完全准确也是不可能的,其设计误差控制在±10%~±20%为宜。下面将用利用系数法计算所需灯具数量。
计算公式:

式中 N--------------------灯具数量(套)
--------------------工作面上的平均照度(lx)
A--------------------工作面面积(㎡)
--------------------光源的光通量(lm)
U--------------------利用系数,指投射到工作面上的光通量与光源光通量之比
K--------------------维护系数,办公室取0.8,室外取0.7,营业厅取0.75
例如,对于主卧室,面积16.09㎡,照度要求值100lx,安装高度3m,查表得利用系数取0.44,维护系数取0.8,光源选普通的白炽灯,其功率为60W、光通量为630lm,则:
=
=7.26(套)
故取N=8,既用所提供的灯具的话需要8套才能满足照度的要求。
详细的各个房间的灯具数量要求计算见附录A表2所示。
3.7 照明负荷平面图
设计原则[5]:
1.每一照明单相分支回路的电流不宜超过16A,单支回路所带灯具(插座)数量应满足相关要求,一般可以带灯具12至13盏,插座7至8只。
2.每个照明开关所控光源数不宜太多,体育馆、影剧院、候机厅、候车厅等公共场所应采用集中控制。
3.供电半径应满足要求,一般不超过30米。
4.插座不宜和照明灯接在同一分支回路。
5.尽量使三相所带负荷平衡。
本工程标准层照明平面图如下图3.2所示。
详细图见附录B照明平面图。

图3.2 标准层照明平面图
4 防雷接地系统设计
文献[6]第2.0.3条对防雷等级做了如下的规定。
第2.0.3条 遇下列情况之一时,应划为第二类防雷建筑物:
一、国家级重点文物保护的建筑物。
二、国家级的会堂、办公建筑物、大型展览和博览建筑物、大型火车站、国宾馆、国家级档案馆、大型城市的重要给水水泵房等特别重要的建筑物。
三、国家级计算中心、国际通讯枢纽等对国民经济有重要意义且装有大量电子设备的建筑物。
四、制造、使用或贮存爆炸物质的建筑物,且电火花不易引起爆炸或不致造成巨大破坏和人身伤亡者。
五、具有1区爆危险环境的建筑物,且电火花不易引起爆炸或不致造成巨大破坏和人身伤亡者。
六、具有2区或11区爆炸危险环境的建筑物。
七、工业企业内有爆炸危险的露天钢质封闭气罐。
八、预计雷击次数大于0.06次/a的部、省级办公建筑物及其它重要或人员密集的公共建筑物。
九、预计雷击次数大于0.3次/a的住宅、办公楼等一般性民用建筑物。
本建筑高54.5m,根据规范,防雷设计第二类防雷建筑设计。
4.1 建筑物的防雷措施
4.1.1 一般规定[6]
第3.1.1条 各类防雷建筑物应采取防直击雷和防雷电波侵人的措施。
第一类防雷建筑物和本规范第2.0.3条四、五、六款所规定的第二类防雷建筑物尚应采取防雷电感应的措施。
原文网址:http://www.pipcn.net/research/200904/13909.htm
也许您还喜欢阅读:
