单层及多层厂房的结构改造设计
- 低碳节能建筑设计的相关问题及解决方法
- 江苏建筑职业技术学院图书馆设计文化理念
- 四川雅安名山县涌泉村抗震小学的设计理念
- 四川汶川5.12大地震的启示
- 汶川大地震震中纪念馆的创作思考
- 洛阳洛南新区雅安新城结构设计
- 绿色居住建筑的节地设计
- 广州珠江新城海心沙地下空间建筑设计方案
- 黔东南地区郎德苗寨民居的热适应性
- 西气东输工程中长输管道站场建筑模块化设计与应用
内容提示:本文结合工程实例,对原有单、多层厂房改建为多层商业办公楼的改造设计进行较为系统的总结,详细阐述了基础和上部结构各设计阶段的主要受力特性、设计与计算,以及设计和施工中的主要技术问题。
摘要:本文结合工程实例,对原有单、多层厂房改建为多层商业办公楼的改造设计进行较为系统的总结,详细阐述了基础和上部结构各设计阶段的主要受力特性、设计与计算,以及设计和施工中的主要技术问题。
关键词:结构改造; 粘贴型钢加固法; 粘贴碳纤维加固法
1引言
近年来,我国的建筑发展迅速,建筑占地与土地资源不足的矛盾也日渐明显,旧建筑的改造利用就成为当前一种较好的解决方式。在旧建筑的改造建设中,由于受场地、原有建筑功能、层数的增加、原有结构及新旧规范等诸多因素的影响,在改造工程的设计中,出现了竖向作用和水平作用增大,导致原有结构构件的承载力不足和结构整体刚度的不均匀。同时,由于新旧构件的材料和强度的不同,新旧构件的连接因此也成为工程改造中的一大关键技术。



2工程概况
本工程位于上海市卢湾区,为一机械制造厂,建于80年代中期,原建筑共有四个单体(以下简称1#、2#、3#、4#)。现因甲方需要,将四个单体通过走廊连接为一个商业使用的整体。2#与3#楼不改变原有建筑的使用功能,主要是1#与4#楼的建筑功能改变较大,其结构也就相应做了较大改造。
1#楼原为多层框架结构厂房(见图1),其中⑴~⑺轴为四层,层高自下而上分别为8m、5.6m、5.1m、4.5m;⑺~⑽轴为三层,层高分别为13.6m、5.1m、4.5m(其中一层在8.9m处设有一台10T吊车),原有楼面结构设计活荷载均为12KN/m2。现根据建筑功能需要,在⑴~⑺轴4.0m标高处增设一个楼层,在⑺~⑽轴2.95m、8.0m处各增设一个楼层。
4#楼原为单层排架结构厂房(见图2),建筑高度为20.4m,净高为18.4m,厂内设有一台10T吊车,柱间设有两道支撑。现根据建筑功能需要,将原有建筑改造成五层办公楼,层高分别为2.8m、4.3m、4.2m、4.2m、2.8m。根据原有结构情况,现设计考虑与原有结构脱开,在原有建筑内新建一个四层框架结构。
3基础结构改造设计
1#楼原设计采用450×450桩基础,设计承载力较大,经过整体计算之后,新增加夹层后的结构能满足现有规范要求,基础承载力和沉降变形也能满足现有规范要求。另外,考虑到原有在1#楼的(1~10)轴外设置了一个室外平台(平台下为车库),根据建筑的要求,需要将平台与1#楼进行连接(见图1)。在进行结构设计时,如果将室外平台层的梁直接与(1~10)轴处的柱子连接将会对1#楼整体结构产生影响,同时对室外平台也不利。鉴于此,结构设计是在(1~10)轴处另外增加了一排室外平台框架柱(立在原有桩基础承台上)。经计算,原有桩基础有较大富余,对原有基础影响很小,同时又解决了上述矛盾。
4#楼原有基础采用天然条形基础,由于在原有建筑内新建一个四层框架结构,如采用天然基础,则基础沉降不能满足现有规范要求,且对原有基础会产生很大的影响。根据施工现场和经济技术等条件,现设计采用桩筏复合基础。桩采用静压锚杆桩,施工时采用逆做法施工,即待基础筏板和上部两层施工完毕后再进行锚杆桩的施工。这样既能缩短施工工期,又能满足结构设计要求,为整个工程项目创造了很大的经济效益。4#楼的筏板采用500mm厚,锚杆桩采用250×250,桩长为20m。平面布置(见图3)。内部四层框架结构承载力较大,在边缘处又受原有建筑结构空间的影响,因此,筏板在边缘处的柱抗冲切难以满足要求,在设计中增设了筏板的抗冲切钢筋。
4上部结构改造设计


4.11#楼结构加固处理
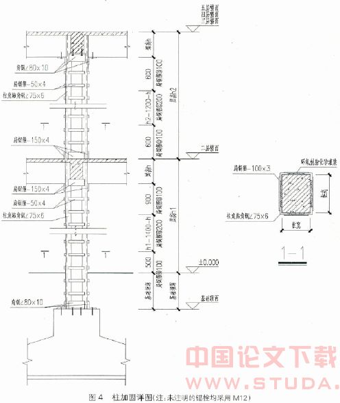
1#楼原为一机械加工厂,原设计为框架结构,楼面活荷载均较大(12KN/m2)。经有关检测单位鉴定,原有结构的柱砼强度等级为C18,原有结构在设计中按照6度设防要求考虑。改造后须作为办公建筑,现根据建筑功能布置需要,增设一夹层,同时在12m的跨中不得设置砼柱。依据现有建筑功能布置,现设计采用了PKPM2006年3月版本的软件进行了整体计算,经计算分析,原有结构的位移、配筋量、刚度等参数均能满足现有改造结构的要求,但是原有结构的构造是按照当时的规范要求进行设计的,未能满足现有规范的要求。主要有以下两个方面:一是原有柱无箍筋加密区;二是在增设夹层处上下无箍筋加密区。现设计综合经济和技术多方面的考虑,柱采用了外粘型钢加固法(见图4)。这样既能满足结构构造要求,同时又能满足节约经济的要求。
在1#楼新增加的夹层处,由于跨度较大(为12m),见图1,若采用混凝土结构,则梁断面很大(至少需要1m高的梁),对建筑的净高会有很大的影响,对原有砼柱的影响也很大,而且与原有砼柱难以连接(植筋数量很大),原有结构的整体性将受到很大影响。现设计采用了钢梁与压型钢板-现浇混凝土楼板组合结构,钢梁与原有柱采用铰接连接。根据现有规范规定,与原有混凝土柱采用后锚固连接时,其混凝土强度等级必须高于C20(原砼经鉴定为C18)。鉴于此实际情况,钢梁与原有柱连接采用了增设砼牛腿,同时在牛腿及其上下各800mm处采用粘钢加固,以增强其抗震变形能力(见图5)。
牛腿设计在本工程的设计中也是一个不容忽视的。在设计中,考虑到牛腿处水平方向受力相当于一个悬臂构件的受力,在牛腿处的水平植筋就必须保证能达到23d(一般情况下为15d)。根据现场实际情况,植筋要满足达到23d是有一定困难。综合各方面的因素,在设计此牛腿时,我们采用了以下处理方案:一方面,对于规范[2]中牛腿的裂缝控制要求,采用了如下公式进行计算,

能满足规范对牛腿的裂缝控制要求,同时,由竖向力 所引起的局部压应力也小于;
另一方面,对于牛腿的配筋强度要求,考虑到植筋不一定能充分达到预期设计要求,从安全的角度出发,在设计中,牛腿的纵向受力完全由粘贴的钢板来承受,其计算公式仍能采用根据力矩平衡条件[3]推导的公式进行计算,即


,经计算,能满足结构计算要求。
4.2 4#楼结构加固处理
4#楼由于建筑立面的要求,原有结构为排架结构,原有设计的柱间支撑对建筑立面的门窗产生了影响。若直接拆除柱间支撑,则原有结构就成为不稳定结构体系。现设计考虑到原有结构荷载减少较多(吊车取消),纵向荷载主要就是风荷载和本身自重产生的地震作用,现设计将在维护结构中采用了框架结构体系,使原有外围结构形成一个框排架体系,这样既能使原有结构形成一个稳定体系,又能增强外围结构的抗震变形能力(见图2)。在内部新增的框架结构是作为一个新建建筑物来考虑,新建的部分与原有结构之间设置了变形缝。经采用PKPM2006年3月版本的软件进行了整体计算,现设计的框排架结构均能满足现有建筑结构规范要求。考虑到原有结构设计只是按照6度设防要求计算,现设计采用了粘贴碳纤维加固法对原有柱进行了加固。
5结束语
5.1建筑物的加固设计应与建筑物的抗震鉴定、抗震加固、强度加固相结合,施工时应先加固后加层。
5.2建筑物的结构加固应结合建筑物的使用功能要求,综合分析各种加固方法的经济性,而后采取相应的加固方法。
5.3在对原有建筑物进行加固时,应充分考虑不同材料的连接节点处理,并采用合适的结构处理方法进行计算,以保证整个结构的安全。
5.4在对原有建筑物进行加固前,应从结构概念角度把握整体结构的稳定、强度等,然后采用相应的加固方法并应用结构软件进行分析,之后再进行相应的处理。
参考文献:
[1] 混凝土结构加固设计规范.GB50367-2006.
[2] 混凝土结构设计规范.GB50010-2002.
[3] 天津大学,同济大学,东南大学主编,混凝土结构(下册),2000.
原文网址:http://www.pipcn.net/research/200901/13832.htm
也许您还喜欢阅读:
