请告诉我们您的知识需求以及对本站的评价与建议。
满意 不满意
Email:
广州轨道交通嘉禾枢纽站设计及应用
栏目最新
- 低碳节能建筑设计的相关问题及解决方法
- 江苏建筑职业技术学院图书馆设计文化理念
- 四川雅安名山县涌泉村抗震小学的设计理念
- 四川汶川5.12大地震的启示
- 汶川大地震震中纪念馆的创作思考
- 洛阳洛南新区雅安新城结构设计
- 绿色居住建筑的节地设计
- 广州珠江新城海心沙地下空间建筑设计方案
- 黔东南地区郎德苗寨民居的热适应性
- 西气东输工程中长输管道站场建筑模块化设计与应用
网站最新
内容提示:轨道交通与地面公交统筹协调、合理衔接,有利于两者优势互补、共同发展,提升公共交通系统整体服务水平;文章对建设嘉禾大型“停车换乘”枢纽的必要性进行了分析,结合嘉禾站设计,较好地设计了嘉禾交通枢纽,确保轨道交通换乘枢纽与市内其它交通方式的合理协调衔接。
摘 要:轨道交通与地面公交统筹协调、合理衔接,有利于两者优势互补、共同发展,提升公共交通系统整体服务水平;文章对建设嘉禾大型“停车换乘”枢纽的必要性进行了分析,结合嘉禾站设计,较好地设计了嘉禾交通枢纽,确保轨道交通换乘枢纽与市内其它交通方式的合理协调衔接。
关键词:轨道交通; 换乘枢纽; 车站; 方案设计
Abstract:By planning metro traffic and ground public traffic as a whole, and having them reasonably joined, we can exploit their own particular advantages for mutual benefit and development, and offer better service of public traffic system. This paper analyze the necessity of building a major junction terminal for“parking and transferring”in Jiahe. Base on the original one, this paper also present a preferable design of Jiahe Traffic Terminal, which can ensure the metro traffic junction terminal be well joined with other urban traffic systems.
Key words:track traffic; junction terminal; station; project design
国内各大城市都面临交通拥堵的考验,为此提出了交通系统整合、提高交通系统运行效率的一体化要求;积极发展大容量的轨道交通是大城市解决城市交通问题的主要途径,而在城市轨道交通系统基本形成之后,保证城市交通一体化的主要做法是以轨道交通为核心进行城市客运交通组织;因此,在国内大城市轨道交通大发展时期,充分挖掘轨道交通的潜力,围绕轨道交通站点做好交通组织,加快构筑城市多元化和一体化的客运交通系统,变得尤为迫切和重要。


1建设大型“综合交通枢纽”
面对社会经济的高速发展,广州市制定了与城市总体发展战略相配套的公共交通发展规划,建立以轨道交通为骨架,公交为支线,其他交通方式为补充的综合交通体系,打造便民利民,以人为本的畅通工程。轨道交通与地面公交统筹协调、合理衔接,有利于两者优势互补、共同发展,提升公共交通系统整体服务水平;轨道交通还应与地面其它交通合理衔接,充分发挥地铁骨架作用,满足市民多层次、多样化的出行需求。
在轨道交通出口附近设置方便的公交车站、出租车站、自行车停放点等,可提高交通换乘效率。为此,需要在城市外围建设大型“停车换乘”枢纽,引导乘客转乘地铁或快巴进入市中心,减少入城车流;轨道交通换乘枢纽是保证交通一体化的硬件设施,加快大城市轨道交通站点交通衔接设施的建设,改变目前部分大城市轨道交通与地面公交衔接不畅的问题需加以足够重视,同时配合轨道交通站点的建设,规划控制相应的交通换乘用地也非常必要。
城市轨道交通是整个城市交通系统的骨干,大城市的交通必须向以快速轨道交通为主体的多层次综合客运体系发展,这已经是不争的事实。然而,一条大运量的轨道交通线路要想发挥它应有的功能,就必须有很大的客流量,其吸引能力取决于车站所在地区居民的出行强度和与其他交通方式衔接的程度。前一部分客流在线路规划与设计中已做了充分的估计,而后一部分客流是通过与市内各种交通方式合理的衔接与协调争取得来。因此,研究轨道交通换乘枢纽与市内其他交通方式的衔接与协调,是保证足够客流的重要因素之一,也是城市公共交通线网优化的主要内容之一;它能减少出行过程中的等待时间,缩短人们出行时间,提高公交服务质量,并保证客运交通的高效率,也能更好地促进城市轨道交通与其他交通方式的协调发展。
2功能综合化的嘉禾交通枢纽
根据广州市的城市规划,嘉禾站所在地块已确定为广州市北面一个集轨道交通与长途客车、市内公交车、接驳巴士和私人交通等的综合交通枢纽;嘉禾交通枢纽平面如图1所示,嘉禾站是广州轨道交通二号线与三号线的换乘车站,三号线直达广州新白云机场,而二号线穿过广州市区繁华地段,终点站为嘉禾站,市区乘客坐地铁到嘉禾站,然后直接换乘三号线直达机场,而机场乘客从三号线机场站坐地铁到嘉禾站,然后直接换乘二号线到市区,可大大减少乘车时间,提高效率,乘客也会放弃自驾车往返于市区和机场,可大大缓解城区车流压力,避免交通阻塞情况。
嘉禾站所属地为广州市白云区,位于106国道以东的规划七路西侧规划地块当中,位于规划七路西面、20m宽规划路东侧、40m宽规划路南侧、65m宽嘉禾涌北侧,二号线、三号线共同使用的嘉禾车辆段位于站位东北侧约1000m处。

合理规划换乘设施可提高乘客的换乘方便程度及整个公共交通系统的运转效率;为此,在嘉禾站东面配套设置了城市停车场与城市公交枢纽站,由于枢纽站面积受周边地理条件限制,占地面积不大,故设计考虑为立体公交枢纽,一层即地面层为公交和社会两大停车场及交通道路,二层设计为乘客休闲候车区,辅以绿化和游乐设施。地铁车站和公交枢纽以空中连廊相接;嘉禾站周边规划均为居住小区用地,为方便居民的出行,设计考虑在车站北端和西端规划道路上设计人行过街天桥,过街天桥在地铁车站屋顶平台会合,一部分乘坐地铁的乘客由平台下到车站站厅,另一部分乘坐公交车的乘客则通过空中连廊到乘客休闲候车区,而乘坐公交的乘客也可以通过空中连廊到地铁站乘坐地铁。拥有私家车的居民也可以将小车停在社会停车场,避免市区交通阻塞,转乘方便高效准时的地铁往返于市区。为尽量加强车站对周边乘客出行的便捷,在车站前,面向规划七路设有方便快速疏散人流的站前疏散广场,车站地面层结合疏散广场与公交车场、社会停车场综合考虑,各方向的疏散都可以与各公交设施、城市配建停车场、出租车停靠及周边城市道路相连通。
3嘉禾站方案设计
嘉禾站设计为地下站(站台在地下、站厅在地面),是二号线的终点折返站与三号线的中间站,换乘方式采取同站台换乘。车站沿线路走向(南北向)布置,主体部分采用地面一层为站厅,地面二层为地铁派出所,地下一层为设备层、地下二层为站台层的四层双岛式方案,嘉禾站纵剖面如图2所示;南端活塞风机房与风亭单独位于嘉禾涌南面;北端机械风机房与风亭单独位于40m宽规划路北面;两处都是只有风亭与疏散楼梯到地面以上;地面建筑满足规划道路红线退缩5m,河涌控制线退缩3m的要求。
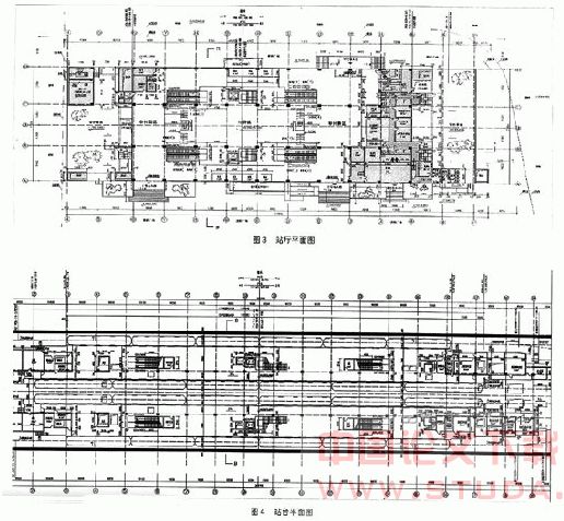
站厅层位于主体建筑的地面一层,四个出入口分设在站厅南北两端,站厅平面如图3所示,站厅层由公共区、设备管理用房区两部分组成,公共区划分为付费区和非付费区;北端非付费区通过通道与南端非付费区连为一体,付费区两端分设票务室;根据客流组织,对进、出闸机进行适当布局,使客流顺畅,互不干扰;付费区两端各设两组上下行自动扶梯,中部设两座楼梯和两台乘客电梯;站厅层北端主要为车站控制室、AFC管理室、警务室、综合维修室、AFC维修室、洗手间、银行等;南端布置有消防泵房等设备房间,以及有独立出入口的地铁派出所大堂和值班室。
过街天桥与车站一层屋面平台结合,并可直接下到车站的出入口,与公交枢纽、停车场的接驳预留二期发展的可能,利用廊道连接地铁站出入口和人行天桥。
设备层设于地下一层,南北两端为环控用房,中间部分除了乘客使用的楼、扶、电梯所占空间及换乘平台以外,全为设备管理用房:400V开关柜室、信号设备室、民用通信机房、应急照明电源室、照明配电室、会议室、男女更衣室等。
客流从室外直入地面站厅,经售、检票后前往地下二层站台,导向明确,流线清晰;嘉禾站站台平面如图4所示,站台层设于地下一层,二号线车站有效站台长度为140m,三号线车站有效站台长度为为120m;二号线、三号线站台宽度分别为10.79m 和9.99m,有效站台中心线轨面标高为5.60m (广州高程),站台完成面标高为6.68m(广州高程),站台设置安全门系统,二号线安全门长度为135.24m,三号线安全门长度为116.08m,每个站台设有三个疏散出口,车站总建筑面积:23635.7m2。
站台层两端为设备区,北端主要有屏蔽门设备控制室、工务用房、照明配电室、乘务员休息室、废水泵房等;南端主要有照明配电室等;南端区间布置了二线牵引降压混合变电所(除400V开关柜室),三号线牵引降压变电所,房间下设有净空1.8m的设备夹层,以符合变电所设备使用上的需要。
地面二层为地铁派出所,布置了调解室、侯问室、训问室、指纹采集室、监控通信设备室、枪支室、弹药室、民警办公室、备勤室、档案室、厨房、饭堂等房间。
车站效果图如图5所示,车站建筑设计简洁、明快、大方、易于识别,体现现代交通建筑的特点,与周围的城市景观相协调;立面简洁、大气,从车站的功能考虑出发,以韵律感为主旋律;设计重点解决车站的自然采光和通风要求,由于线路是南北走向,车站主要外窗都设置在东西两面,因此采用遮阳板与二层退台的形式,在采光通风的同时尽量节能;立面以外墙砖饰面,遮阳板涂油漆;整个车站的布置紧凑、合理、高效。
关键词:轨道交通; 换乘枢纽; 车站; 方案设计
Abstract:By planning metro traffic and ground public traffic as a whole, and having them reasonably joined, we can exploit their own particular advantages for mutual benefit and development, and offer better service of public traffic system. This paper analyze the necessity of building a major junction terminal for“parking and transferring”in Jiahe. Base on the original one, this paper also present a preferable design of Jiahe Traffic Terminal, which can ensure the metro traffic junction terminal be well joined with other urban traffic systems.
Key words:track traffic; junction terminal; station; project design
国内各大城市都面临交通拥堵的考验,为此提出了交通系统整合、提高交通系统运行效率的一体化要求;积极发展大容量的轨道交通是大城市解决城市交通问题的主要途径,而在城市轨道交通系统基本形成之后,保证城市交通一体化的主要做法是以轨道交通为核心进行城市客运交通组织;因此,在国内大城市轨道交通大发展时期,充分挖掘轨道交通的潜力,围绕轨道交通站点做好交通组织,加快构筑城市多元化和一体化的客运交通系统,变得尤为迫切和重要。


1建设大型“综合交通枢纽”
面对社会经济的高速发展,广州市制定了与城市总体发展战略相配套的公共交通发展规划,建立以轨道交通为骨架,公交为支线,其他交通方式为补充的综合交通体系,打造便民利民,以人为本的畅通工程。轨道交通与地面公交统筹协调、合理衔接,有利于两者优势互补、共同发展,提升公共交通系统整体服务水平;轨道交通还应与地面其它交通合理衔接,充分发挥地铁骨架作用,满足市民多层次、多样化的出行需求。
在轨道交通出口附近设置方便的公交车站、出租车站、自行车停放点等,可提高交通换乘效率。为此,需要在城市外围建设大型“停车换乘”枢纽,引导乘客转乘地铁或快巴进入市中心,减少入城车流;轨道交通换乘枢纽是保证交通一体化的硬件设施,加快大城市轨道交通站点交通衔接设施的建设,改变目前部分大城市轨道交通与地面公交衔接不畅的问题需加以足够重视,同时配合轨道交通站点的建设,规划控制相应的交通换乘用地也非常必要。
城市轨道交通是整个城市交通系统的骨干,大城市的交通必须向以快速轨道交通为主体的多层次综合客运体系发展,这已经是不争的事实。然而,一条大运量的轨道交通线路要想发挥它应有的功能,就必须有很大的客流量,其吸引能力取决于车站所在地区居民的出行强度和与其他交通方式衔接的程度。前一部分客流在线路规划与设计中已做了充分的估计,而后一部分客流是通过与市内各种交通方式合理的衔接与协调争取得来。因此,研究轨道交通换乘枢纽与市内其他交通方式的衔接与协调,是保证足够客流的重要因素之一,也是城市公共交通线网优化的主要内容之一;它能减少出行过程中的等待时间,缩短人们出行时间,提高公交服务质量,并保证客运交通的高效率,也能更好地促进城市轨道交通与其他交通方式的协调发展。
2功能综合化的嘉禾交通枢纽
根据广州市的城市规划,嘉禾站所在地块已确定为广州市北面一个集轨道交通与长途客车、市内公交车、接驳巴士和私人交通等的综合交通枢纽;嘉禾交通枢纽平面如图1所示,嘉禾站是广州轨道交通二号线与三号线的换乘车站,三号线直达广州新白云机场,而二号线穿过广州市区繁华地段,终点站为嘉禾站,市区乘客坐地铁到嘉禾站,然后直接换乘三号线直达机场,而机场乘客从三号线机场站坐地铁到嘉禾站,然后直接换乘二号线到市区,可大大减少乘车时间,提高效率,乘客也会放弃自驾车往返于市区和机场,可大大缓解城区车流压力,避免交通阻塞情况。
嘉禾站所属地为广州市白云区,位于106国道以东的规划七路西侧规划地块当中,位于规划七路西面、20m宽规划路东侧、40m宽规划路南侧、65m宽嘉禾涌北侧,二号线、三号线共同使用的嘉禾车辆段位于站位东北侧约1000m处。

合理规划换乘设施可提高乘客的换乘方便程度及整个公共交通系统的运转效率;为此,在嘉禾站东面配套设置了城市停车场与城市公交枢纽站,由于枢纽站面积受周边地理条件限制,占地面积不大,故设计考虑为立体公交枢纽,一层即地面层为公交和社会两大停车场及交通道路,二层设计为乘客休闲候车区,辅以绿化和游乐设施。地铁车站和公交枢纽以空中连廊相接;嘉禾站周边规划均为居住小区用地,为方便居民的出行,设计考虑在车站北端和西端规划道路上设计人行过街天桥,过街天桥在地铁车站屋顶平台会合,一部分乘坐地铁的乘客由平台下到车站站厅,另一部分乘坐公交车的乘客则通过空中连廊到乘客休闲候车区,而乘坐公交的乘客也可以通过空中连廊到地铁站乘坐地铁。拥有私家车的居民也可以将小车停在社会停车场,避免市区交通阻塞,转乘方便高效准时的地铁往返于市区。为尽量加强车站对周边乘客出行的便捷,在车站前,面向规划七路设有方便快速疏散人流的站前疏散广场,车站地面层结合疏散广场与公交车场、社会停车场综合考虑,各方向的疏散都可以与各公交设施、城市配建停车场、出租车停靠及周边城市道路相连通。
3嘉禾站方案设计
嘉禾站设计为地下站(站台在地下、站厅在地面),是二号线的终点折返站与三号线的中间站,换乘方式采取同站台换乘。车站沿线路走向(南北向)布置,主体部分采用地面一层为站厅,地面二层为地铁派出所,地下一层为设备层、地下二层为站台层的四层双岛式方案,嘉禾站纵剖面如图2所示;南端活塞风机房与风亭单独位于嘉禾涌南面;北端机械风机房与风亭单独位于40m宽规划路北面;两处都是只有风亭与疏散楼梯到地面以上;地面建筑满足规划道路红线退缩5m,河涌控制线退缩3m的要求。
站厅层位于主体建筑的地面一层,四个出入口分设在站厅南北两端,站厅平面如图3所示,站厅层由公共区、设备管理用房区两部分组成,公共区划分为付费区和非付费区;北端非付费区通过通道与南端非付费区连为一体,付费区两端分设票务室;根据客流组织,对进、出闸机进行适当布局,使客流顺畅,互不干扰;付费区两端各设两组上下行自动扶梯,中部设两座楼梯和两台乘客电梯;站厅层北端主要为车站控制室、AFC管理室、警务室、综合维修室、AFC维修室、洗手间、银行等;南端布置有消防泵房等设备房间,以及有独立出入口的地铁派出所大堂和值班室。

过街天桥与车站一层屋面平台结合,并可直接下到车站的出入口,与公交枢纽、停车场的接驳预留二期发展的可能,利用廊道连接地铁站出入口和人行天桥。
设备层设于地下一层,南北两端为环控用房,中间部分除了乘客使用的楼、扶、电梯所占空间及换乘平台以外,全为设备管理用房:400V开关柜室、信号设备室、民用通信机房、应急照明电源室、照明配电室、会议室、男女更衣室等。
客流从室外直入地面站厅,经售、检票后前往地下二层站台,导向明确,流线清晰;嘉禾站站台平面如图4所示,站台层设于地下一层,二号线车站有效站台长度为140m,三号线车站有效站台长度为为120m;二号线、三号线站台宽度分别为10.79m 和9.99m,有效站台中心线轨面标高为5.60m (广州高程),站台完成面标高为6.68m(广州高程),站台设置安全门系统,二号线安全门长度为135.24m,三号线安全门长度为116.08m,每个站台设有三个疏散出口,车站总建筑面积:23635.7m2。
站台层两端为设备区,北端主要有屏蔽门设备控制室、工务用房、照明配电室、乘务员休息室、废水泵房等;南端主要有照明配电室等;南端区间布置了二线牵引降压混合变电所(除400V开关柜室),三号线牵引降压变电所,房间下设有净空1.8m的设备夹层,以符合变电所设备使用上的需要。
地面二层为地铁派出所,布置了调解室、侯问室、训问室、指纹采集室、监控通信设备室、枪支室、弹药室、民警办公室、备勤室、档案室、厨房、饭堂等房间。
车站效果图如图5所示,车站建筑设计简洁、明快、大方、易于识别,体现现代交通建筑的特点,与周围的城市景观相协调;立面简洁、大气,从车站的功能考虑出发,以韵律感为主旋律;设计重点解决车站的自然采光和通风要求,由于线路是南北走向,车站主要外窗都设置在东西两面,因此采用遮阳板与二层退台的形式,在采光通风的同时尽量节能;立面以外墙砖饰面,遮阳板涂油漆;整个车站的布置紧凑、合理、高效。
原文网址:http://www.pipcn.net/research/200901/13811.htm
也许您还喜欢阅读:
