深层水泥搅拌桩-钢花管喷锚复合支护技术在高层建筑深基坑工程中的应用
- 东莞至惠州城际铁路隧道安全风险评估与管理
- 高层建筑给排水系统安装施工技术
- 高层建筑施工质量的五个控制要点
- 房屋建筑工程质量问题、原因和防止措施
- 地下停车场防水工程施工质量预控措施
- 试析绿色施工技术在建筑工程中的应用
- 施工企业预算管理措施及案例分析
- 岩溶地区隧道施工综合预报技术案例分析
- 预制块镶面现浇混凝土隧道洞门施工方法
- 建筑施工模板应用技术简析
内容提示:本文根据笔者多年建筑施工实践,详细介绍了深层水泥搅拌桩及钢花管支护技术原理,并结合工程实例,详细阐述了深层水泥搅拌桩-钢花管喷锚复合支护技术在建筑基坑工程中的设计与施工技术,并对监测及效果进行了评价和总结。
摘要:本文根据笔者多年建筑施工实践,详细介绍了深层水泥搅拌桩及钢花管支护技术原理,并结合工程实例,详细阐述了深层水泥搅拌桩-钢花管喷锚复合支护技术在建筑基坑工程中的设计与施工技术,并对监测及效果进行了评价和总结。
关键词:深层水泥搅拌桩;钢花管喷锚;建筑基坑;监测
1引言
随着我国城市建设和改造的迅猛发展,基坑支护工程技术也不断的进步,深基坑工程常处于城市繁华、建筑用地紧张、旧城改扩建及高层建筑物的地段,基坑支护虽属临时工程,但技术复杂却远甚于永久性的基础结构或上部结构,稍有不慎,不仅危及基坑本身安全,而且会殃及临近的建筑物、道路、桥梁等,它涉及到围护工程、土方开挖与支撑工程、降水工程、结构工程等,因此其支护结构类型的选择至关重要。深层水泥搅拌桩结合钢花管喷锚支护技术在近几年得到较大的发展,而且此方法安全可靠,节约工期,适用于工程建筑项目的基坑支护。
2工作原理
2.1深层水泥搅拌桩工作原理
深层水泥搅拌桩是一种应用较广泛的地基加固、基坑支护止水的方法,它是利用水泥等材料作为固化剂,通过特定的搅拌机械,就地将软土和水泥浆液强制搅拌,使软土硬结成具有整体性、水稳性和一定强度的水泥加固体,从而提高地基土强度和物理力学性能、增大变形模量。它适用于处理正常固结的淤泥与淤泥质土、粉土、饱和黄土、粘性土、素填土及无流动地下水的饱和松散砂土等地基;在基坑支护中深层水泥搅拌桩还作为基坑的超前支护结构。
根据工程地质的揭露情况,地层中含有砂层的,在搅拌水泥浆液的同时可放置一定比例的水泥粉,以增加水泥浆液的稠度和止水效果。
2.2钢花管支护技术原理
钢花管支护是土钉墙支护结构的一种方法。它的基本原理是借助于加固材料在主动区(滑动区)所产生的拉力传到阻抗区以增加滑动面上的垂直应力,进而提高土层的抗剪强度,且在滑动面上加固材料可借助于土层提供的被动土压力,产生剪力和弯矩以抵抗主动区的滑动,达到稳定开挖面的目的。即基坑土体开挖时所产生的不平衡主动区土压力通过混凝土面层和钢花管锚固体,最终均由钢花管锚杆承担,开挖边坡的基坑坑隆起及整体稳定性亦通过钢花管对土体的加固来实现。
基坑土方开挖前先行坡顶阻水沟的施工,后进行分层开挖;在第一层土方开挖后,在土体表层喷射第一层混凝土。
钢花管锚固支护结构由两部分组成,即钢花管锚固和喷射钢筋混凝土面层。钢花管采用一定管径的钢管,制作成滤管(花管),入土端加工成桩尖状,滤水孔对向,孔眼前端(造管尖端)焊接钢筋或角钢板,构成孔前倒刺及保护块,然后采用冲击锤或土钉将钢花管按设计角度及位置击入土中再进行高压注浆。坡面采用挂钢筋网喷射混凝土,同时设置加强筋并与锚头焊接,然后喷射第二层混凝土。
在上层钢花管锚固注浆完成一定的时间后,再进行下一层的土方开挖,并对该层进行喷锚支护,喷锚工作完成后,及时对基坑底部排水沟、集水井的施工。
钢花管锚杆支护技术的设计主要根据《建筑基坑支护技术规程》(JGJ120-99)的规定进行。
3工程应用实例
3.1工程概况
湖南某工程位于城市中心,该项目工程为框架结构,地上十八层,设一层地下室,地下室基坑52.0m×92.0m,开挖深度5.0m~5.5m,基坑周边长约288.00m,基坑支护面积约1580m2。基坑支护结构主要采用深层搅拌桩作止水帷幕加钢花管锚固支护结构,共分四个支护段。
3.2工程地质情况
根据岩土工程勘察报告,场区地形平坦,场地土、岩层分别为填土、冲积层、残积层和花岗岩,具体见表1。
场地地下水水位埋深约1.50m,地下含水量丰富,地下水主要是上层滞水、承压水。
3.3施工难点分析
本工程场地狭窄,三侧有建筑物,其中东侧为天然地基3层~4层的居民楼,西侧为市政道路,北面为四层的临建设施(见图1);基坑边坡只有南面可以放坡超过1:1,其余基坑边放坡接近于垂直,施工时还必须确保邻近建筑物、市政道路、市政管线的安全。



由于地下水位较高,且土质相对较差,降水止水措施、基坑支护的好坏成为工程施工的关键。施工期正好是南方的多雨季节,因此,基坑开挖的止水、土体边坡的稳定是安全施工的保证。
3.4主要技术措施
3.4.1深层水泥搅拌桩围护及止水
采用深层水泥搅拌桩加固基坑四周土体,阻止四周地下水向基坑渗透,同时作为基坑的超前支护结构,增加边坡的稳定性,见图1。
深层水泥搅拌桩施工设计:
(1)搅拌桩采用一排Φ600@400mm,用32.5R普通硅酸盐早强水泥,水灰比为0.50~0.55,水泥渗入量为45kg/m,泥粉10kg/m,见图2;
(2)搅拌桩采用四搅四喷的施工工艺,桩端控制深度约7.0m,桩端进入稳定的隔水层;
(3)搅拌桩桩位偏差不超过50mm,搅拌桩的垂直度偏差不超过1%;
(4)桩与桩之间必须保证其搭接质量,相邻桩施工的间隔时间不应超过24h;
(5)使用搅拌浆机制浆时,每次投料后搅拌时间不得少于10min,制备好的水泥浆停置时间不得超过2h;
(6)钻进喷浆搅拌至设计桩底标高,应原地喷浆搅拌30s;
3.4.2钢花管锚杆支护设计
(1)根据场地岩土工程勘察报告,其土层物理力学指标见表2。
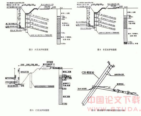
(2)基坑四周根据放坡情况可分为三个区域:A、B、C区,其中A区在基坑的东面,B区在基坑的西、北面两边,长度占基坑支护的一半,C区在基坑的南面;A、B区采用土钉墙支护类型,C区采用天然放坡搅拌桩止水。
根据建筑物地下室的结构设计,基坑支护采用钢花管锚固支护结构(土钉墙)类型,其基坑侧壁重要性系数为1.0,基坑深度为5.5m,地下水位为-1.5m,墙面坡角90O;各区域的放坡参数的选取见表3。
(3)A区、B区支护剖面共设计四排钢花管,其设计参数选取见表4,图纸设计:见A区支护剖面图、B区支护剖面图及C区支护剖面图(图3、4、5)。
具体设计要求:
普通锚杆采用Φ48钢花管作为锚杆,长度为6m~9m,倾角15°,压力灌浆水泥采用32.5R普通硅酸盐水泥浆,杆采用底部一次注浆,注浆压力达到0.6MPa~0.8MPa,浆注满后稳压3min~5min,注浆孔附近的混凝土应具有抵抗注浆引起的压力抗散作用;②钢筋焊接长度:单面10d,双面5d;若采用搭接,搭接长度为40d;③坡面采用挂钢筋网喷射混凝土,钢筋网络采用Φ6@200×200,骨架钢筋采用2Φ16,沿锚杆位置布置。喷射混凝土总厚度100,强度等级为C20,见图6、7;④锚固体强度均大于设计强度的70%,方可进行下一层的土方开挖;⑤在上层钢花管锚杆注浆完成一定时间后,再进行下一层的土方开挖,并对该层进行喷锚支护,喷锚工作完成后,及时对基坑底部排水沟、集水井的施工。
3.5.1深层水泥搅拌桩施工
1)工艺流程:测量定位→深层搅拌桩机就位→预搅下钻→喷浆搅拌提升→重复搅拌下钻→重复搅拌提升→至孔口→关闭搅拌机械→桩机就位;
2)施工技术措施
①测量要求:根据桩位轴线点及控制点,准确测放桩位,偏差≤50mm;
②桩机对中:施工时钻头严格对准桩位(误差≤20mm);调整桩机,保证起吊设备的平整度和导向架的垂直度(垂直度偏差不得超过1%)桩位偏差不得大于50mm;
③浆液配制:严格按0.50~0.55的水灰比配制浆液,水泥掺入比10%~12%,以土层平均比重约1.6T/m3,桩径Φ600mm进行计算:0.28m3/m×1.6T/m3×10%≈45kg/m(即每米桩体水泥用量按45kg控制),掺粘土粉10kg/m;按每桩一池浆的要求,一次性配制及使用;
④钻头检查:每班开工前检查钻头一次,当其直径<560mm时应及时更换或补焊;
⑤搅拌桩应采用“四搅四喷”工艺,即喷浆过程中按:“两下两上”的顺序进行,下和升的速度符合施工设计要求;
⑥使用32.5R普通硅酸盐水泥,每批水泥应有合格证及材料性能试验报告。不同牌号、不同批次的水泥不得同时使用。
3.5.2钢花管锚杆支护施工
1)边坡支护施工工艺流程:①人工修坡→②喷射混凝土→③击入钢花管→④高压注浆→⑤挂网、焊接加强筋及锚固→⑥喷射混凝土;
2)钢花管锚杆施工工艺:
①加工管材:采用Φ48钢管,制作成滤管(花管),入土端加工成桩尖状,滤水孔对向间距500mm,孔眼前端(造管尖侧)焊接钢筋或角钢块,构成孔前倒刺及保护块,见图8。
原文网址:http://www.pipcn.net/research/200810/13737.htm
也许您还喜欢阅读:
