地铁暗挖车站施工对下卧既有地铁的保护
- 东莞至惠州城际铁路隧道安全风险评估与管理
- 高层建筑给排水系统安装施工技术
- 高层建筑施工质量的五个控制要点
- 房屋建筑工程质量问题、原因和防止措施
- 地下停车场防水工程施工质量预控措施
- 试析绿色施工技术在建筑工程中的应用
- 施工企业预算管理措施及案例分析
- 岩溶地区隧道施工综合预报技术案例分析
- 预制块镶面现浇混凝土隧道洞门施工方法
- 建筑施工模板应用技术简析
内容提示:以北京地铁五号线东单站施工对下卧既有地铁隧道的保护为工程背景, 对既有线纵向变形的主要影响因素进行分析, 提出了针对既有线的保护措施, 以减少在既有线上方暗挖车站施工引起的卸载回弹, 保证既有线隆起变形控制在限制范围。
摘 要: 以北京地铁五号线东单站施工对下卧既有地铁隧道的保护为工程背景, 对既有线纵向变形的主要影响因素进行分析, 提出了针对既有线的保护措施, 以减少在既有线上方暗挖车站施工引起的卸载回弹, 保证既有线隆起变形控制在限制范围。(参考《建筑中文网》)
关键词: 地铁; 暗挖车站; 既有线; 卸载; 隆起; 保护措施
随着我国城市现代化水平的不断提高, 地铁建设项目的数量和规模逐渐增大, 地下空间的开发利用也向多元化、立体化方向发展, 常会出现新建地铁隧道上穿既有地铁隧道这一新问题。地铁对隧道结构的变形要求极其严格, 绝对最大位移不能超过 20 mm , 隧道变形曲率半径必须大于 15 000 m , 相对弯曲变形必须小于 1/ 2 500 。然而, 当在既有地铁隧道上方进行新建地铁施工时, 对既有隧道的顶部卸载会引起既有地铁结构的隆起变形。本文以北京地铁五号线东单站暗挖段施工为例, 讨论采取综合保护措施对既有地铁隧道隆起变形的控制。
1 工程概况
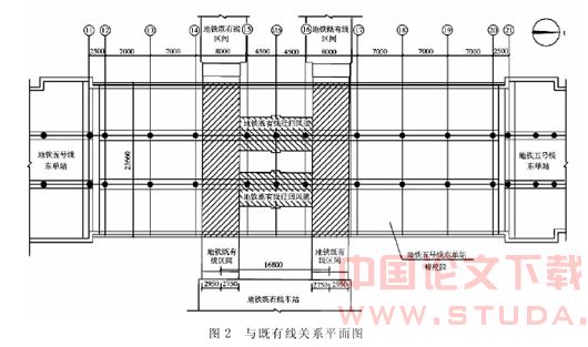
北京地铁五号线东单站位于长安街东单十字路口, 南北向布置, 车站采用两端头双层结构明挖、中间跨长安街单层结构暗挖的施工方法。车站暗挖段上穿既有地铁一号线王府井—东单区间隧道, 新旧线结构净距仅为 0.6m。车站暗挖段断面尺寸为 23.66m×9.83m,为单层一拱双柱复合衬砌结构型式, 埋深 5.5 m, 采用“中柱法”施工。既有线为双线单洞隧道, 线间距 16.8m,为复合式衬砌结构, 断面为 5.7 m×6.1 m, 马蹄形断面型式。新建车站下卧部分的既有线还含有两条迂回风道。暗挖车站与既有地铁隧道的关系见图 1、图 2。

暗挖车站上半断面位于粉土层和粉质粘土层, 下半断面位于细砂层, 底板以下为厚 4.0 m 的卵石圆砾层、厚 2.2 m 的粉土层、厚 3.7 m 的细中砂层、厚 7.0 m的卵石圆砾层。即既有隧道上半断面位于卵石圆砾层, 下半断面位于粉土和细中砂层, 底板以下为细中砂和卵石圆砾层。潜水含水层为既有隧道上半断面所处的卵石圆砾层, 承压水含水层为既有线隧道下半断面所处的细中砂层。

2 隆起变形预测及影响因素
在距离既有地铁隧道顶板仅 0.6 m 处进行新建暗挖车站施工卸载, 对既有地铁的安全运营构成了威胁, 需要预测既有隧道受卸载影响的纵向变形量, 并对既有隧道纵向变形量的影响因素进行剖析以提出控制措施。
2. 1 用三维有限元分析预测变形
在三维地质建模和三维结构建模的基础上, 以真实的洞室群造型和地质空间分布形状, 实时建立三维有限元计算模型。以地质建议的岩体物理力学参数为前提, 根据开挖和支护工艺程序对洞室群进行三维弹塑性数字模拟分析。经过模拟计算, 在不采取保护措施的情况下, 既有线隧道结构最大隆起为 28 mm。参照地铁保护技术标准中关于 “地铁结构的绝对沉降量及水平位移量≤20 mm”的有关规定, 本工程既有隧道结构隆起量超过了地铁要求保护的限值, 需要采取专门的保护措施。
2. 2 既有隧道纵向变形的影响因素
既有隧道周边荷载变化会引起隧道纵向变形, 但其内力分布、变形特性和影响因素非常复杂。以弹性地基梁理论为基础的解析方法概念明确,较符合隧道与土体共同作用的实际情况, 可以对影响因素进行定性的分析。根据 Winkler 弹性地基模型理论, 假设隧道为弹性地基上的无限长梁, 则隧道变形沿其纵向的分布如式(1)所示:

为隧道的等效抗弯刚度; K 为单位长度地基的基床系数, 与土体的抗剪强度指标 C、φ等值有关; q(ξ)为隧道纵向荷载。
由式(1) 可知, 隧道的纵向变形随隧道周边土体的抗剪强度指标 C、φ等值变化, 如果对新建车站底部及既有隧道周边土体进行加固, 可以提高土体的C、φ值, 进而减小隧道的变形; 隧道的纵向变形还随隧道卸载量变化, 如果分阶段及时补偿部分卸载量,可以减小隧道的变形; 另外, 地下水位的变化不仅导致隧道纵向荷载变化, 而且还引起土体的抗剪强度指标 C、φ等值的变化。因此, 隧道纵向变形主要影响因素为: 暗挖车站结构参数( 车站平面尺寸、开挖高度、总卸载量)、暗挖车站底及既有隧道周边状况( 土体性质、地下水位)、暗挖车站施工参数( 单次卸载量、卸载补偿量)。由于车站平面尺寸、开挖高度、总卸载量等参数已经确定, 所以可从改变暗挖车站底部和既有隧道周边土体性质、改变单次卸载量、及时补偿部分卸载等方面来寻求控制既有隧道隆起的措施。

3 保护措施
根据前面的分析, 结合暗挖车站洞内施工的特殊性, 主要从调整暗挖施工顺序、对卸载范围内的既有线周边注浆、对卸载范围设置预应力锚杆和调整降水标高来控制既有隧道的隆起。而且, 在既有地铁隧道上方如此近距离施工卸载, 在国内还没有现成的经验, 对地铁安全运行的风险太大, 必须有一个准确、严密的全过程监控手段。
3. 1 调整开挖衬砌施工顺序
既有线隧道的变形值随隧道上方卸载量的增大而增大, 因此如果能控制隧道上方的卸载量, 则在控制隧道隆起方面能有明显的效果, 所以有必要对开挖衬砌的施工顺序进行调整。车站的开挖采用了“中柱法”施工, 将整个断面开挖横向分为: 侧洞、柱洞和中洞共 5 个洞, 先自上而下对称施工柱洞初期支护, 再由下而上施作柱洞二衬, 建立起梁、柱支撑体系。柱洞完成后, 施工两个柱洞中间的中洞的初期支护和二衬, 形成整个大中洞稳定体系。再自上而下对称施工两侧洞的初期支护, 最后纵向分段自下而上对称施作二衬, 完成结构闭合。按照这样施工顺序, 不但减小了单次卸载量, 还可以实现在既有线上部土体开挖前先对既有线进行加固, 任一洞室初支完成后即可设置预应力锚杆、施工二衬补偿卸载。形成了加固、开挖、补偿、再加固、再开挖、再补偿……的卸载模式。开挖衬砌施工顺序见图 3。
3. 2 对既有线周边土体加固
对新建车站底部及既有隧道周边的土体进行注浆加固, 提高新建车站底部及既有隧道周边土体的抗剪强度指标 C、φ等值。
(1)土体加固设计参数
在五号线暗挖段导洞内, 对一号线上下行隧道之间及侧壁 1 倍洞径范围内的土体进行注浆加固。一号线隧道加固的长度为暗挖车站下方及暗挖车站两侧各延长 6.0 和 6.49 m, 加固的深度为暗挖车站底板至以下 9 m(即一号线隧道底板以下 2.3 m); 注浆材料选用超细水泥- 水玻璃双液浆, 注浆压力 0.3~0.6 MPa。注浆加固的范围见图 4 阴影部分。

(2)土体加固施工
在距既有线 6 m 处停止开挖, 对既有线周边土体进行超前注浆加固。注浆加固既有线时采用二重管无收缩双液注浆技术, 二重管钻机钻杆具有成孔和双液注浆功能, 钻孔和注浆能连续、快速进行, 确保注浆质量。根据注浆压力、地质参数及现场试验综合确定扩散半径为 0.3 m, 孔距采用 0.5 m, 注浆时跳孔施工。采用后退式注浆, 后退幅度为 15~30 cm。实行定量、定压注浆, 使岩土层的空隙或孔隙间充满浆液并固化。注浆施工前必须核清既有隧道的准确位置, 且不能采用过高注浆压力, 以确保既有地铁隧道安全。
3. 3 设置预应力锚杆
根据分块开挖, 发生开挖卸载及时补偿卸载的原则, 在导洞初期支护完成后, 开始在导洞内向下施工预应力锚杆。预应力锚杆群不但及时进行了部分卸载补偿, 同时也起到了加固土层, 改善土层性状的作用。
(1)预应力锚杆设计参数
在卸载影响范围( 注浆加固范围) 内设置预应力拉锚, 拉锚一端固定于初期支护底板上。锚杆呈梅花型布置, 间距 2 m ×2 m, 锚杆长为 15 m 及 10 m 两种, 贴近既有一号线区间侧采用长锚杆。暗挖车站边缘锚杆为斜向外侧下方设置( 与垂直方向夹角 10°),其余为垂直向下设置。杆体材料 2!32 钢筋, 锚杆全长均为锚固段, 锚固体直径 0.1m, 锚杆轴向拉力设计值 230 kN。锚杆注浆材料为水泥浆, 其抗压强度不低于 30 MPa(见图 4)。
(2)预应力锚杆施工
由于洞内空间狭小, 选用锚杆钻机时必须考虑到洞内尺寸, 必要时可以对钻杆进行改装。在暗挖导洞内每开挖支护 5 m 施工一次锚杆, 保证从开挖卸载到完成预应力锚杆补偿卸载之间尽可能小的时间间隔。
3. 4 调整降水标高
当隧道处在相对不透水土层中, 水位的上升或下降如同对隧道的加载或卸载。新建车站开挖前, 先降水在既有隧道的底板以下, 相当于对既有隧道向下卸载, 以平衡部分新建车站开挖时对既有隧道向上的卸载。同时, 既有隧道周边的土体水疏干后, 也提高了土体的抗剪强度, 增强了抵抗卸载变形的能力。
3. 5 采用远程监控量测
在暗挖车站施工期间, 必须对既有地铁进行全天候的实时监控量测, 传统监测技术在高密度的行车区间内无法实施, 且不能满足对大量数据采集、分析以及及时准确的反馈, 因此采用远程自动化监测系统对既有线的结构和轨道变形进行 24 h 监控量测。该系统由在量测部位安装的测量元件、数据传输线、监控室的终端计算机组成。监测项目如下:
原文网址:http://www.pipcn.net/research/200808/13683.htm
也许您还喜欢阅读:
