融科资讯中心C座大厅室内热环境预测与分析
- 低碳节能建筑设计的相关问题及解决方法
- 江苏建筑职业技术学院图书馆设计文化理念
- 四川雅安名山县涌泉村抗震小学的设计理念
- 四川汶川5.12大地震的启示
- 汶川大地震震中纪念馆的创作思考
- 洛阳洛南新区雅安新城结构设计
- 绿色居住建筑的节地设计
- 广州珠江新城海心沙地下空间建筑设计方案
- 黔东南地区郎德苗寨民居的热适应性
- 西气东输工程中长输管道站场建筑模块化设计与应用
内容提示:本文通过数值模拟计算的方法,针对当地气象条件,对融科资讯中心C座大厅在冬、夏不同工况下的大厅室内温度场进行了模拟预测,并结合计算数据对其室内热环境特性进行了分析与总结。在此基础上,对融科资讯中心C座大厅的空调设计提出了建议,针对预测结果进行了工程设计调整,对其室内热环境的改善起到了一定的作用。本文的分析结果可对同类建筑的空调和采暖设计起到借鉴和指导的作用。
摘要:本文通过数值模拟计算的方法,针对当地气象条件,对融科资讯中心C座大厅在冬、夏不同工况下的大厅室内温度场进行了模拟预测,并结合计算数据对其室内热环境特性进行了分析与总结。在此基础上,对融科资讯中心C座大厅的空调设计提出了建议,针对预测结果进行了工程设计调整,对其室内热环境的改善起到了一定的作用。本文的分析结果可对同类建筑的空调和采暖设计起到借鉴和指导的作用。
关键词:室内热环境 数值模拟 高大空间建筑
1 工程概况近年来,越来越多的建筑采用了全玻璃的围护结构形式,特别是在具有高大空间的建筑中,如建筑中庭、大厅等。然而,这一形式也给其室内热环境的控制与设计带来了许多困难。融科资讯中心C座大厅即为此类建筑形式的典型工程。(参考《建筑中文网》)
融科资讯中心C座大厅南北长63米,东西宽14米,顶部高约9米,面积约900平方米。南北紧邻两座塔楼,通过走廊相连;东西及屋顶为全玻璃;大厅地面还有两处较大开口,可沿楼梯下行到地下一层。
大厅的空调采用全空气方式,设计空调总送风量50000m3/h,设计送风温度冬季为31℃,夏季为16℃;送风采用地板下送方式,送风口为1200mm×250mm的条形风口,共28个,回风为楼梯开口处侧下集中回风形式,回风口尺寸为3000mm×600mm,共4个;室内设计温度为冬季19℃,夏季26℃。
由于大厅采用全玻璃设计,不利于维持室内温度的设计要求,特别是冬季的温度要求;同时在风口布置上也会受到一些限制。利用数值模拟手段对冬、夏两季室内环境的模拟预测,计算出在设计工况下,整个大厅的温度场和速度场,考察其人员活动区域的温度分布情况,可对设计方案进行校核及调整。
2 计算工况描述 
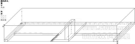
图1 物理模型
模拟采用清华大学建筑技术与科学系开发的通用三维流动与传热的数值模拟程序STACH-3进行计算。湍流模型为专门针对建筑环境工程提出的MIT零方程模型【1】,其模拟的准确性有文献【2】中已经得到确认,在此不一一赘述。离散方法为有限容积法,动量方程采用交错网格(即U,V,W方程),差分格式选择幂指数格式,求解算法为SIMPLE算
法,代数方程求解采用交替方向迭代解法(ADI法),边界条件的处理采用把其处理为各相应变量的源项的方法进行。计算网格采用正交的结构化网格,物理模型如图1所示。
根据北京历史气象资料,选择冬、夏两季的最不利工况进行计算,其中:冬季选择北京全年气象温度最低日(2月14日)进行模拟计算;夏季选择北京全年气象温度最高日(7月6日)进行模拟计算。考虑到每日温度的定性变化规律以及模拟计算量的影响,将分别对应不同时刻的室外温度环境分别处理。冬季工况室外气象参数如图2所示;夏季工况室外气象参数如图3、图4所示。


图2 冬季工况室外气象参数 图3 夏季工况室外气象参数

图4 8:00时刻不同高度的水平温度场分布
3.1 冬季工况
3.1.1 空间温度分布情况
根据室外气象参数(图2),早8:00左右为该日气温最低点。图4为2月14日早8:00时刻不同高度的水平温度场分布的计算结果。
图4中,距地2米以下为人活动区域,从计算结果中可以定性地看出,大厅的温度分布不够均匀,在中部由于没有送风口且靠近外门,因而温度较低;在其它大部分区域温度较高并且分布较均匀。通过对该日0:00、4:00、12:00、16:00、20:00、24:00等时刻的模拟计算得出,在该日的不同时刻内,大厅的温度分布规律具有相似的特征。
图5为8:00时刻沿X方向不同断面的垂直温度分布图。由图中可以看出,在冬季,大厅的垂直温度出现了分层现象,温度随着高度的增加而上升,但到达屋顶时,由于大面积的玻璃导致传热量增大,因而温度出现下降的情况。但总体而言,其垂直方向的温差较小,温度变化不很剧烈。

图5 8:00时刻垂直温度场分布
3.1.2 人活动区域温度分布情况
对该日0:00、4:00、8:00、12:00、16:00、20:00、24:00等典型时刻的模拟计算,得出最冷日人活动区域(取距地1.5米处)的温度变化情况。图6、图7为冬季工况人活动区域的温度统计值。
图6显示,室内温度的平均值基本上保持在19℃左右,能够满足设计的要求,平均温度的最大值出现在16:00,为19.3℃,最小出现在8:00,为18.38℃。但从分布效果来看,其温度不够均匀,各个时刻的最高温度与最低温度均有较大的差,如图7所示,各个时刻的温度差都在7℃以上,最高达到7.85℃,说明了大厅的温度分布具有较大的不均匀性。


图6 人活动区域温度统计(一) 图7 人活动区域温度统计(二)
需要指出的是,在冬季工况的计算中,太阳辐射和人员、灯光等热源没有计入,因而计算结果是偏安全的。在实际投入使用的过程中,考虑到上述热源等有利因素的作用,室内温度将会比计算值有小幅上升。
3.2 夏季工况
3.2.1 空间温度分布情况
在计算夏季工况时,太阳辐射以及人员、灯光等得热将直接转化为冷负荷,因而不能忽略。根据图3提供的气象数据,下午16:00左右为该日气温最高点。图8为7月6日下午16:00时刻不同高度的水平温度场分布的计算结果。

图8 16:00时刻不同高度的水平温度场分布
图9为16:00时刻沿X方向不同断面的垂直温度分布图。由图中可以看出,同冬季工况相似,大厅的垂直温度也出现了分层现象,但夏季工况更为明显,特别是在最热的下午16:00时,垂直方向的温度变化剧烈,上下温差较大,在屋顶产生了较为显著的热量堆积现象,不利于室内温度的控制。

图9 16:00时刻垂直温度场分布
3.2.2 人活动区域温度场分布
图10、图11为夏季工况人活动区域的温度统计值。


图10 人活动区域温度统计(一) 图11 人活动区域温度统计(二)
图10显示,室内温度的平均值波动较大,但基本上保持在23℃到26℃之间,没有超过设计温度26℃,能够满足设计要求。其中,平均温度的最大值出现在16:00,为25.89℃,最小出现在4:00,为23.03℃。但从分布效果来看,同冬季相似,温度不够均匀,各个时刻的最高温度与最低温度均有较大的差,如图11所示,各个时刻的温度差都在5℃以上,最高达到8.77℃。而且温度值越高,温差越大,温度的不均匀性越差。
4 结论通过对融科资讯中心C座大厅温度场的模拟分析,模拟的工况包括冬季最冷日(2月14日)和夏季最热日(7月6日)两个最不利的情况。根据计算结果进行统计分析,得出如下结论:
一、从平均值来看,在冬季最冷日,室内人活动区域的温度平均值基本上保持在19℃左右,在夏季最热日,室内温度的平均值基本上保持在23℃到26℃之间,没有超过设计温度26℃,现有空调系统能够满足冬、夏两季的室内温度设计要求。
二、从水平分布来看,冬、夏两季均出现了较大的温度分布不均的情况。在人活动区,最高温度与最低温度的温差较大,而且有温度值越高引起温差越大、温度的不均匀性越差的趋势。总体而言,靠近外门区域的温度环境比较不利。
三、从垂直分布来看,冬、夏两季均有垂直温度分层产生,其中夏季尤为明显,在靠近屋顶处温度急剧升高,超过35℃,出现了明显的热量堆积现象。这一情况不利于夏季室内空气温度的控制。
融科资讯中心C座大厅,此建筑形式下的室内热环境特征具有一定的典型性和普遍性,根据模拟计算结果和结论,对空调设计提出如下建议,以供同类建筑形式的工程设计参考:
一、对送风口位置和出口方向进行调整,增加靠近入口处区域的风量分配比例。用以改善温度水平分布不均的现象。
二、考虑在屋顶增加排风装置,以减少夏季屋顶热量堆积的不利情况。将聚集在空间上部的热空气及时排出室外,有利于控制室内的空气温度。
三、在条件允许的情况下,考虑在大厅入口附近增加局部采暖措施,如地板辐射采暖等辅助形式,用以改善冬季入口附近温度过低的情况。
参考文献【1】Chen Qingyan and Xu Weiran, A zero-equation turbulence model for indoor air flow simulation, ASHARE Transactions, 1998, 104(1):1119-1126
【2】赵彬,李先庭,彦启森,用零方程湍流模型模拟通风空调房间室内空气流动,清华大学学报(自然科学版),2001,10:109-113
来源: 《建筑中文网》.原文网址:http://www.pipcn.net/research/200606/8570.htm
也许您还喜欢阅读:
