某超限高层的结构分析设计
- 低碳节能建筑设计的相关问题及解决方法
- 江苏建筑职业技术学院图书馆设计文化理念
- 四川雅安名山县涌泉村抗震小学的设计理念
- 四川汶川5.12大地震的启示
- 汶川大地震震中纪念馆的创作思考
- 洛阳洛南新区雅安新城结构设计
- 绿色居住建筑的节地设计
- 广州珠江新城海心沙地下空间建筑设计方案
- 黔东南地区郎德苗寨民居的热适应性
- 西气东输工程中长输管道站场建筑模块化设计与应用
内容提示:通过对某超限高层的结构分析设计,给出超限高层的一般结构分析设计过程,是平面不规则超限还是竖向不规则超限以及相应的结构构造措施。超限高层一般需进行弹性时程分析以揭示结构是否有薄弱层。其分析设计过程可供其他超限高层的结构设计作参考。
摘要:通过对某超限高层的结构分析设计,给出超限高层的一般结构分析设计过程,是平面不规则超限还是竖向不规则超限以及相应的结构构造措施。超限高层一般需进行弹性时程分析以揭示结构是否有薄弱层。其分析设计过程可供其他超限高层的结构设计作参考。
关键词:超限高层 结构分析 弹性时程分析 不规则 弹性楼板 构造措施
1 工程概况
该高层为广西医科大学图书馆二期工程,建设地点位于南宁市双拥路广西医科大学中央教学区内。最高层数11层,地下1层,总用地面积19889.8m2,建筑总面积35585.7m2。抗震设防烈度为6度,设计基本地震加速度值为0.05g,设计地震分组为第一组,设计特征周期为0.35s,水平地震影响系数最大值为0.04,场地类别为II类。(参考《建筑中文网》)
本工程主楼主体高度为47.7m,在A级设计限值以内,故抗震设防类别为A级高度丙类。结构设计使用年限为50年,结构安全等级为二级,地面粗糙度为B类,基本风压按50年一遇取值
。地基基础设计等级为乙级,地下室防水等级为二级。
根据建筑物的平面形状及功能要求,本工程采用了二道抗震缝将建筑物从地下室顶板面起分为三幢单体,缝宽均满足规范要求。地下室作为三幢单体的嵌固层,这样三幢单体可以独立计算地震作用而不需作为复杂高层大底盘多塔楼模型考虑。一幢单体为3层多功能演讲厅,一幢为6层楼图书馆,总高度小于22.5米,该两幢单体均不属于高层范畴,故在此不予以分析。
2 规则性分析
中间1幢单体为11层47.7m高的主体,其结构体系为框架—剪力墙结构。天面构架出屋面7.65m。剪力墙与框架部分的抗震等级分别为三级和四级。下面分析该主体结构的规则性。
1)、平面规则性分析
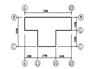
该主体平面布置为T型,突出部分长度t与总宽度
之比
大于《高层建筑混凝土结构技术规程》(JGJ3-2002)第4.3.3条规定的0.35。
,
,高宽比为
。该平面布置的突出部分太多,
大于0.35,属于平面不规则。平面形状尺寸见右图1。

图1 平面形状简图
二、三、四层有中庭及楼梯开洞,开洞面积比率为15%,小于《高规》4.3.6条规定的35%,楼板在开洞处的净宽度为9.2m>5m,且开洞后的最小楼板净宽为4.3m>2m。均满足《高规》4.3.6条规定,但在设计中予以弹性楼板补充计算及采取构造措施加强开洞处附近梁板。
2)、竖向规则性分析
在4~6层平面逐层收进,收进后的
,大于《高规》4.4.5条的75%,收进后的面积比收进前的为75.3%,满足《高规》4.4.2条,综合判断为竖向规则。
3)、结构布置
根据《超限高层建筑工程抗震设防专项审查技术要点》,本工程属于高度不超过规定,但建筑结构布置属于《抗震规范》、《高规》规定的高层建筑工程。为一项平面不规则,竖向规则结构体系。
该超限单体采用电梯间,楼梯间等垂直交通通道形成的相对集中的剪力墙筒作为结构体系的主要抗侧力构件,通过加设抗震剪力墙来调整整个结构的抗侧刚度,使用周期,位移满足规范要求。
3、结构分析及主要结果
结构整体计算采用中国建筑科学研究院开发的多层及高层建筑结构空间有限元分析与设计软件SATWE(墙元模型)及PMSAP(广义墙元模型)两个相互独立的可资相互对比的高层结构分析软件进行,计算时均考虑偶然偏心,地震作用下的扭转影响,用SATWE进行结构的弹性动力时程分析。图书库的活荷载较大,故考虑活荷载不利布置影响。周期折减系数为0.75,结构的阻尼比为0.05。
主要计算结果如下。
1)、周期
⑴ SATWE计算
以扭转为主的第一自振周期Tt(T3)与以平动为主的第一周期之比为:
X向:
,Y向:
,满足《高规》4.3.5条。说明结构已经具有足够的抗扭刚度。
⑵ PMSAP计算
X向:
,Y向:
,与SATWE计算结果相近。
2)、基底剪力
⑴ SATWE计算
活荷载产生的总质量(t):7411.915t,恒荷载产生的总质量(t):46104.063t,结构的总质量(t):53515.977t。其他结果见表1。
表1 主要计算结果表
| X向 | Y向 | |
| 剪重比 | 1.20%(>0.80%) | 1.04%(>0.80%) |
| 振型有效质量系数 | 93.20%(>90%) | 92.82%(>90%) |
| 基底剪力(kN) | 4435.73 | 3826.15 |
均满足《高规》3.3.13及5.1.13条。说明振型数已经选够。该结构体系可以保证整体稳定性,且重力二阶效应的影响可不计。
⑵ PMSAP计算结果与SATWE相近。
3)、位移
⑴ SATWE计算
位移比计算结果满足《高规》4.3.5条,在考虑偶然偏心影响的地震作用下,楼层竖向构件的最大水平位移和层间位移不大于该楼层平均值的1.5倍。在Y方向的地震及风荷载作用下的⑥轴处的位移比偏大,但小于1.5。说明该侧的抗扭刚度略显不足,在施工图设计中将加大该侧的柱、梁配筋等构造措施。楼层层间最大位移与层高之比满足《高规》4.6.3条的
限值。
⑵ PMSAP计算结果与SATWE相近,均满足《高规》4.3.5及4.6.3条。
4)、楼层刚度比 SATWE计算及PMSAP计算结果满足《高规》4.4.2条,说明结构体系竖向布置比较规则,无结构薄弱层。
4、弹性时程分析
用SATWE进行了结构的弹性动力时程分析,根据场地周期Tg相近原则选用地震波为TAF-2、LAN4-2及LAN6-2,三条地震加速度时程曲线的最大值为18cm/s2,其中LAN4-2及LAN6-2的地震力放大系数为1.3,则每条时程曲线计算所得的结构底部剪力不小于振型分解反应谱法(CQC)求得的底部剪力的65%,多条时程曲线计算所得的结构底部剪力的平均值不小于振型分解反应得谱法求得的底部剪力的80%,见表2。
表2 弹性时程分析底部剪力表 (单位:kN)
| TAF-2 | LAN4-2 | LAN6-2 | 平均值 | CQC | 比值 | |
| X向 | 4132.3 | 3105.2 | 3342.1 | 3526.5 | 4435.7 | 0.80 |
| Y向 | 3612.6 | 2589.2 | 2995.0 | 3065.6 | 3826.2 | 0.80 |
时程分析结果曲线见图2(仅给出各层最大位移,最大反应弯矩曲线,其他略)。由曲线可知,动力时程反应值(各层最大位移,最大层间位移角,最大反应力,最大反应剪力,最大反应弯矩)这五项指标均小于规范反应谱法(CQC)的计算值,说明SATWE的整体计算设计是安全的。该结构体系无薄弱层。

图2 弹性时程分析曲线图
5、结论
本工程为竖向规则,平面有一项超限不规则的超限高层。依据《高规》要求进行了两个不同程序软件计算对比,计算结果无异常,周期、位移、剪重比、刚重比等重要参数结果均满足高规及抗震有关要求。并依据高规进行了弹性时程分析,时程分析结果该结构体系无薄弱层,五个动力时程反应值的曲线均在CQC包络线之内,说明用反应谱法(SATWE的CQC法)设计是安全的[3]。
为体现抗震设防目标三水准(小震不坏,中震可修,大震不倒)的要求,高层建筑抗震设计是通过“两阶段设计”来实现的,即除在第一阶段多遇地震(超越概率63%)下采用弹性反应谱法进行结构承载力及弹性侧移验算外,对超高层及特殊高层尚宜进行第二阶段抗倒塌的结构弹塑性变形验算。因本工程仅为平面有一项超限的普通高层,所以仅进行了第一阶段设计,(可以满足第一、第二水准的抗震要求)。对于第三水准设计目标则通过概念设计等构造措施来达到此要求。本工程采用了框剪结构,由延性较好的框架,抗侧力刚度较大的剪力墙和有良好耗能性能的连梁所组成,具有多道抗震防线,从国内经受地震后震害调查表明,框剪结构确为一种抗震性能很好的结构体系[4]。SATWE及PMSAP软件的计算结果也证实了本工程采用框剪结构体系,结构布置,截面尺寸等是合理的,当然由于本工程有一项不满足平面不规性,所以对于边缘的剪力墙、框架梁、柱需进一步加强构造措施,严格控制轴压比,加大配筋。对于楼板开洞处,平面转角(阴角)处,顶层大开间等结构薄弱处均需加强构造措施。以保证结构体系的设计三水准目标及其经济、合理性。
参考文献
[1] 中国建筑科学院研究院,JGJ3-2002,J186-2002,高层建筑混凝土结构技术规程,中国建筑工业出版社,2002年.
[2] 中国建筑科学研究院,GB50011-2001,建筑抗震设计规范,中国建筑工业出版社,2001年.
[3] 赵西安,现代高层建筑结构设计,上册,科学出版社,2000年,206-255.
[4] 方鄂华,高层建筑钢筋混凝土结构概念设计,机械工业出版社,2004年,219-221.
原文网址:http://www.pipcn.net/research/200603/8511.htm
也许您还喜欢阅读:
