成渝高速公路濑溪河大桥维修加固措施
- 改进的隧道监测系统(TMS)在隧道围岩变形监测中的应用
- 我国岩土工程在可持续发展中的新使命及其实现问题
- 矿山地质环境治理问题研究
- 岩土工程勘察中常见的技术问题及解决措施探讨
- RTK-GPS在广州新电视塔变形监测中的应用研究
- 既有建筑物加固修缮勘察与地基基础加固方案选择
- 现场测量建筑围护结构节能特性的问题分析
- 文物保护建筑勘察特点及工程实例分析
- 旁侧荷载对复合地基性状的影响
- 从工程实例分析谈顺层岩质边坡的勘察与参数选取
内容提示:本文对濑溪河大桥维修加固工程病害分析、加固方案、施工要点进行论述;并对裂缝处理、植筋及检测进行阐述;最后对经维修加固后本桥使用状况进行了简述。
延伸阅读:Ha系列胶粘剂植筋检测 施工 桥梁加固
摘要:本文对濑溪河大桥维修加固工程病害分析、加固方案、施工要点进行论述;并对裂缝处理、植筋及检测进行阐述;最后对经维修加固后本桥使用状况进行了简述。
关键词:桥梁加固 施工 Ha系列胶粘剂植筋检测
一、概述
濑溪河大桥位于成渝高速公路K241 350m处,主跨一孔80m钢筋混凝土箱型肋拱桥,矢跨比1/7,拱轴系数m=1.756,采用等截面悬链线无铰拱,主拱肋箱高1.5m,箱宽1.6m,顶板0.24m(预制6cm,现浇18cm),底板及腹板厚0.2m。每孔半幅2条拱肋,肋间距6.6m。上部设置双柱式排架支承纵梁,于纵梁上设横置桥面板,板厚0.3m。桥面铺装层为6cm厚水泥混凝土,面层为4cm沥青砼。下部构造为石砌圬工基础,重力式桥台。一九九五年五月一日建成通车。详见桥型总体布置图:

二、桥梁病害状况内力验算及成因分析
二OO二年一月中旬,右幅桥面产生严重裂缝,积水渗漏严重。该月下旬经再次检查,桥面横置板间裂缝达53条(占全桥35%),最大裂缝宽为50-70mm,缝深度贯穿板厚,桥面积水向桥下倾泻如注。重车通过桥上,横置板跨中扰度最大达30mm以上,桥面变形及振动异常明显。左幅桥面有少量裂缝,裂纹宽度甚小,仍有少量桥面积水渗入横置板缝滴入河内。(参考《建筑中文网》)
二OO二年二月由重庆公路质量检测中心对该桥进行检测,检测结果为拱肋底板、腹板及顶板均产生有纵向裂缝,缝宽0.1-0.5mm,长度为1.0m-4.5m。横置板跨中裂缝0.1-0.3mm。横置板与纵梁或垫墙支承处脱空现象均较严重,最大达50mm以上;部分板于脱空间隙内填塞有钢板,且混凝土与钢板接触面局部压碎现象严重,除钢板接触处外仍为脱空。
本桥维修加固由四川省交通厅公路规划勘察设计研究院进行设计。设计中对原设计图进行了内力验算,其结论为:主拱圈拱顶截面在荷载组合I、II、III时计入偏心增大系数时,截面抗力均不能满足规范要求。纵梁跨中截面不能满足抗弯要求,支点截面不能满足抗弯和斜截面抗剪要求。位于伸缩缝处两侧的端板截面不能满足抗弯和斜截面抗剪要求。
除上述病害工程检测情况及内力验算外,桥梁产生严重损坏的成因还有下列重要因素。
1、右幅桥位于弯道下坡(纵坡均为3.0%)300m处,且下坡中桥面纵坡为0.3%,由于车速原因及受车辆冲击荷载的影响导致桥面严重损坏;而左幅进入桥面之前处于弯道延长直线段,车辆进入桥面为0.3%上坡行驶过程中,桥面受车辆冲击荷载的影响远小于右幅,因此左幅桥面仅产生微小裂缝。
2、桥面铺装现浇6cm混凝土,铺装层内布Ф6@20cm×20cm钢筋网,板间铰缝仅用2Ф8纵向筋与预制板预留伸出筋搭接,其上铺4cm沥青混凝土;属半刚性柔性桥面,桥面铺装层及铰缝刚度不够,不能有效传递荷载作用力分布,致使绞缝严重损坏,车道板产生裂缝或断板。
3、 行车道板由双柱式排架支承纵梁,其上设横置桥面板,呈П型单跨双悬臂车道板,行车方向由П横置板通过铰缝形成桥面结构。当车辆活载沿桥纵向行驶时,由于车辆荷载于桥上行驶沿桥面纵、横向位置的不断变化,车辆活载沿桥面纵、横向分布系数也随之变化,沿桥纵向横置板之间的企口铰缝随车辆行驶将全部承受车辆活载作用。加之桥面铺装层及企口铰缝刚度差,不能满足活载纵向传递刚度,更不能将车辆活载较均匀的分布在桥面系相应的范围内。
4、桥面横置板与纵梁及垫墙接触面为砂浆连接,板的受力不明确且桥面板的振动及挠度较大,部分横置板支承处底部严重脱空,不能使板与纵梁或垫墙之间有效接触和传力,部分横置板与纵梁或垫墙间用钢板填塞,形成局部混凝土压碎,无法将横置板所受力均匀有效传递。导致悬臂横置板支承处顶面产生横向裂纹或断板现象。
5、桥面伸缩缝构造简单,原设计为板式橡胶伸缩缝,使用中虽将其改造为型钢缝,但其与桥面板锚固不牢,缝内未设传力杆,当车辆移动活载作用于桥面时,沿桥面纵向活载无法传递于伸缩缝两侧相邻行车道板,致使伸缩缝两侧车道板产生不均匀的扰度,导致车道板损坏严重。
针对本桥现状及病害成因分析,设计中曾拟定多种方案,由重庆市交委主持,邀请重庆交通学院,公路设计、科研、质检部门专家进行了论证,形成二种方案进行比较:一是尽可能在现有桥梁状况下,针对不同部位、结构、构造进行维修加固;二是拆除纵梁,于立柱上加设帽梁形成框架,废弃现有横置板,于框架上设置纵向行车道板,增加桥面及引道标高的桥梁改造方案。经专家论证,第二种方案虽可行,但投资较大。第一种方案投资较少,经维修加固后仍可满足汽车––超20级,挂车––120荷载使用要求,因此决定采用第一种维修加固方案实施。其维修加固方案如下:
1、裂缝治理
在对全桥进行补强之前,对于大于0.15mm的裂缝采用恒定低压压注改性环氧灌缝胶的方法,恢复结构整体性。对于0.15mm以下的裂缝采用封闭处理。
2、对拱肋的处理
根据拱肋各部分受力不同,拱脚至拱上第一根立柱间采用上缘加厚30~20cm厚补强混凝土;配16ф32钢筋(单肋)。第一根立柱至拱上垫墙上缘加20cm厚补强混凝土;配16ф25钢筋(单肋),并延长经垫墙段与拱顶段内主钢筋焊接。拆除拱顶段15.2cm范围内桥面板及拱上垫墙,整体浇注其桥面板及垫墙,并与拱圈形成整体。为使拱肋顶板与现浇混凝土形成整体,采取凿毛新旧混凝土结合面,在原拱肋顶板上植入ф12连接钢筋与拱肋配筋焊接。
在拱肋立柱根部采用A235钢板环抱立柱根部作为连接件,纵向钢筋焊接于连接钢板上,确保拱圈纵向主筋受力的连续性。详细见主拱圈加固构造图。

拱圈拱脚处植入16ф32主筋的长度为100cm,为加强拱座处的受力连续性,由于原拱座配筋较弱,对全桥拱座凿毛,加铺一层ф12间距15cm的钢筋网,并植入一定数量的ф12cm架立钢筋,在原拱座上浇铺一层50cm厚的补强混凝土,防止拱座开裂。
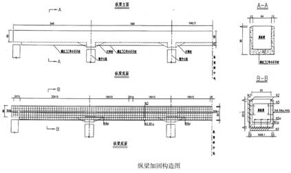
3、对纵梁的处理
采用加高、加厚纵梁增大其抗弯及抗剪刚度的方法,在纵梁底部浇筑20cm厚,侧面浇筑12cm厚补强混凝土,加配ф25纵向受力筋及U型箍筋,在原混凝土表面凿毛、植筋及局部焊接钢筋等方法增强新旧混凝土的结合。详见纵梁加固构造图。

4、对桥面板的处理
① 端板的处理
对伸缩缝两侧1~3#板更换,增加板跨中厚度,更换板整体浇筑,端板间铰缝增设五处传力杆。详见端部桥面板构造图(图中:A、B、C、D切面尺寸及相应钢筋构造图略)

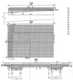
② 拱顶实腹段处理
拱顶15.2m范围内桥面板设计为现浇板与垫墙、拱圈形成整体。详见拱顶现浇桥面板钢筋构造图。

③ 桥面板铰缝处理
为保证桥面板按铰接板整体受力,对横置板铰缝进行改造;对保留行车道板的顶面、侧面进行清凿,露出石子,缝内增设螺旋钢筋、纵向钢筋及П型纵向钢筋;两相邻横置板植筋(ф12)及加设纵向筋与桥面铺装层钢筋网连接成整体,铰缝内再浇筑小石子混凝土。详见企口钢筋构造图。

5、对桥面铺装层的处理
由于桥面横置板设计是按铰接板法计算内力,设计时考虑了铺装层参与板的受力,为保证计算模式的正确即铰缝的传力刚度,取消原沥青混凝土和防水混凝土面层,凿毛清洗桥面板顶面,改作10cm单层钢纤维混凝土,并加强桥面铺装钢筋网参与铰缝受力。更换伸缩缝,加设伸缩缝传力杆。在纵梁与垫墙交接处取消原施工中增设的伸缩缝,加密钢筋网设置桥面连续,详见桥面铺装及连续构造图:

6、对横置板支承面处理
原桥面板与纵梁或垫墙的接触面为砂浆连接,部分板脱空支承,板的竖向荷载无法均匀传递,板的受力不明确且桥面板的振动较大。对桥面板与纵梁、垫墙接触面两边清缝,并冲洗干净,风干后用改性环氧砂浆腻子条封面、并埋设灌嘴,待其指触干燥后再压入化学粘接剂,保证板与纵梁或垫墙之间有效接触和传力。
7、对防止角压碎的脱空处理
纵梁顶面两侧边缘5cm不灌填建筑胶,使纵梁边缘与桥面板脱空,在纵梁顶面两侧边缘粘贴橡胶条后再浇注混凝土,使桥面板与纵梁边缘脱空。伸缩缝处两侧新浇端板。
1、裂缝治理
原文网址:http://www.pipcn.net/research/200603/8494.htm
也许您还喜欢阅读:
