制药厂与GMP制药企业洁净厂房百级洁净区作法探讨
- 2013年中国建筑业前三季度分析简报
- 建筑服务业发展现状及营改增税制设计研究
- 如何控制项目采购成本
- 国有建筑企业人力资源管理的问题与建议
- 建筑施工企业人才流失的对策
- 建筑业企业多元化战略的回顾与启示
- 世界顶级承包商的发展模式和启示
- 基于经济法看我国绿色建筑的发展问题
- 建筑工程土建预算的审查技巧、管理建议和误区
- 建筑企业的准时化采购模式研究
摘要: 本文根据药品生产厂房洁净区的特点,介绍了药品生产厂房百级区温、湿度控制及补充新风方式;百级区循环风处理方式;循环风回风方式。
关键词: 药品生产厂房 百级区 作法
药品生产厂房洁净车间内,经常会有局部百级区,或要求某一个房间或几个房间为百级,或要求某个房间内部分区域为百级,这些百级区面积一般都不大,从几十平方米到几平方米甚至零点几平方米不等,通常为一个洁净区内工艺流水线的一部分,但它们在洁净厂房中都有着非常重要的作用。它们往往是该车间工艺流程的核心部位,比如无菌药品注射剂的灌封、分装、压塞、生物制品的灌封、冻干、加塞等部位,百级区能否正常运行,直接影响到产品质量。下面结合药品生产厂房洁净车间的特点,介绍几种百级区的作法。(参考《建筑中文网》)
根据《药品生产质量管理规范》(GMP)(1998年修订)要求,目前,药品生产厂房根据生产品种不同,洁净区一般分为三十万级、十万级、万级和百级四个洁净级别,百级区为最高洁净度级别。百级区一般位于车间的内区,周围有万级区或十万级区,百级区为车间流水线一部分,整个流水线还包括万级区或十万级区。百级区一般层高较低(≤2.8m),环境封闭,对噪声要求较高(《洁净厂房设计规范》要求≤65dB(A))。百级区吊顶周围风管较多,用于百级区处理送风的空间比较紧张。
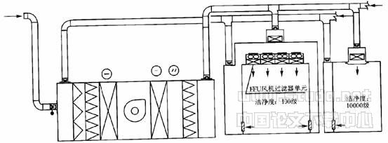
1 百级区温、湿度控制及补充新风方式药品生产厂房洁净区百级区面积较小,通常与万级洁净区同属一个工艺流水线,与万级洁净区温、湿度要求相同,运行班次相同,百级洁净区温、湿处理与补充新风,可以与其万级洁净区同筹考虑,如图1所示,采用一套组合空调器处理万级区和百级区空调系统送风。

图1
百级区应考虑FFU(Fan Filter Unit)风机发热量,适当加大换气次数,平衡百级区与万级区房间的温、湿度,各个房间工艺设备的发热量、散湿量也同样考虑。
此种处理方式,有如下优点:①空气处理系统简单。避免百级区再另设一套小型空气处理系统或新风处理系统。②避免在百级竖风道内设干盘管,也避免了因设干盘管引起的一系列问题,比如干盘管冷源问题,因为这里干盘管需冷冻水量很少,一般不足2m3/h,又不宜直接采用空调系统冷冻水(7-12℃水),因为水温太低,可引起结露,污染百级区竖风道环境;装干盘管后引起FFU系统风机压头不足,需再加压等问题。工程实践证明,采用此种空气处理方式,效果较好。百级区的温、湿度、正压值、洁净度都能得到较好的保证。整个流水线,万级区和百级区为一套空调系统,同时运行,统一控制,统一调节温、湿度,简便、可靠性高。
2 百级区循环风处理方式药品生产厂房百级区通常为垂直层流,断面风速控制在0.25~0.3m/s为宜,太大则浪费,太小则不易保证洁净度。循环风量应把百级区送风量考虑在内。药品生产厂房百级区循环风处理方式一般有如下几种:
第一种方式,在百级区上部设静压箱,百级区吊顶满布FFU风机净化单元,如图1,循环风从百级区侧墙下部进入竖风道,通过竖风道进入静压箱,经FFU送入室内, FFU本身即带高效过滤器,又有风机。此种方式,循环风加压过滤均由FFU完成,处理方式比较简单,在百级区吊顶内即可完成循环风处理。空调系统布局紧凑、方便,施工比较简单。百级区上部静压箱相对百级区为负压,百级区顶棚FFU与吊架间的渗漏,为室内流向静压箱,对百级区洁净度造成影响较小。近年来,随着FFU制造技术的提高, FFU单机成本、噪声不断下降,风机效率不断提高。药品生产厂房百级区采用FFU处理方式越来越多。目前FFU产品单机噪声多在52~57dB(A)之间,若采用FFU数量较多,几十台甚至更多,则百级区的噪声难以达到规范要求,造价也较高。
第二种方式。百级区上部设静压箱,顶棚满布高效过滤器(满布率应≥65%)如图2,采用循环风机,从百级区竖风道进风,加压后送入静压箱,通过顶棚高效过滤器,送入室内。

图2
此种方式有如下优点:①百级区造价较FFU系统低;②能够较好的控制循环风系统噪声。药品生产厂房百级洁净区面积较小,循环风量多在50000m3/h以内(保证50m2百级区)。实际工程中可采用多台循环风机加压,控制循环风机全压在420Pa以内。这样,采用小功率风机,减小风机本身噪声,并通过在风机进、出口风管上安装消声器等措施,能有效控制百级区噪声。本人设计的深圳某医药企业生物工程车间冻干粉针流水线,百级区灌封间面积为4.5m×6.6m,采用上述方式处理百级区循环风,选用3台离心风机作循环风机箱,设在灌封间隔壁冻干机房内(冻干机房为非洁净区,消声器也设在冻干机房内),风量9600m3/h·台,全压405Pa,噪声66dB(A),通过在风机箱内贴吸声材料,在风机进、出口风管安装消声器,控制风管内风速等控制噪声措施。百级区内静态噪声62dB(A),达到规范要求。至今经过2年多的运行,效果良好。
此方式的缺点是设置循环风机箱及处理噪声,需要较大的空间,而通常百级区周围风管都比较密集,需要精心布局。此方式百级区上部静压箱相对百级区室内为正压,顶棚高效过滤器与吊架间的渗漏,为静压箱流向室内,直接影响百级区洁净度。对施工质量要求较高。
第三种方式,万级区洁净房间内含局部百级区。此种情况在药品生产厂房洁净区内也比较多见。这种情况,局部百级区面积一般在10m2以内。可以利用万级净化空调系统送风控制室内温、湿度,补充新风。在局部百级区加大循环风量。循环风处理方式可以采取前述方式一,即在局部百级区吊顶内作静压箱,百级区范围内满布FFU,利用FFU处理循环风,如图3。循环风处理方式也可采取前述方式二,即在局部百级区吊顶内作静压箱,百级区范围内满布高效过滤器,利用循环风机加压,如图4。

图3
为了提高局部百级区气流垂直层流效果,可以根据现场工艺设备高度及操作要求,适当降低局部百级区吊顶,或在洁净区吊顶下直接拼装百级层流罩,并在百级区边界处装抗静电塑料裙挡,如图5。

图4

图5
百级区循环风回风方式可以采取格栅地板回风,如图6,或侧墙下部回风。如图1至图5。

图6
格栅地板回风方式,室内气流垂直层流效果好,但需要在格栅回风地板下设回风静压箱(约500mm~800mm高),一般采取降低百级区地坪。但在实际实施中,降低百级区地坪往往难以与周围洁净区房间协调,难度较大,造价升高。
药品生产厂房百级区面积较小,通过合理布置侧墙下回风口一般能满足百级区气流垂直层流要求,施工方便,造价较低。有关资料表明,采取房间两对侧墙下部回风,当房间宽度小于3m时,房间垂直层流气流可以到达地坪上0.3m处。实际实施时,可以采取在百级区四面侧墙下布置回风口。若房间宽度较大,可以采取在房间中央增设回风竖井,在竖井四面布置侧回风口,减少房间对侧墙回风口间距,保证房间气流垂直层流效果。
其它要求,百级区房间侧回风口风速,应按规范要求控制在1.5~2.0m/s。药品生产厂房百级区房间往往有工艺流水线穿出,与其它洁净区房间相通,工艺流水线穿墙处留有孔洞。施工中,应尽量减小孔洞,在计算百级区正压风量时,应考虑通过该孔洞泄漏的正压风量,适当减少通过百级区房间的回风量。
参考文献1 国家药品监督管理局.药品生产质量管理规范(GMP)(1998年修订)
2 中华人民共和国信息产业部主编.洁净厂房设计规范(GB50073-2001).北京:中国计划出版社,2001
3 采暖通风与空气调节设计规范(GBJ19-87)(2001年版)
4 通风与空调工程施工质量验收规范(GB50243-2002)
来源: 《建筑中文网》.原文网址:http://www.pipcn.net/research/200601/8380.htm
也许您还喜欢阅读:
